In de gezellige badplaats Rockanje (gemeente Voorne aan Zee) ligt deze fijne hoekbungalow met nette keuken en badkamer, 2 slaapkamers en zonnige tuin. Aan de tuin grenst direct de eigen parkeerplek. De woning, gebouwd in 1980, is keurig onderhouden en gelegen in een rustig wijkje aan een groenstrook. Dit is de ideale woning voor mensen die gelijkvloers willen wonen. De tuin is zonnig en onderhoudsvrij en heeft een ruime berging. Het huis heeft een woonoppervlak van ca. 93 m2 en het perceel bedraagt 183 m2. Verwarming geschiedt middels combiketel (Remeha HR 2013). De gezellige dorpskern en het strand met duinen vindt u op loopafstand.
Omschrijving
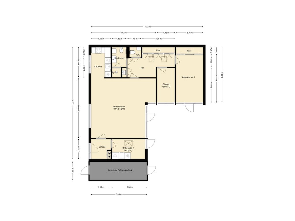
Hal met de meterkast en toegang tot de bijkeuken/ inpandige berging en de woonkamer.
Woonkamer - ca. 6.00 x 5.65 m
De gezellige woonkamer is een fijne lichte ruimte en heeft middels een enkele deur toegang tot de tuin.
De kamer heeft ramen aan de straatzijde en tuinzijde.
Keuken - ca. 3.03 x 1.99 m
De open keuken is geplaatst in een hoekopstelling en beschikt over een inductiekookplaat, afzuigkap, vaatwasmachine, combimagnetron en koelkast. Tevens is er een gezellige eetbar geplaatst die uitkijkt op het plantsoen.
Vanuit de woonkamer is de hal te bereiken welke u toegang geeft tot de slaapvertrekken en badkamer. Hier bevindt zich het toilet en de kast met de opstelplaats van de cv-ketel. De hal is heerlijk licht, mede door de aanwezige daklichten. In de kastenwand vindt u voldoende opbergruimte.
Toilet
Modern toilet met fonteintje.
Slaapkamer I - ca. 5.55 x 2.70 m
De hoofdslaapkamer is royaal en heeft een deur naar de tuin. Tevens is deze kamer voorzien van een kastenwand.
Slaapkamer II - ca. 3.48 x 1.82 m
Ook de 2e slaapkamer is gelegen aan de achterzijde van de woning en kijkt uit over de tuin.
De vloeren in de woonkamer, hal en slaapvertrekken zijn voorzien van tapijt.
Badkamer - ca. 3.03 x 1.46 m
De moderne badkamer (2024) is fraai betegeld en uitgevoerd met een royaal badmeubel, inloopdouche, urinoir en designradiator. Het plafond is voorzien van inbouwspots.
Inpandige berging/ bijkeuken - ca. 3.58 x 2.00 m
De berging biedt plaats aan de wasmachine en droger. Via de deur is de tuin bereikbaar.
Ook kunt u middels een vlizotrap de zolder bereiken.
Zolder - ca. 6 m2
Via de vlizotrap is de zolder bereikbaar.
Tuin
De verzorgde beschutte tuin is onderhoudsvrij en afgewerkt met sierbestrating en enkele borders. U geniet hier van uw privacy en zon. Naast de woning is een grote berging aanwezig waar u voldoende plaats heeft voor uw fietsen.
Grenzend aan de tuin is direct de privé parkeerplaats.
Bijzonderheden:
-geschakelde bungalow met bouwjaar 1980;
- 183 m2 eigen grond;
- privé parkeerplek;
- woonoppervlak ca. 93 m2;
- moderne keuken en badkamer (2024) en 2 slaapkamers;
- cv combiketel (Remeha 2013);
- houten kozijnen (woonkamer HR++glas, overig dubbelglas);
- energielabel C;
- gelegen in rustige woonwijk, bos en strand in nabijheid.
De volgende clausules worden in de koopakte opgenomen:
- Ouderdomsclausule;
- Asbestclausule.
Wij behartigen de belangen van de verkopende partij. Neem uw eigen aankoopmakelaar mee!
Disclaimer:
Deze informatie is door De Vreij Makelaardij met de nodige zorgvuldigheid samengesteld. De informatie is echter van algemene aard en niet meer dan een uitnodiging om in onderhandeling te treden. Onzerzijds en verkoper wordt echter geen enkele aansprakelijkheid aanvaard door enige onvolledigheid, onjuistheid of anderszins, dan wel de gevolgen daarvan. De meetinstructie is gebaseerd op de NEN2580. De meetinstructie is bedoeld om een meer eenduidige manier van meten toe te passen voor het geven van een indicatie van de gebruiksoppervlakte. De meetinstructie sluit verschillen in meetuitkomsten niet volledig uit, door bijvoorbeeld interpretatieverschillen, afrondingen of beperkingen bij het uitvoeren van de meting. Van toepassing zijn de Vastgoed Ned voorwaarden.
