Comfortabel en verzorgd wonen aan de Welleweg 63 in Brielle!
In de prettige woonwijk Rugge staat deze eind drive-in woning met comfortabele leefruimtes en een zonnige achtertuin op het zuidoosten. De woning combineert praktisch wonen met comfort en is onder andere voorzien van airconditioning en kunststof kozijnen. Dankzij de nette afwerking en het goede onderhoud is dit een woning waar je direct zorgeloos kunt wonen.
De ligging is perfect: op loopafstand van het Ruggeplein, waar je een supermarkt, bloemist en drogist vindt. Vlakbij is het historische centrum van de vestingstad Brielle met gezellige terrassen, winkels en horecagelegenheden. Ook scholen, sportfaciliteiten, openbaar vervoer en uitvalswegen zijn in de directe omgeving te vinden. Voor de natuurliefhebber zijn het Brielse Meer, de stranden van Oostvoorne en Rockanje en de plezierhaven van Hellevoetsluis makkelijk per fiets bereikbaar. En of je nu richting Maasvlakte, Europoort of Rotterdam moet — Via de A15 en de nieuwe snelweg A24 (Blankenburgverbinding) sta je binnen 30 autominuten in Rotterdam centrum, maar met de N218 en N57 om de hoek ben je ook zo in Zeeland.
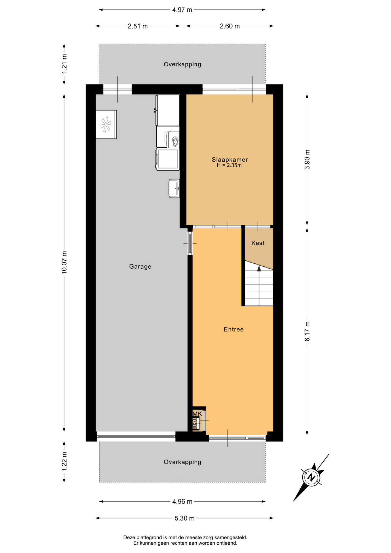
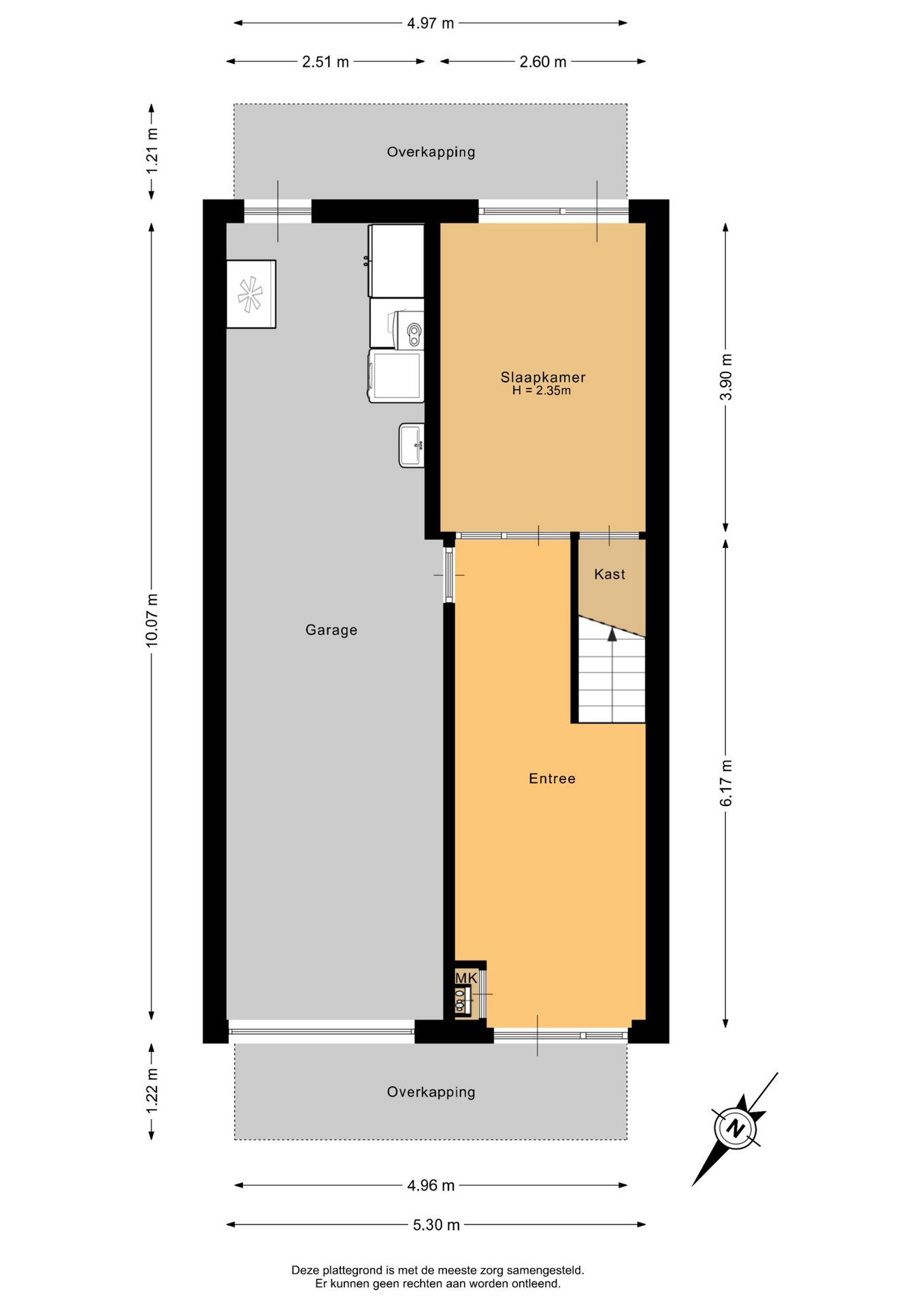
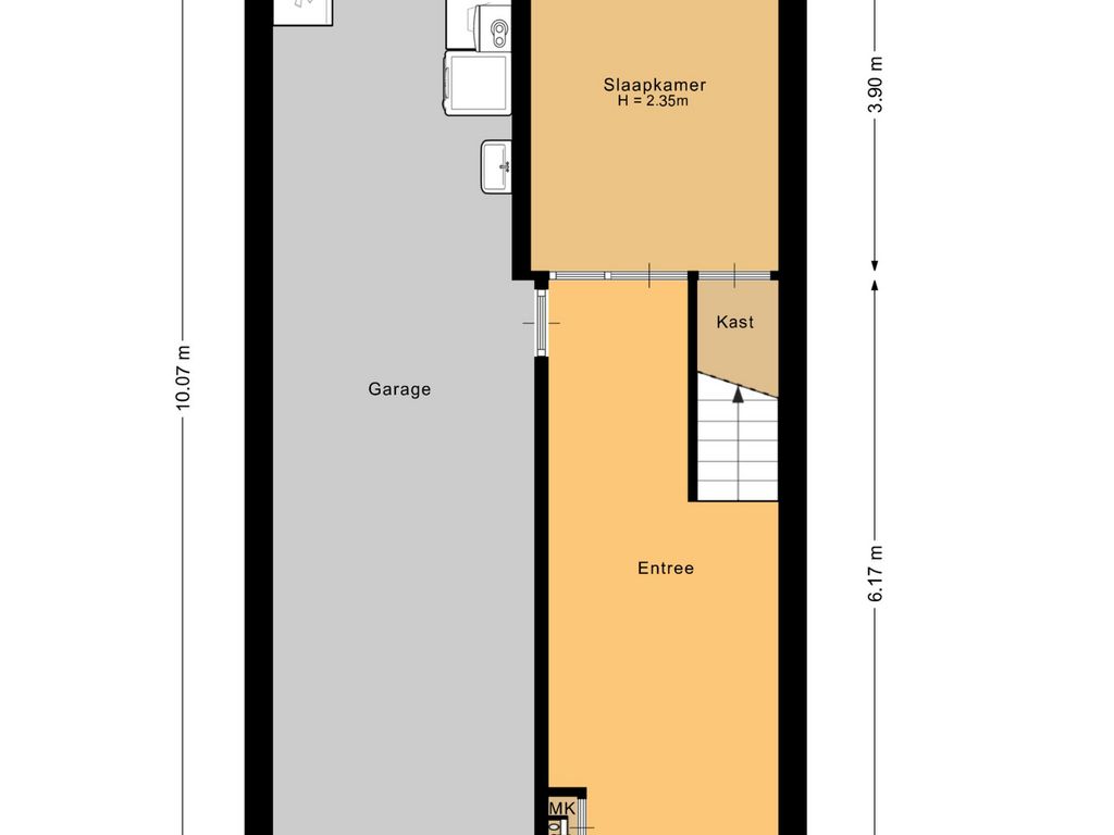
Begane grond:
Je betreedt de woning via de entree, waar je de trap naar de eerste verdieping vindt. Vanuit de hal heb je toegang tot de tuinkamer/slaapkamer en de ruime garage. De tuinkamer/slaapkamer is praktisch ingedeeld en beschikt over een trapkast en een deur naar de achtertuin, waardoor deze ruimte multifunctioneel te gebruiken is. De aangrenzende garage is netjes afgewerkt en voorzien van water, elektra, wasmachine aansluiting, uitstortgootsteen en opstelling van de cv-combi ketel (Intergas 2022). Ook hier is er een deur naar de achtertuin en een elektrische sectionaaldeur, waardoor de garage ideaal is voor parkeren, opslag of als extra werkruimte.
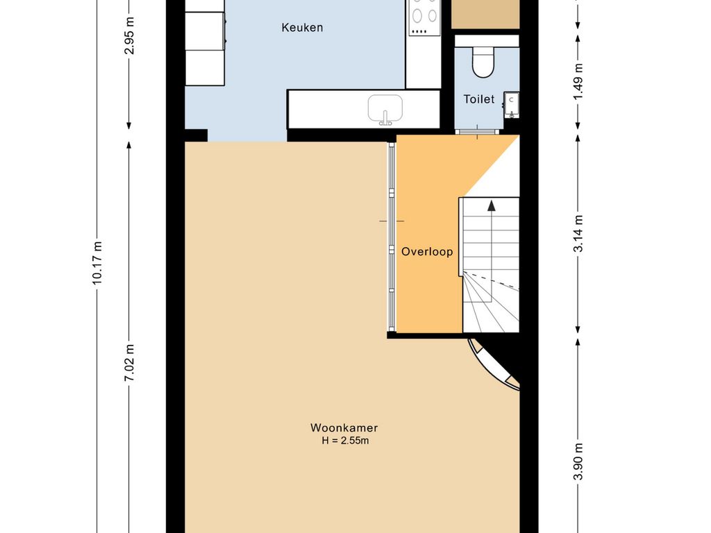
1e verdieping:
Via de trap bereik je de 1e verdieping. Op de overloop bevindt zich de modern afgewerkte toiletruimte, volledig betegeld en voorzien van een hangend closet en fontein. De woonkamer bevindt zich aan de voorzijde van de woning en is voorzien van airconditioning. Hier bevindt zich ook een deur die toegang geeft tot een balkon op het noordwesten. Aangrenzend aan de woonkamer bevindt zich de open keuken, uitgerust met diverse inbouwapparatuur, waaronder een koel-vriescombinatie, combimagnetron en vaatwasser. Via de keuken is er toegang tot het balkon aan de achterzijde, via dit balkon bereik je een opbergkast. De gehele eerste verdieping is afgewerkt met laminaat.
2e verdieping:
De 2e verdieping beschikt over een overloop met toegang tot 3 slaapkamers. De hoofdslaapkamer is voorzien van airconditioning, rolluiken voor extra slaapcomfort en biedt tevens toegang tot een balkon met uitzicht op de achtertuin. De overige 2 slaapkamers zijn aan de voorzijde van de woning te vinden en zijn ook voorzien van airconditioning.
Via de overloop bereik je de badkamer (2020) voorzien van hangend closet, inloopdouche, designradiator, wastafelmeubel en tot het plafond betegeld. De verdiepingsvloer is afgewerkt met laminaat.
Tuin:
De voortuin netjes aangelegd en bestraat. De achtertuin is voorzien van houten schuttingen met een zijuitgang en gelegen op het zonnige zuidoosten.
Diversen:
- Cv-combiketel Intergas 2022
- Geheel voorzien van kunststof kozijnen en HR++ glas.
- Airconditioning in de woonkamer en slaapkamers.
- Rolluiken aan de achterzijde op de 2e verdieping.
- Ruime garage met elektrische sectionaaldeur.
Disclaimer:
Deze informatie is door Van Ravens Makelaardij met de nodige zorgvuldigheid samengesteld. De informatie is echter van algemene aard en niet meer dan een uitnodiging om in onderhandeling te treden. Onzerzijds wordt echter geen enkele aansprakelijkheid aanvaard voor enige onvolledigheid, onjuistheid of anderszins, dan wel de gevolgen daarvan. Alle opgegeven maten en oppervlakten zijn indicatief.
Van toepassing zijn de NVM voorwaarden.
Bijzondere voorwaarden:
Bij oudere objecten wordt er een ouderdomsclausule in de koopovereenkomst opgenomen. Daarnaast kunnen er aanvullende clausules van toepassing zijn zoals bijvoorbeeld een “niet zelfbewoningsclausule”.
