Uniek wonen in het hart van Brielle! Op een fantastische locatie, vlakbij de historische stadswallen en op korte loopafstand van het bruisende centrum, bevindt zich deze speels ingedeelde woning (appartementsrecht) met energielabel B. De woning is verdeeld over meerdere verdiepingen en biedt verrassend veel leefruimte, inclusief een zonnige achtertuin op het zuiden, ideaal om van de middag- en avondzon te genieten.
Dankzij de charmante jaren '30-stijl van de wijk 't Geuzenveld ervaar je hier een gezellige en sfeervolle woonomgeving, midden in de vesting van Brielle. Op een steenworp afstand vind je het imposante Bastion II met het karakteristieke ‘Kruithuis’ en iets verderop de prachtige korenmolen ’t Vliegend Hert. Hier woon je in een omgeving vol historie, met tegelijkertijd alle moderne gemakken binnen handbereik. Even een dagje uitwaaien? De stranden van Rockanje en Oostvoorne liggen op korte afstand. Via de A15 en de nieuwe snelweg A24 (Blankenburgverbinding) sta je binnen 30 autominuten in Rotterdam centrum, maar met de N218 en N57 om de hoek ben je ook zo in Zeeland.
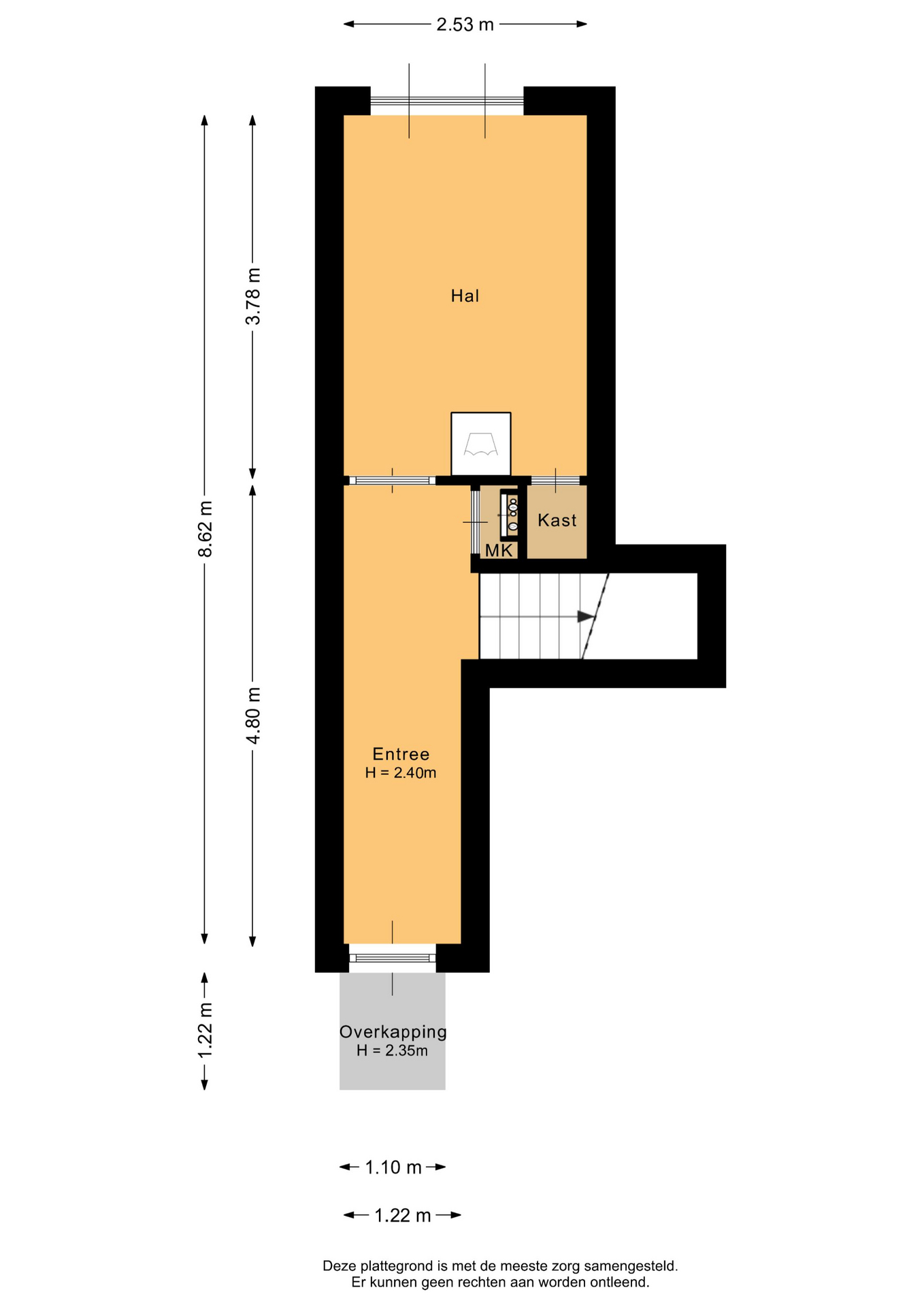
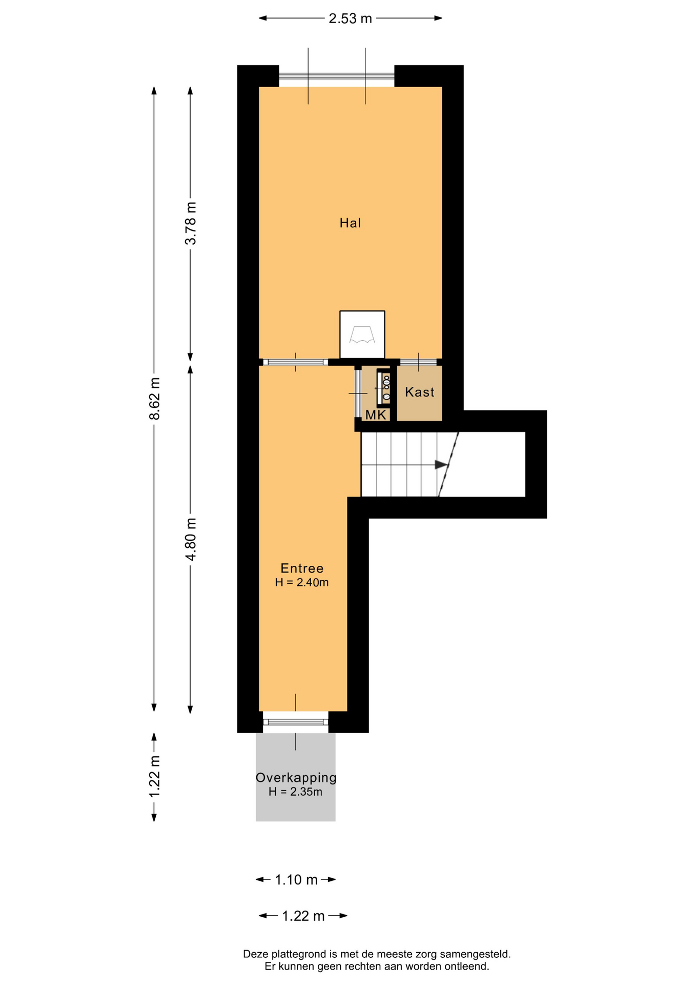
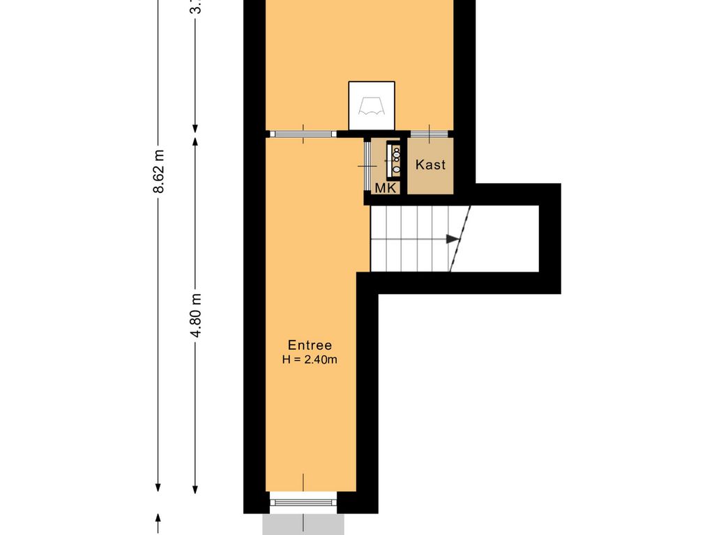
Begane grond:
Bij binnenkomst in de hal vind je de meterkast en de trapopgang naar de woonverdiepingen. Aan de achterzijde van de woning ligt de tuinkamer, een multifunctionele ruimte die uitstekend gebruikt kan worden als werkplek, hobbyruimte of extra zitkamer. In deze ruimte is ook een handige bergkast aanwezig en de aansluiting voor de wasmachine. Via de openslaande deuren stap je zo de zonnige achtertuin in.
1e verdieping:
Op de 1e verdieping bevinden zich de ruime woonkamer, eetkamer, het toilet en de halfopen keuken. De woonkamer is ruim en licht dankzij de grote raampartijen aan de voorzijde, inclusief een Frans balkon. De eetkamer grenst aan de andere kant van de hal en is een ideale plek om gezellig samen te dineren. Aan de achterzijde ligt de halfopen keuken voorzien van een koelkast, vriezer, inductiekookplaat, afzuigkap, combi-magnetron en een vaatwasser. Naast de keuken bevindt zich een handige provisiekast, ideaal voor extra opslag. Vanuit het keukenraam heb je uitzicht op de zonnige achtertuin. De gehele verdieping is afgewerkt met een nette plavuizen vloer.
2e verdieping:
Op de tweede verdieping bevinden zich twee slaapkamers en de badkamer. Beide slaapkamers zijn afgewerkt met een laminaatvloer en voorzien van een kunststof dakkapel, wat zorgt voor veel extra ruimte en licht. Vanuit beide slaapkamers heb je toegang tot de ruime loggia, een heerlijke plek om beschut van het buitenleven te genieten. De badkamer is compleet uitgerust met een douche, ligbad, wastafelmeubel, designradiator en een dakraam voor prettig natuurlijk licht en ventilatie. Daarnaast is er op deze verdieping nog een aparte toiletruimte met een hangend closet.
3e verdieping:
Via een vaste trap bereik je de 3e verdieping, waar zich de derde slaapkamer bevindt. Deze kamer is voorzien van een groot dakraam, wat zorgt voor veel daglicht. Achter een luik in deze ruimte bevindt zich de stookruimte met de opstelling van de cv-combiketel (Nefit, 2016) en de mechaniche ventilatie box.
Tuin:
De achtertuin is deels bestraat en voorzien van houten schuttingen, waardoor je volop privacy hebt. Dankzij de gunstige ligging op het zuiden kun je hier de hele dag van de zon genieten. Achterin de tuin staat een berging met een achterdeur die toegang biedt tot de achtergelegen steeg. Daarnaast is er ruimte voor een gezellig terrasje waar je heerlijk kunt zitten.
Diversen:
- VvE-bijdrage € 95,- per maand (2025).
- Niet-zelfbewoningsclausule van toepassing.
- Speelse en verrassend ruime indeling.
- Zonnige achtertuin op het zuiden met achterom.
- Uniek gelegen naast de historische vestingwallen van Brielle.
- Dichtbij het bruisende centrum van Brielle, scholen, winkels en recreatie.
Disclaimer:
Deze informatie is door Van Ravens Makelaardij met de nodige zorgvuldigheid samengesteld. De informatie is echter van algemene aard en niet meer dan een uitnodiging om in onderhandeling te treden. Onzerzijds wordt echter geen enkele aansprakelijkheid aanvaard voor enige onvolledigheid, onjuistheid of anderszins, dan wel de gevolgen daarvan. Alle opgegeven maten en oppervlakten zijn indicatief.
Van toepassing zijn de NVM voorwaarden.
Bijzondere voorwaarden:
Bij oudere objecten wordt er een ouderdomsclausule in de koopovereenkomst opgenomen. Daarnaast kunnen er aanvullende clausules van toepassing zijn zoals bijvoorbeeld een “niet zelfbewoningsclausule”.
