Vrijstaande woning
Op de hoek van de groene laan en de dijk in Buitenplaats Brielle staat een bijzondere vrijstaande woning. Een die direct opvalt door de elegante dwarskap, de tuitgevel aan de zijgevel en het warme metselwerk met verfijnde details. Grote ramen zorgen voor een lichte, open sfeer in huis. Dit is dé plek voor gezinnen die ruimte zoeken, rust waarderen en houden van een woning met uitstraling. En met twee parkeerplaatsen op eigen terrein is het ook praktisch wonen.
Ruimte om te leven en te genieten
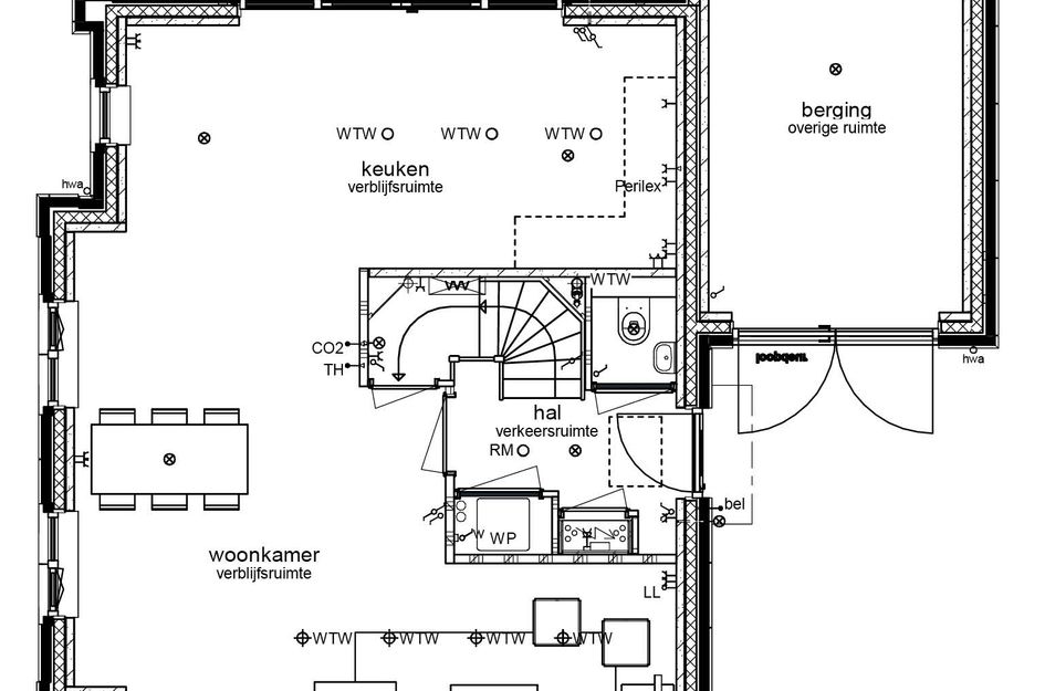
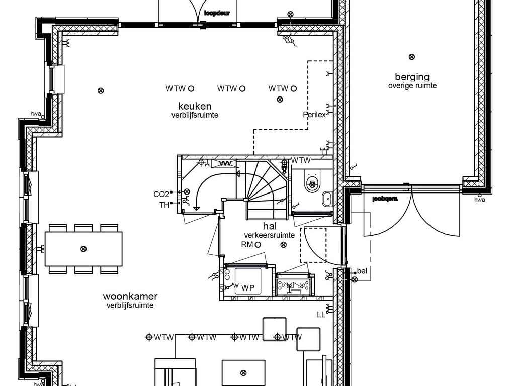
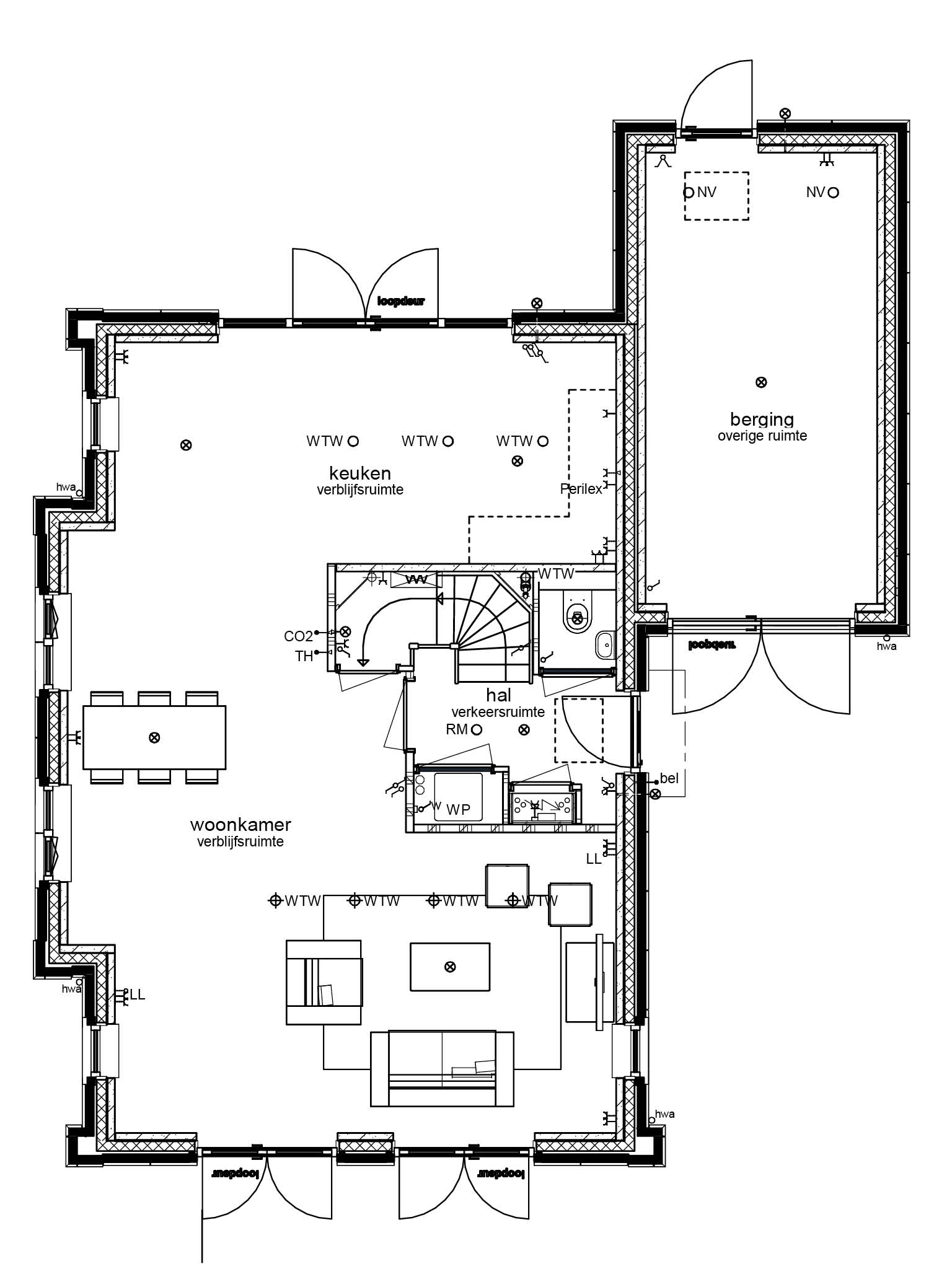
Via de zijentree kom je binnen in een royale hal met volop plek voor een garderobe. De trap, het toilet en de meterkast zijn slim gepositioneerd, zodat de rest van de woning optimaal benut kan worden. Dankzij de U-vormige indeling geniet je van een lichte woonkamer aan de voorzijde en een open keuken aan de achterzijde, met directe toegang tot de zonnige tuin op het zuidoosten. Hier nodig je vrienden uit voor lange zomeravonden, terwijl de kinderen spelen in het gras. Onder de trap is een handige berging voor alles wat je dagelijks nodig hebt.
Iedereen een eigen plek
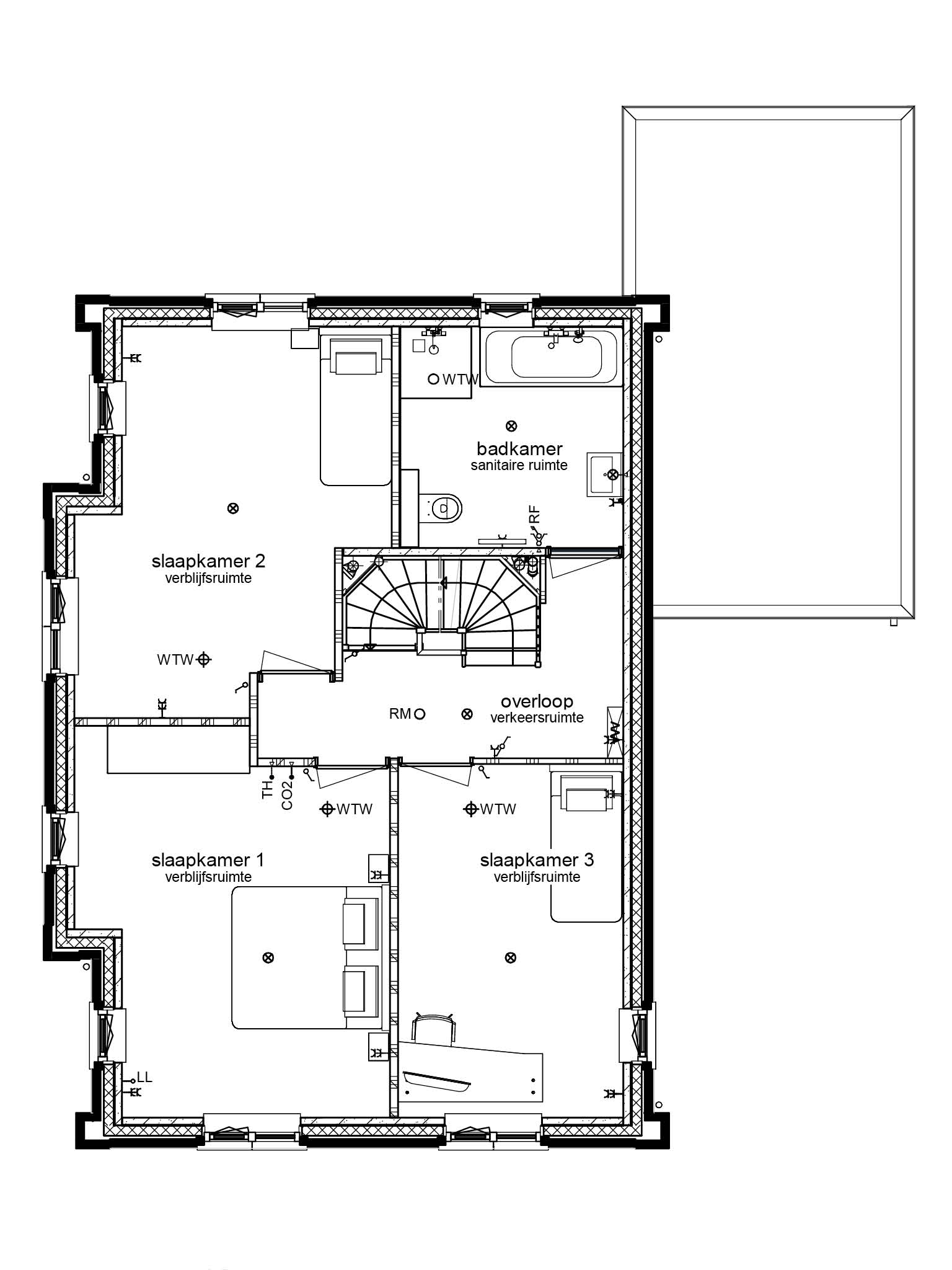
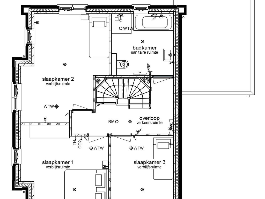
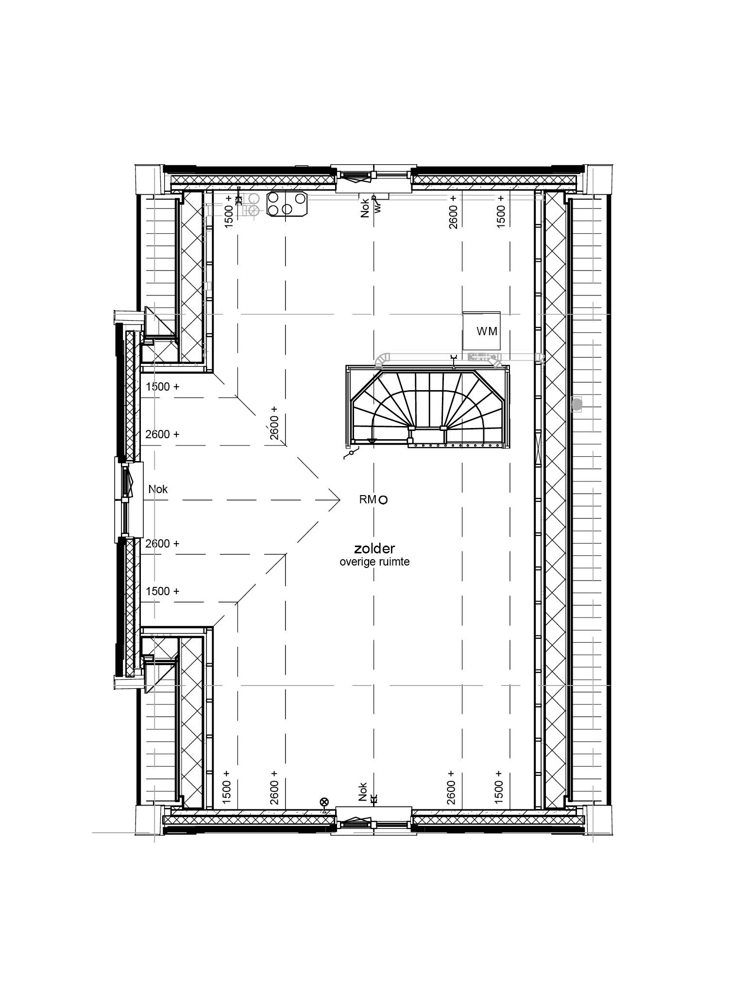
Op de eerste verdieping vind je drie ruime slaapkamers. De badkamer is een fijne plek om te ontspannen, met ruimte voor een douche, wastafel, toilet én een ligbad. De zolder biedt volop mogelijkheden: wat dacht je van een sportruimte of een thuiskantoor? Met aansluiting voor de wasmachine is ook hier aan alles gedacht. Deze woning is niet alleen ruim en stijlvol, maar ook duurzaam. Met energielabel A++++, goede isolatie en zonnepanelen woon je energiezuinig en comfortabel.
Disclaimer:
Deze informatie is door Van Ravens Makelaardij met de nodige zorgvuldigheid samengesteld. De informatie is echter van algemene aard. Onzerzijds wordt echter geen enkele aansprakelijkheid aanvaard voor enige onvolledigheid, onjuistheid of anderszins, dan wel de gevolgen daarvan. Alle opgegeven maten en oppervlakten zijn indicatief.
Van toepassing zijn de NVM voorwaarden.
