Sfeervolle en instapklare maisonnette woning, gelegen in het hart van de historische vestingstad Brielle. Deze gasloze karakteristieke woning, maakt deel uit van een pand met een rijke historie en is in 2024 volledig en hoogwaardig gerenoveerd. De woning beschikt onder andere over een royale woonkeuken en twee slaapkamers. Met een woonoppervlakte van circa 111 m² en een afwerking tot in detail is dit een unieke kans om comfortabel te wonen midden in de Brielse vesting.
Door de centrale ligging midden in het centrum zijn alle voorzieningen zoals de supermarkt, winkels en het terras op loopafstand! Ook de natuurliefhebber zit hier goed: het Brielse Meer, de stranden van Oostvoorne en Rockanje en de haven van Hellevoetsluis zijn allemaal op fietsafstand. En of je nu richting Maasvlakte, Europoort of Rotterdam moet — Via de A15 en de nieuwe snelweg A24 (Blankenburgverbinding) sta je binnen 30 autominuten in Rotterdam centrum, maar met de N218 en N57 om de hoek ben je ook zo in Zeeland.
Begane grond:
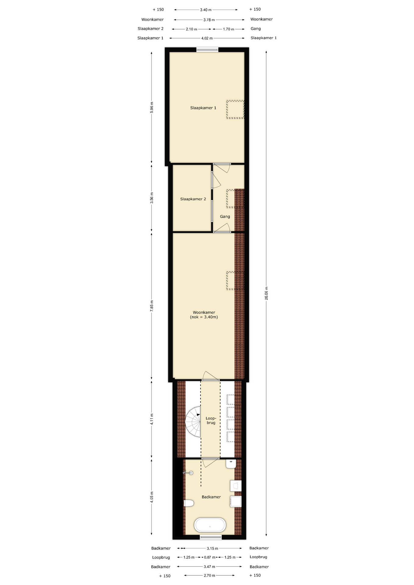
De hal/entree is voorzien van een vaste kast met meterkast en de opstelling van de elektrische boiler 80L (Ariston, 2024). Vanuit de entree kom je in de royale woonkeuken (2024), deze bestaat uit een wandopstelling en een kookeiland. De keuken is voorzien van hoogwaardige inbouwapparatuur, waaronder een inductiekookplaat, close-in boiler (10L), afzuigkap, vaatwasser, koelkast, combi-oven en stoomoven. De woonkeuken heeft veel lichtinval door de vide en dakramen, daarnaast is hier een eethoek met een sfeervolle houtkachel en een elektrisch verwarmingspaneel. Via de spiltrap bereik je de eerste verdieping. De vloer is afgewerkt met een nette pvc vloer.
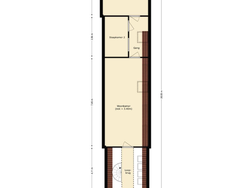
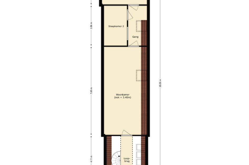
1e verdieping:
Vanaf de overloop met vide ervaar je direct het extra ruimtelijke gevoel en fijne lichtinval. Je loopt door naar de ruime woonkamer, waar de visgraat laminaat vloer, hoge plinten en zichtbare balken samen met de dakramen zorgen voor een sfeervol en licht geheel. Verder is de woonkamer voorzien van airconditioning. Vanuit de woonkamer bereik je via een gang met dakramen de 2 slaapkamers. Aan de achterzijde bevindt zich de royale hoofdslaapkamer, gelegen aan de Nobelstraat en voorzien van dakramen, een kopgevelraam en airconditioning. De tweede slaapkamer is veelzijdig te gebruiken. Aan de voorzijde bereik je via de overloop de ruime badkamer. De badkamer is compleet uitgevoerd met een inloopdouche, een ligbad met uitzicht naar buiten, een wastafelmeubel, toilet en wasmachine- en drogeraansluitingen. De badkamer is te verwarmen middels een elektrisch verwarmingspaneel.
Diverse:
- Gelegen in de historische vesting van Brielle.
- Volledig en hoogwaardig gerenoveerd in 2024 (o.a. elektra, isolatie, keuken en afwerking).
- Verwarming en koeling via airco-units (Mitsubishi, 2024).
- Warm water via elektrische boiler (Ariston, 2024).
- Dakramen voorzien van kunstof kozijnen en HR++ glas.
- VvE-bijdrage ca. € 106,07,- per maand.
Disclaimer:
Deze informatie is door Van Ravens Makelaardij met de nodige zorgvuldigheid samengesteld. De informatie is echter van algemene aard en niet meer dan een uitnodiging om in onderhandeling te treden. Onzerzijds wordt echter geen enkele aansprakelijkheid aanvaard voor enige onvolledigheid, onjuistheid of anderszins, dan wel de gevolgen daarvan. Alle opgegeven maten en oppervlakten zijn indicatief.
Van toepassing zijn de NVM voorwaarden.
Bijzondere voorwaarden:
Bij oudere objecten wordt er een ouderdomsclausule in de koopovereenkomst opgenomen. Daarnaast kunnen er aanvullende clausules van toepassing zijn zoals bijvoorbeeld een “niet zelfbewoningsclausule”.
