Op zoek naar een woning met verrassend veel leefruimte? Dan is Veckdijk 10 in Vierpolders precies wat je zoekt! Deze fijne woning met 3 slaapkamers, kastenkamer, royaal souterrain, 15 zonnepanelen en een tuin met vrij uitzicht op een weiland, heeft alles wat je nodig hebt om comfortabel te wonen. Benieuwd naar de ruimte en het woongenot dat deze woning te bieden heeft? Plan dan snel een bezichtiging en ontdek het zelf!
De woning ligt op loopafstand van de dorpskern van Vierpolders, waar je kunt genieten van de rust en het dorpsleven. Sportliefhebbers zitten hier goed, want Vierpolders beschikt over een voetbal- en tennisvereniging. Daarnaast ben je binnen enkele minuten in Brielle, waar je alle benodigde voorzieningen vindt zoals supermarkten, voortgezet onderwijs, winkels en het medisch centrum. Natuurliefhebbers hebben op Voorne volop keuze met het Brielse Meer, de stranden van Oostvoorne en Rockanje en de haven van Hellevoetsluis binnen handbereik. Bovendien ben je via de A15 en de nieuwe A24 (Blankenburgverbinding) in slechts 30 minuten in Rotterdam, terwijl de N218 en N57 snelle verbindingen richting Zeeland bieden.
Begane grond:
Via de entree met meterkastruimte, het toilet met fontein en de trap naar de 1e verdieping stap je de woning binnen. Allereerst een werk-/kantoorrumte, ideaal voor thuiswerken of als hobbyruimte. Aansluitend kom je in de lichte doorzonwoonkamer, waar de sfeervolle houtkachel direct voor een warm en knus gevoel zorgt. De woonkamer biedt toegang tot het balkon aan de achterzijde, waar je via een trap zo de tuin in loopt. Een heerlijke plek om van het buitenleven te genieten! De begane grond is volledig voorzien van een houten vloer.
Souterrain:
Via een trap vanuit de werkruimte bereik je het verrassend ruime souterrain. Hier bevindt zich de keuken, volledig uitgerust met een gaskookplaat, afzuigkap, koelkast, oven, magnetron en vaatwasser. Aansluitend vind je de tweede woon-, eetkamer met vaste inbouwkast met schuifdeuren, een heerlijke plek om te ontspannen. Dankzij de grote schuifpui naar de tuin geniet je hier van veel natuurlijk licht en een directe verbinding met de buitenruimte. Verder is er nog een open ruimte met de aansluitingen voor de wasmachine en droger. De gehele souterrainvloer is afgewerkt met een praktische grindvloer met vloerverwarming.
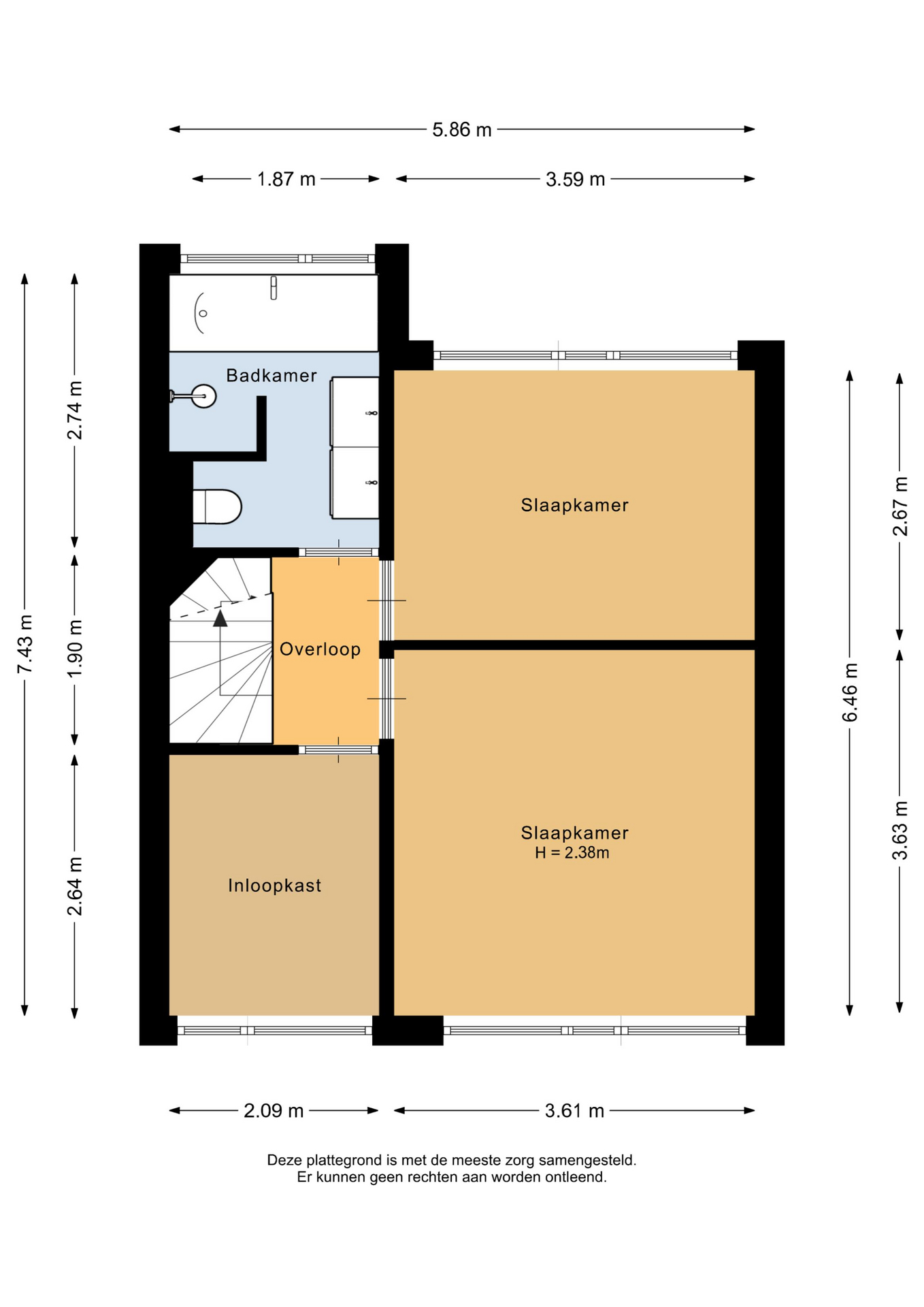
1e verdieping:
Vanaf de overloop heb je toegang tot 2 slaapkamers, een ruime kastenkamer en de badkamer. De slaapkamers zijn comfortabel en afgewerkt met vloerbedekking en de kastenkamer is voorzien van vinyl. De badkamer is volledig betegeld en van alle gemakken voorzien, met een inloopdouche, een meubel met dubbele wastafel, een whirlpool, toilet en een designradiator. Het aanwezige raam zorgt voor natuurlijk licht en ventilatie.
2e verdieping:
Via de voorzolder, waar de cv-combiketel (Nefit 2019) staat opgesteld en handige knieschotbergruimte aanwezig is, bereik je de 3e slaapkamer. Deze slaapkamer beschikt over knieschotbergruimte en twee dakramen, waardoor er veel natuurlijk licht binnenkomt.
Tuin:
De achtertuin grenst aan een weiland, waardoor je hier een prachtig vrij uitzicht hebt en kunt genieten van het buitenleven. De tuin is voorzien van een praktische achterom, ideaal voor de fietsen. Verder een berging voor het opbergen van je fiets, de tuinkussens of het tuingereedschap.
Diversen:
- Ruime woning met souterrain.
- 1e verdieping voorzijde is voorzien van elektrische rolluiken.
- Achtertuin met vrij uitzicht op een weiland.
- Voorzien van 15 zonnepanelen voor energiebesparing.
Disclaimer:
Deze informatie is door Van Ravens Makelaardij met de nodige zorgvuldigheid samengesteld. De informatie is echter van algemene aard en niet meer dan een uitnodiging om in onderhandeling te treden. Onzerzijds wordt echter geen enkele aansprakelijkheid aanvaard voor enige onvolledigheid, onjuistheid of anderszins, dan wel de gevolgen daarvan. Alle opgegeven maten en oppervlakten zijn indicatief.
Van toepassing zijn de NVM voorwaarden.
Bijzondere voorwaarden:
Bij oudere objecten wordt er een ouderdomsclausule in de koopovereenkomst opgenomen. Daarnaast kunnen er aanvullende clausules van toepassing zijn zoals bijvoorbeeld een “niet zelfbewoningsclausule”.
