In een gezellige en kindvriendelijke buurt staat deze verzorgde tussenwoning aan het water klaar voor nieuwe bewoners! Met een ruime en lichte woonkamer met openslaande deuren, vier slaapkamers, een moderne afwerking en een compleet vernieuwde begane grond inclusief nieuwe keuken uit 2025 biedt deze woning alles wat je nodig hebt. De verzorgde achtertuin op het zuidwesten, met een vlonder aan het water en vrij uitzicht over het achtergelegen parkje, maakt het plaatje helemaal compleet. Kortom: een heerlijke plek voor een gezin om direct te betrekken en van te genieten.
De woning ligt nabij recreatiegebied het Spui en het Laarzenpad waar je rustig kunt wandelen of de hond kunt uitlaten. Het historische centrum van Brielle, met al zijn charme en faciliteiten, is slechts een steenworp verwijderd. Verder liggen het openbaar vervoer, scholen, supermarkten, medisch centrum, sportaccommodaties, zwembad en uitvalswegen erg gunstig. Voor de natuur-, bos- en strandliefhebbers zijn het Brielse Meer, Oostvoorne, Rockanje en ook de plezierhaven van Hellevoetsluis aan het Haringvliet op fietsafstand bereikbaar. En of je nu richting Maasvlakte, Europoort of Rotterdam moet — Via de A15 en de nieuwe snelweg A24 (Blankenburgverbinding) sta je binnen 30 autominuten in Rotterdam centrum, maar met de N218 en N57 om de hoek ben je ook zo in Zeeland.
Begane grond:
Je stapt binnen in een ruime entree, ontstaan doordat de voormalige berging bij de woning is betrokken, met aan de linkerzijde het deels betegelde toilet met hangend closet en fontein. De open keuken, geheel vernieuwd in 2025 en in L-opstelling, is voorzien van inductiekookplaat met afzuiging, combi-magnetron, stoomoven, Quooker en vaatwasser. Naast de keuken ligt de eethoek, ideaal om samen te koken en te tafelen. Door de uitbreiding en slimme indeling is de woonkamer aan de achterzijde ruimer geworden, deze is voorzien van openslaande deuren naar de zonnige achtertuin aan het water. De gehele begane grond is vernieuwd in 2025 en voorzien van vloerverwarming en een plavuizen vloer, wat zorgt voor een comfortabele en moderne uitstraling.
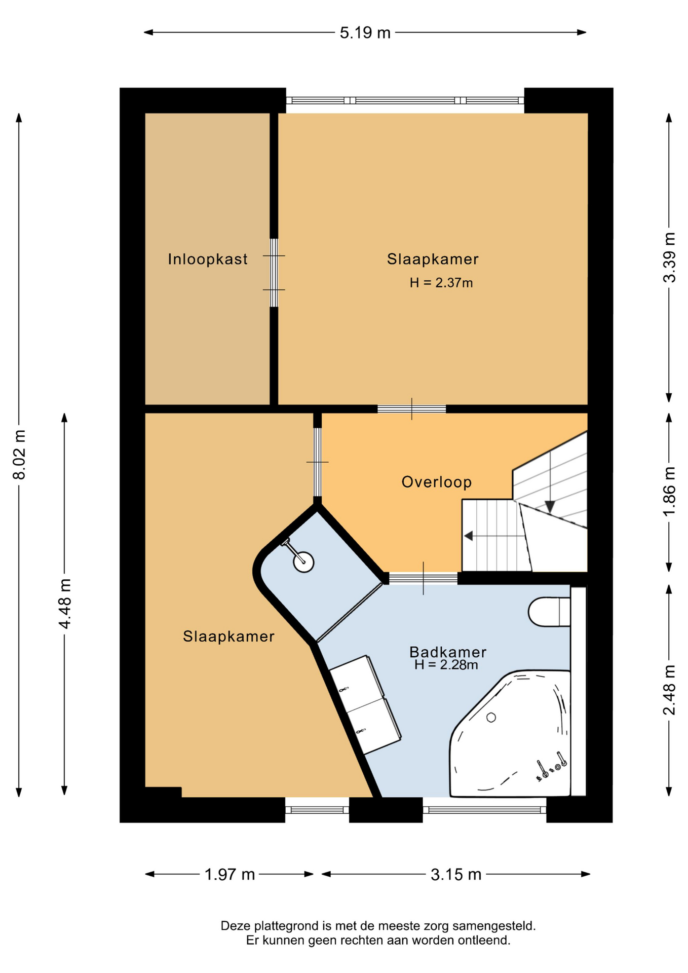
1e verdieping:
Via de trap in de woonkamer kom je op de overloop, die toegang geeft tot twee slaapkamers en de badkamer. De hoofdslaapkamer bevindt zich aan de achterzijde, is voorzien van een ruime inloopkast, elektrische rolluiken, houten vloer en biedt een prachtig uitzicht over het water en het achtergelegen parkje. De tweede slaapkamer ligt aan de voorzijde en is eveneens netjes afgewerkt. De badkamer is ruim en ingericht met een zitbad, douchecabine, een dubbel wastafelmeubel en toilet. Het aanwezige raam zorgt voor natuurlijk licht en ventilatie. De badkamer is voorzien van een houten vloer. De overloop en slaapkamer aan de voorzijde zijn voorzien van een nette pvc-vloer, wat zorgt voor een strakke en onderhoudsvriendelijke uitstraling.
2e verdieping:
Via de overloop bereik je twee slaapkamers en de stook- en wasruimte. In deze ruimte bevindt zich de opstelling van de cv-combiketel (Vaillant, 2016) en de aansluitingen voor de wasmachine en droger. De twee slaapkamers zijn beide voorzien van een kopgevelraam, en de slaapkamer aan de achterzijde is uitgerust met elektrische rolluiken. Ook is er nog een handige bergkast te vinden op de overloop. De gehele verdieping is afgewerkt met een laminaatvloer, wat zorgt voor een nette en onderhoudsvriendelijke uitstraling.
Tuin:
De woning beschikt over zowel een verzorgde voortuin als een ruime achtertuin. De voortuin is onderhoudsvriendelijk aangelegd. De achtertuin gelegen op het zonnige zuidwesten en grotendeels vernieuwd in 2024, vormt een heerlijke buitenruimte. Met een vlonder aan het water, vrij uitzicht over het rustige achtergelegen parkje is het hier optimaal genieten. Aan de achterzijde van de woning is een handige tuinkast te vinden voor het opbergen van spullen en de achterzijde is voorzien van elektrische zonwering.
Diversen:
- Goed onderhouden tussenwoning aan het water.
- Moderne keuken in 2025 geplaatst.
- Elektrische zonwering aan achterzijde.
- Begane grond voorzien van vloerverwarming en plavuizen vloer.
- Voorzien van HR++ glas (m.u.v. dakraam stookruimte zolder).
- Voorzien van kunststof kozijnen (m.u.v. de voordeur, het dak kiepraam en de achterpui met openslaande deuren).
- Ruime achtertuin op het zuidwesten met vlonder aan het water.
- De slaapkamers aan de achterkant van de woning zijn voorzien van elektrische rolluiken.
- Gelegen in een rustige, kindvriendelijke buurt met vrij uitzicht over het parkje.
- Voorgevel beschikt over vernieuwde natuurstenen waterkeringen.
- Voor- en achtergevel zijn voorzien van keralit delen.
Disclaimer:
Deze informatie is door Van Ravens Makelaardij met de nodige zorgvuldigheid samengesteld. De informatie is echter van algemene aard en niet meer dan een uitnodiging om in onderhandeling te treden. Onzerzijds wordt echter geen enkele aansprakelijkheid aanvaard voor enige onvolledigheid, onjuistheid of anderszins, dan wel de gevolgen daarvan. Alle opgegeven maten en oppervlakten zijn indicatief.
Van toepassing zijn de NVM voorwaarden.
Bijzondere voorwaarden:
Bij oudere objecten wordt er een ouderdomsclausule in de koopovereenkomst opgenomen. Daarnaast kunnen er aanvullende clausules van toepassing zijn zoals bijvoorbeeld een “niet zelfbewoningsclausule”.
