Contact
Staaldiep 4

Staaldiep 4

BRIELLE

vraagprijs

verkocht

Ook uw woning of bedrijfspand succesvol verkopen? Neem dan contactmet ons op

Omschrijving

Op zoek naar een ruime 2-onder-1-kap woning in de geliefde en kindvriendelijke wijk Nieuwland-Oost? Dan heb je wellicht je droomwoning gevonden! Deze jonge woning ligt op een geweldige locatie in de wijk aan een doodlopende straat. De achterzijde ligt heerlijk vrij aan een singel. De voorzijde van de woning ligt aan de "stadswal" geïnspireerd op de historische vestingwallen van de Brielse binnenstad. De woning is gebouwd met een knipoog naar de architectuur van de historische woningen gelegen in de vesting van Brielle, maar met het woongenot van jonge bouw. De woning heeft 4 slaapkamers, 3 dakkapellen, een ruime oprit met garage en een verzorgde zonnige tuin op het zuidwesten.

De wijk Nieuwland-Oost is perfect voor gezinnen en heeft een groot speelveld op loopafstand. Verder bevinden zich in de wijk een sportschool, het medisch centrum en een middelbare school. Het historische centrum van Brielle met haar sfeervolle horeca, winkels en terrassen ligt op korte afstand. Ook de natuurliefhebber zit hier goed: het Brielse Meer, de stranden van Oostvoorne en Rockanje en de haven van Hellevoetsluis zijn allemaal op fietsafstand. En of je nu richting Maasvlakte, Europoort of Rotterdam moet — Via de A15 en de nieuwe snelweg A24 (Blankenburgverbinding) sta je binnen 30 autominuten in Rotterdam centrum, maar met de N218 en N57 om de hoek ben je ook zo in Zeeland.

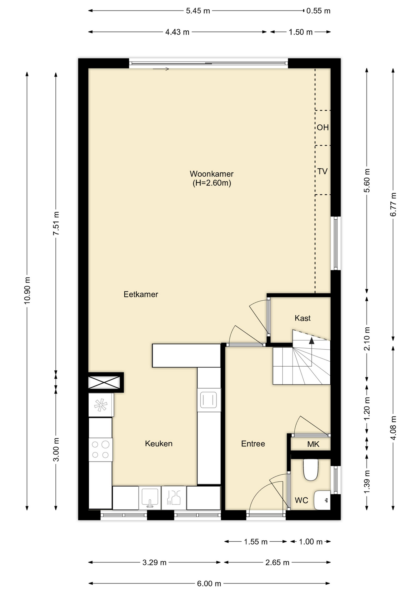
Begane grond:
Bij binnenkomst in de hal vinden we de meterkast, de trapopgang naar de eerste verdieping en een modern betegeld toilet met hangend closet en fonteintje. De woonkamer is heerlijk licht dankzij het zijraam en voelt extra ruim door de uitbouw. Via de fraaie, brede schuifpui stap je zo de zonnige achtertuin in. Verder is de woonkamer voorzien van een luxe cinewall met gashaard en een handige trapkast. De nette open keuken staat in een U-opstelling met eetbar. De keuken is verder voorzien van een 5-pits gasfornuis, een afzuigschouw, een koel/vriescombinatie, combi-magnetron en vaatwasser. De begane grond is stijlvol afgewerkt met een houten vloer.

1e verdieping:
Via de trap bereiken we de overloop, die toegang biedt tot drie comfortabele slaapkamers. De hoofdslaapkamer aan de voorzijde van het huis beschikt over 2 dakkapellen met rolluik en een ruime inloopkast met een schuifdeur. Aan de achterzijde van het huis bevinden de andere 2 slaapkamers zich, waarvan 1 van deze kamers een dakraam, vaste kast met schuifdeuren en lage inbouwkasten heeft. De andere slaapkamer heeft een dakkapel met rolluik voor extra comfort. De geheel betegelde moderne badkamer is voorzien van een douchecabine met massage douchepaneel, ligbad, badkamermeubel met waskom, vloerverwarming en een hangend toilet. De verdiepingsvloer is voorzien van een laminaatvloer.

2e verdieping:
Via de trap bereiken we de ruime 2e verdieping die toegang biedt tot de 4e ruime slaapkamer.
De lichte overloop heeft een dak- en zijraam en verder vinden we hier de aansluitingen voor de wasmachine en droger, de cv-installatie (Intergas 2008) en de mechanische ventilatie-unit. De ruime slaapkamer beschikt over knieschotbergruimte en een groot dakraam voor veel licht. In een gedeelte van de nok is er nog een vliering aanwezig. De verdiepingsvloer is voorzien van een laminaatvloer.

Garage:
De stenen garage is zowel via de elektrische sectionaaldeur vanaf de buitenzijde te bereiken alsmede via de deur vanuit de zijtuin. De garage is voorzien van elektra, uitstortgootsteen en een wateraansluiting.

Tuin:
De voortuin met oprit voor een auto is afgezet met de kenmerkende betonnen paaltjes in deze wijk (uniforme erfafscheiding). De achter- en zijtuin zijn heerlijk zonnig gelegen op het zuidwesten en is sfeervol ingericht met een overkapping met verlichting en vlonderterras. Verder is er een elektrisch zonnescherm, een buitenkraan en groene erfafscheidingen. Aan de zijkant van de woning zit een poort die uitkomt in de voortuin.

Diversen:
- Ruime woning met 4 slaapkamers en een garage.
- De ramen van de dakkapellen hebben een rolluik.
- Oprit met plek voor 1 á 2 auto's.
- Volledig geïsoleerd.
- Rustig gelegen aan een doodlopende straat.
- In een kindvriendelijke en geliefde wijk gelegen.


Disclaimer:
Deze informatie is door Van Ravens Makelaardij met de nodige zorgvuldigheid samengesteld. De informatie is echter van algemene aard en niet meer dan een uitnodiging om in onderhandeling te treden. Onzerzijds wordt echter geen enkele aansprakelijkheid aanvaard voor enige onvolledigheid, onjuistheid of anderszins, dan wel de gevolgen daarvan. Alle opgegeven maten en oppervlakten zijn indicatief.
Van toepassing zijn de NVM voorwaarden.

Bijzondere voorwaarden:
Bij oudere objecten wordt er een ouderdomsclausule in de koopovereenkomst opgenomen. Daarnaast kunnen er aanvullende clausules van toepassing zijn zoals bijvoorbeeld een “niet zelfbewoningsclausule”.
+ Lees meer

Kenmerken

Overdracht

Status
verkocht
Aanvaarding
in overleg

Bouw

Soort woning
woonhuis
Soort woonhuis
eengezinswoning
Type woonhuis
twee onder een kapwoning
Aantal woonlagen
3
Bouwvorm
bestaande bouw
Bouwjaar
2009
Huidige bestemming
woonruimte
Onderhoud binnen
goed
Onderhoud buiten
goed
Voorzieningen
mechanische ventilatie, rolluiken, buitenzonwering, schuifpui, dakraam
Isolatie
volledig geisoleerd, hr glas

Energie

Energielabel
A
Verwarming
cv ketel, gashaard
Warm water
cv ketel
C.V.-ketel
gas gestookte combi-ketel uit 2008 van Intergas, eigendom

Oppervlakten en inhoud

Woonoppervlakte
142 m²
Perceeloppervlakte
276 m²
Inhoud
496 m³
Bergruimte oppervlakte
19 m²

Indeling

Aantal kamers
5
Aantal slaapkamers
4

Buitenruimte

Tuin
achtertuin met een oppervlakte van 81 m² en is gelegen op het zuidwesten

Garage / Schuur / Berging

Garage
vrijstaande stenen garage
Parkeergelegenheid
op eigen terrein

Foto's

Locatie

Downloads

Vraag een bezichtiging aan of neem contact met ons op.