Contact
Slagveld 40

Slagveld 40

BRIELLE

verkocht

Ook uw woning of bedrijfspand succesvol verkopen? Neem dan contactmet ons op

Omschrijving

Op een goede locatie in de historische vesting van Brielle gelegen tussenwoning met tuin. De woning heeft een fantastisch uitzicht over de haven, ruime tuin en 3 slaapkamers. De woning dient te worden gemoderniseerd. Het huis met bouwjaar ca. 1730 heeft een woonopp. ca. 98 m2 en 118 m2 eigen grond. Vermeldenswaardig zijn o.a. de ruime woonkamer en de heerlijke stadstuin. De tuin is ca. 8 meter diep. Verwarming door middel van een moederhaard met radiatoren. Kozijnen zijn grotendeels uitgevoerd in kunststof. Op loopafstand bevinden zich supermarkten, de gezellige horeca en winkels. Het openbaar vervoer, scholen en uitvalswegen zijn nabij. Parkeren kan voor de deur.

Omschrijving
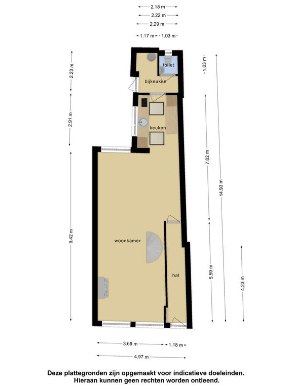
Entree/ hal met moderne meterkast en mogelijkheid tot het plaatsen van een fiets.

Woonkamer - ca. 9.42 x 4.97/ 3.69 m
De woonkamer aan de havenzijde beschikt over een moederhaard en spiltrap naar de eerste verdieping. De vloer is v.v. tapijt en de wanden zijn afgewerkt met granol. De ramen zijn v.v. markiezen.

Keuken - ca. 2.91 x 2.29 m
Aan de achterzijde bevindt zich de aangebouwde keuken. Deze heeft veel lichtinval met 2 lichtkoepels. De opstelling is zeer eenvoudig en beschikt over een rvs blad met spoelunit, koelkast met vriesvak, elektrische kookplaat en afzuigkap. De vloer is v.v. zeil.

Bijkeuken - ca. 2.29 x 2.23 m
In de bijkeuken bevinden zich het betegeld toilet met fonteintje, de wasmachineaansluiting en de boiler (Inventum ca. 2019). Via de achterdeur is de tuin te bereiken.

Eerste verdieping
Overloop met vaste kastenwand, luik naar de vliering en toegang tot de 3 slaapkamers en de badkamer.
De gehele verdieping is v.v. zeil.

Slaapkamer I - ca. 4.78 x 3.05/ 2.90 m
Deze ruime slaapkamer is gelegen aan de voorzijde en heeft een weids uitzicht over de haven. De kamer is v.v. een vaste kast en schrootjes plafond. De ramen zijn v.v. markiezen.

Slaapkamer II - ca. 2.91 x 2.50 m
Deze kamer is gelegen aan de achterzijde en heeft een wastafel, vaste kast. Via de deur is het platte dak van de aanbouw bereikbaar.

Slaapkamer III - ca. 2.91 x 2.18 m
Deze kamer is ook gelegen aan de achterzijde van de woning en heeft een vaste kast.

Badkamer - ca. 2.28 x 1.40 m
De keurig betegelde badkamer heeft 2 lichtkoepels en is v.v. een wastafel, douchecabine, designradiator en 2e toilet.

Zolder
Via de vlizotrap is de bergzolder bereikbaar.

Tuin
Leuke stadstuin welke beschikt over een ruim terras en borders. Er is geen achterom. De achtergevel is v.v. van een royaal elektrisch zonnescherm.

Bijzonderheden:
- modernisering vereist, huis met mogelijkheden;
- beschermd stadsgezicht in de historische vesting;
- goede locatie aan de haven;
- bouwjaar 1730;
- gelegen op 118 m2 eigen grond en woonoppervlakte: ca. 98 m2;
- verwarming middels moederhaard met radiatoren, warmwater via boiler;
- grotendeels kunststof kozijnen met dubbel glas, begane grond betonvloer;
- de overdracht dient plaats te vinden bij notaris Moerland in Brielle;
- woning wordt niet bewoond en verkocht "as is" (ouderdomsclausule, asbestclausule).

Disclaimer:
Deze informatie is door De Vreij Makelaardij met de nodige zorgvuldigheid samengesteld. De informatie is echter van algemene aard en niet meer dan een uitnodiging om in onderhandeling te treden. Onzerzijds en verkoper wordt echter geen enkele aansprakelijkheid aanvaard door enige onvolledigheid, onjuistheid of anderszins, dan wel de gevolgen daarvan. De meetinstructie is gebaseerd op de NEN2580. De meetinstructie is bedoeld om een meer eenduidige manier van meten toe te passen voor het geven van een indicatie van de gebruiksoppervlakte. De meetinstructie sluit verschillen in meetuitkomsten niet volledig uit, door bijvoorbeeld interpretatieverschillen, afrondingen of beperkingen bij het uitvoeren van de meting. Van toepassing zijn de VBO voorwaarden.
+ Lees meer

Kenmerken

Overdracht

Status
verkocht
Aanvaarding
in overleg

Bouw

Soort woning
woonhuis
Soort woonhuis
eengezinswoning
Type woonhuis
tussenwoning
Aantal woonlagen
2
Bouwvorm
bestaande bouw
Bouwjaar
1730
Huidige bestemming
woonruimte
Onderhoud binnen
redelijk_tot_goed
Onderhoud buiten
redelijk_tot_goed
Voorzieningen
buitenzonwering
Isolatie
dubbel glas

Energie

Energielabel
F
Verwarming
moederhaard
Warm water
elektrische boiler eigendom

Oppervlakten en inhoud

Woonoppervlakte
98 m²
Perceeloppervlakte
118 m²
Inhoud
357 m³
Inpandige ruimte oppervlakte
3 m²

Indeling

Aantal kamers
4
Aantal slaapkamers
3

Buitenruimte

Ligging
in centrum, vrij uitzicht, aan vaarwater
Tuin
achtertuin met een oppervlakte van 40 m² en is gelegen op het oosten

Garage / Schuur / Berging

Garage
geen garage
Parkeergelegenheid
openbaar parkeren

Foto's

Plattegronden

Locatie

Video's

Vraag een bezichtiging aan of neem contact met ons op.