Wonen aan het water met een permanent vakantiegevoel? Deze prachtige waterwoning in Port Brielle heeft een unieke ligging, waarbij je met je eigen boot direct het Brielse Meer op vaart. Met een zonnig terras aan de haven, een eigen aanlegsteiger, een luxe keuken en badkamer én een sfeervolle terrasoverkapping is dit een woning waar comfort en beleving perfect samenkomen. Instapklaar en klaar voor de volgende bewoner!
Port Brielle biedt het beste van twee werelden: rustig wonen aan het water met alle dagelijkse voorzieningen binnen handbereik. Op loopafstand vind je het historische centrum van Brielle, met gezellige terrassen, horeca en winkels. Ook scholen, supermarkten, openbaar vervoer, sportvoorzieningen en een zwembad zijn dichtbij. Voor de natuur-, bos- en strandliefhebbers zijn het Brielse Meer, Oostvoorne, Rockanje en ook de plezierhaven van Hellevoetsluis aan het Haringvliet op fietsafstand bereikbaar. En of je nu richting Maasvlakte, Europoort of Rotterdam moet — Via de A15 en de nieuwe snelweg A24 (Blankenburgverbinding) sta je binnen 30 autominuten in Rotterdam centrum, maar met de N218 en N57 om de hoek ben je ook zo in Zeeland.
Begane grond:
Je komt de woning binnen via de ruime hal met meterkast, trapkast, modern toilet met hangend closet en fonteintje, toegang tot de inpandige berging/bijkeuken en de trap naar de 1e verdieping. Aan de achterzijde bevindt zich de lichte, op het water gerichte woonkamer, waar 2 grote schuifpuien zorgen voor een directe verbinding met de serre en het terras. Dankzij de grote raampartijen geniet je hier van veel lichtinval en een prachtig uitzicht.
De moderne keuken, vernieuwd in 2024 en uitgevoerd in een strakke wandopstelling, is voorzien van een koelkast, oven, vaatwasser en een Bora inductiekookplaat met geïntegreerde afzuiging. De gehele begane grond is afgewerkt met een plavuizenvloer. Vanuit de hal bereik je tevens de berging/bijkeuken met vaste kastenwand, de opstelling van de cv-combiketel (Intergas, 2011), mechinische-ventilatieunit (2022), waterontharder en de aansluitingen voor de wasmachine en droger. Vanuit deze ruimte is er ook een deur naar buitne die uitkomt aan de voorzijde van de woning.
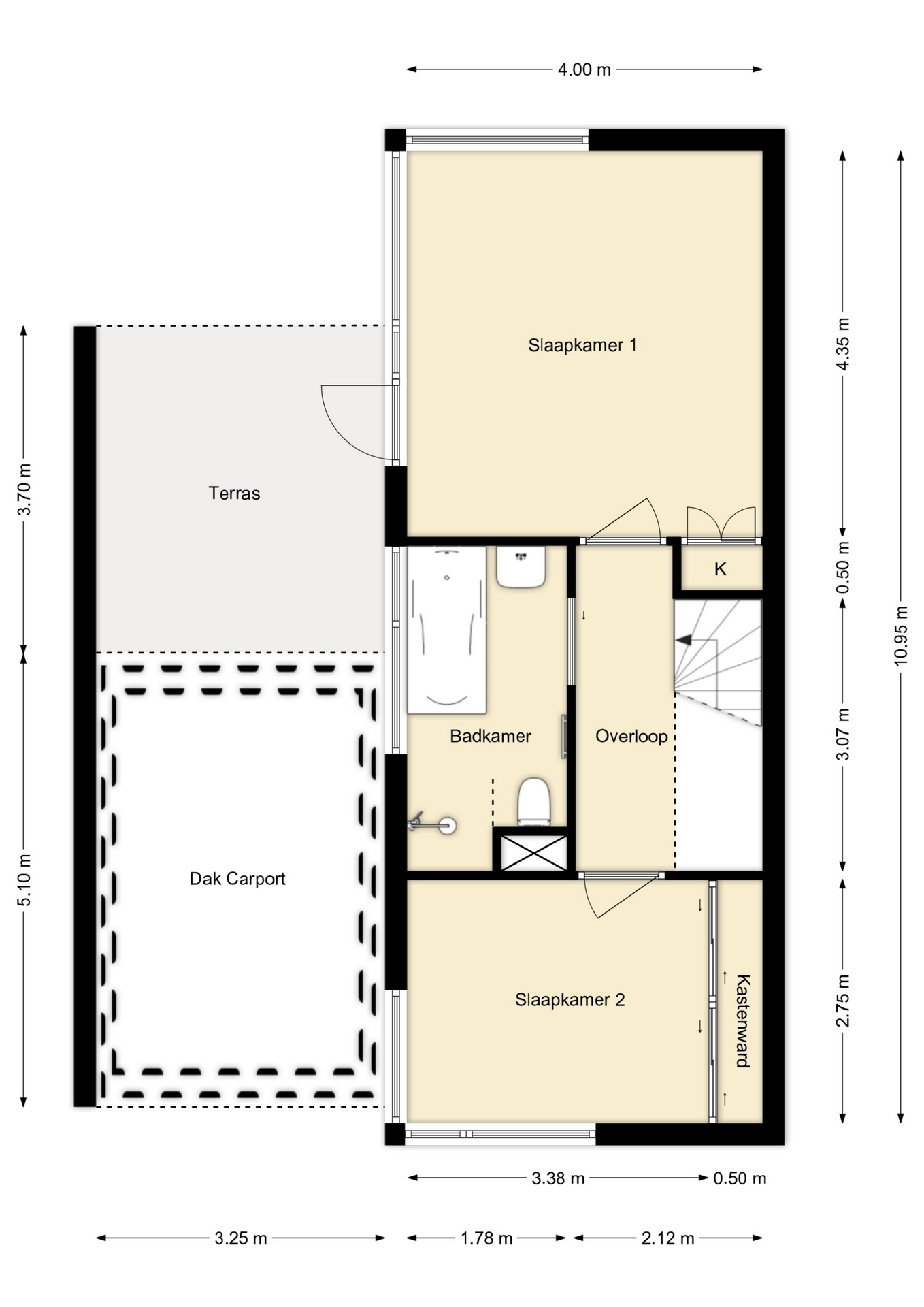
1e verdieping:
De overloop geeft toegang tot 2 ruime slaapkamers en de luxe badkamer. De royale hoofdslaapkamer aan de achterzijde biedt een prachtig uitzicht over de haven en is voorzien van een vaste kast en airconditioning (2024) en heeft toegang tot het dakterras. De 2e slaapkamer ligt aan de voorzijde van de woning. De moderne badkamer (2022) is voorzien van een inloopdouche, ligbad, wastafelmeubel, designradiator en een hangend closet. Ook deze verdieping is afgewerkt met een nette plavuizenvloer.
Zonneterras:
Aan de achterzijde bevindt zich een terrasoverkapping over de volledige breedte van de woning. Deze afsluitbare ruimte is voorzien van inbouwspots en kan worden verduisterd, waardoor je hier het hele jaar door comfortabel kunt zitten. Het aangrenzende zonneterras ligt op het zuiden, direct aan het water en beschikt over een eigen aanlegsteiger. Hier geniet je volop van de zon, het uitzicht en het buitenleven, met de mogelijkheid om zo het water op te varen. Het terras en de serre zijn uitgevoerd met een solide betonvloer onder de tegels.
Diversen:
- Gelegen aan het water met eigen aanlegsteiger.
- Luxe serre over de hele breedte van het zonneterras met verlichting en verduistering.
- Moderne keuken (2024) en badkamer (2022).
- Oprit voorzien van een laadpaal voor elektrische auto's.
- Het dak van de woning is in 2018 vernieuwd.
- Volledig voorzien van kunstof kozijnen met HR glas.
- Airconditioning in de hoofdslaapkamer (2024).
- Inpandige berging/bijkeuken met eigen entree.
- Instapklaar, modern en keurig afgewerkt.
Disclaimer:
Deze informatie is door Van Ravens Makelaardij met de nodige zorgvuldigheid samengesteld. De informatie is echter van algemene aard en niet meer dan een uitnodiging om in onderhandeling te treden. Onzerzijds wordt echter geen enkele aansprakelijkheid aanvaard voor enige onvolledigheid, onjuistheid of anderszins, dan wel de gevolgen daarvan. Alle opgegeven maten en oppervlakten zijn indicatief.
Van toepassing zijn de NVM voorwaarden.
Bijzondere voorwaarden:
Bij oudere objecten wordt er een ouderdomsclausule in de koopovereenkomst opgenomen. Daarnaast kunnen er aanvullende clausules van toepassing zijn zoals bijvoorbeeld een “niet zelfbewoningsclausule”.
