Speciale hoekwoning
Aan de dijk van Buitenplaats Brielle liggen drie bijzondere woningen die direct in het oog springen. Door hun gedraaide ligging in het blok zijn ze breder dan lang, wat zorgt voor een verrassende en speelse indeling. De voordeur zit centraal in de voorgevel, waardoor er links en rechts twee volwaardige leefruimtes ontstaan: een ruime woonkamer aan de ene kant en een royale woonkeuken aan de andere. De rijke architectuur met warm metselwerk, dakkapellen en verfijnde details geeft deze woningen een warme, karakteristieke uitstraling. Hier woon je echt anders dan anders.
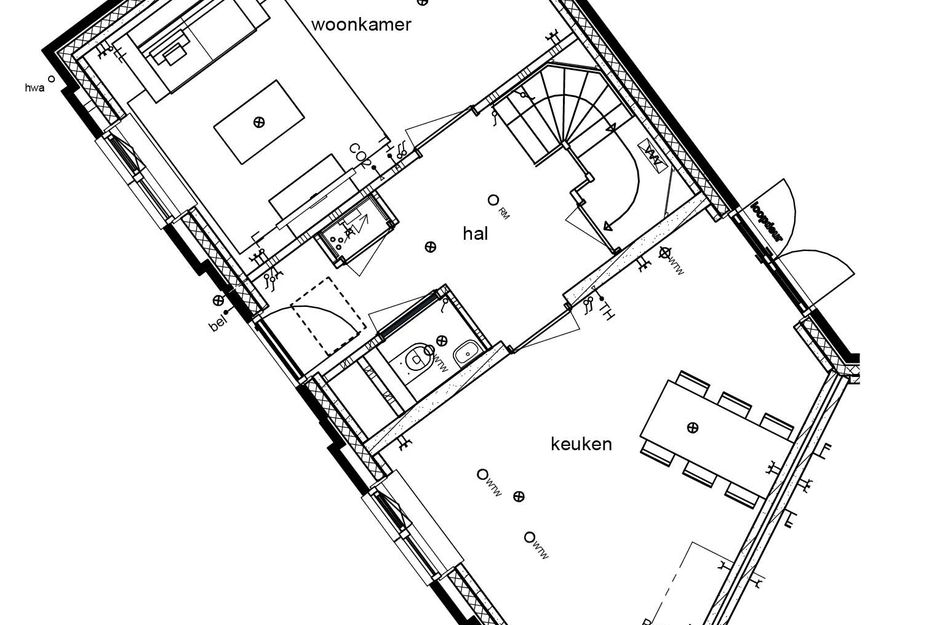
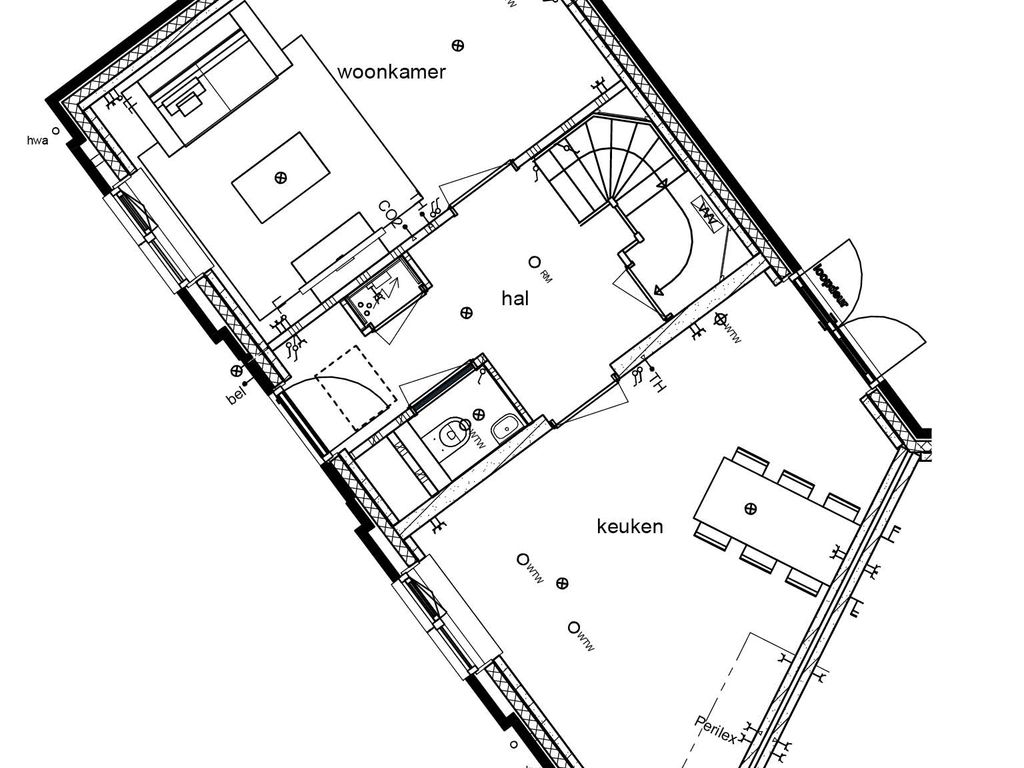
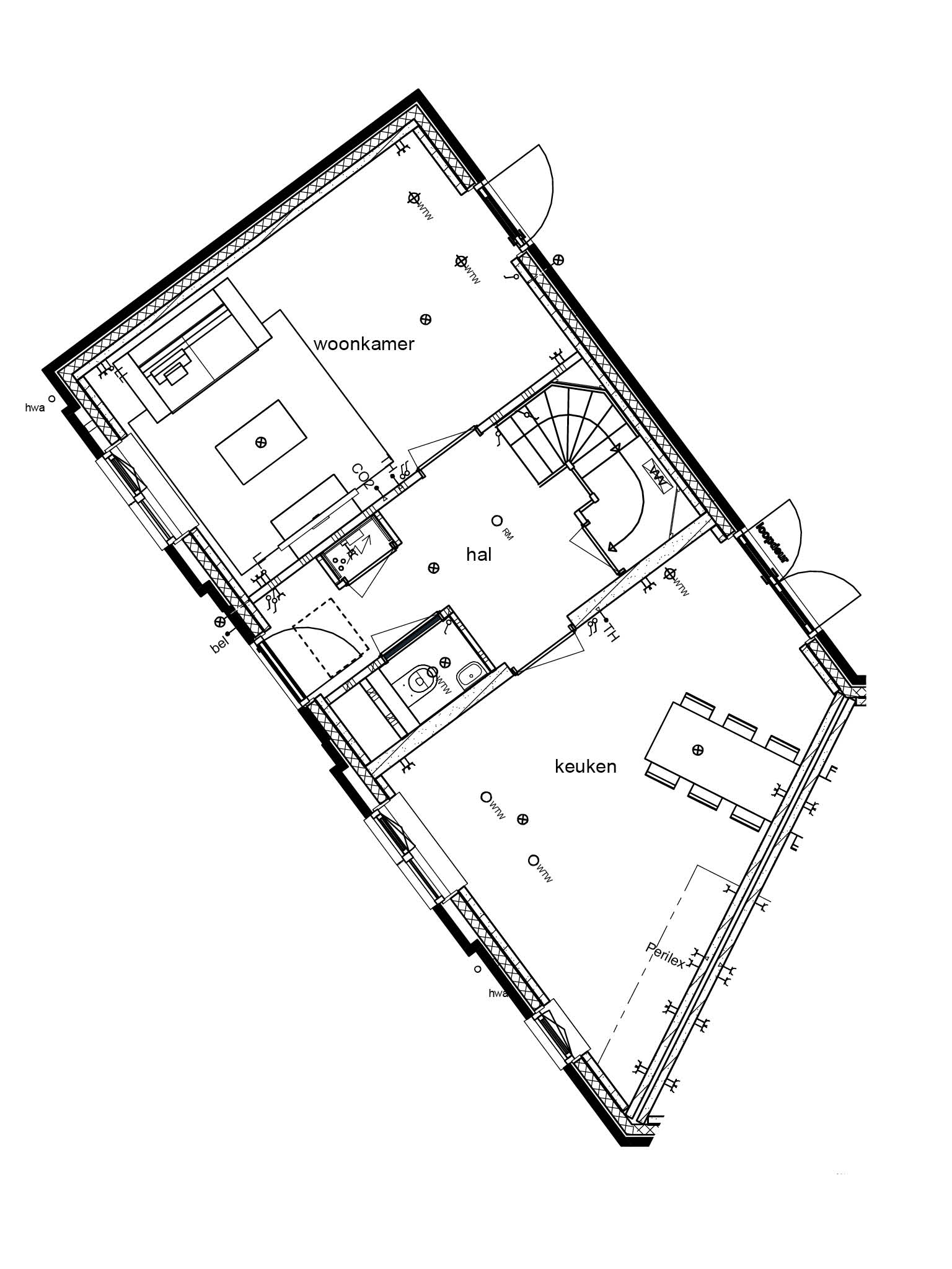
Ruimte om samen te leven
Zodra je binnenkomt in de ruime entreehal voel je het: dit is een huis met mogelijkheden. Hier vind je het toilet, de meterkast, een handige trapkast en de trap naar boven. Vanuit de hal kun je twee kanten op. Links ligt de woonkamer – een fijne plek om te ontspannen, te spelen of samen een film te kijken. Rechts bevindt zich de woonkeuken, met volop ruimte voor keukenkastjes én een grote eettafel. Ideaal voor lange avonden met vrienden of gezellige ontbijtjes met het gezin. Via openslaande deuren stap je zo de achtertuin in, gelegen op het westen of zuidwesten – perfect voor zonliefhebbers.
Slim ingedeeld en klaar voor de toekomst
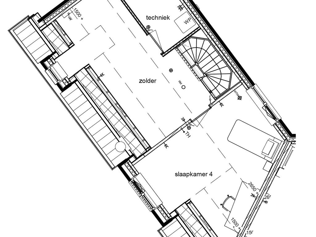
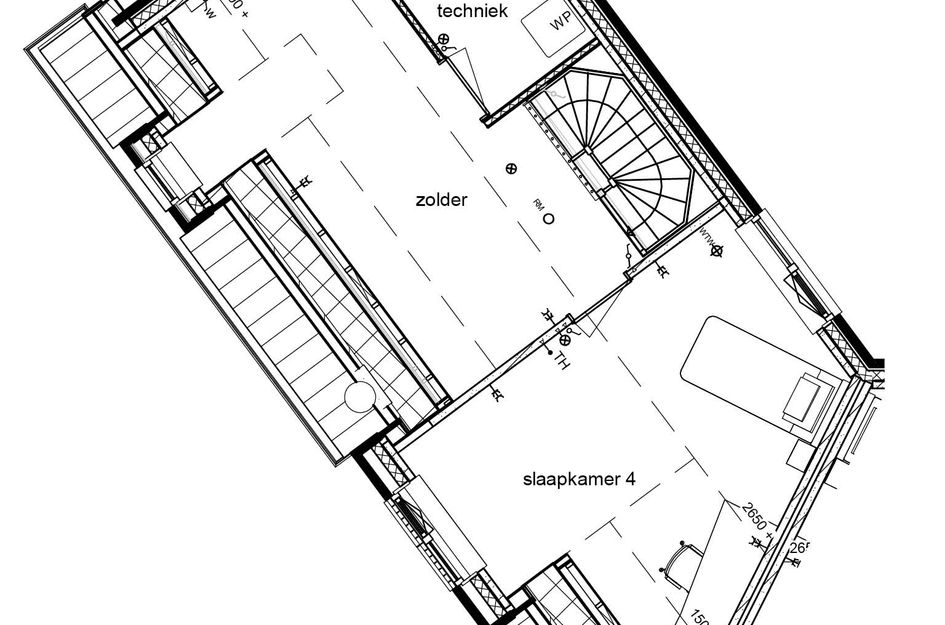
Op de eerste verdieping vind je drie slaapkamers en een badkamer met ruimte voor een douche, wastafel, bad én een tweede toilet. De tweede verdieping biedt nog meer ruimte: een vierde slaapkamer én een extra zolderruimte die je naar eigen wens kunt inrichten. Denk aan een speelkamer of werkplek. En het mooiste? Deze woning is voorzien van energielabel A++++. Dat betekent energiezuinig wonen, lage maandlasten en een comfortabel binnenklimaat.
Disclaimer:
Deze informatie is door Van Ravens Makelaardij met de nodige zorgvuldigheid samengesteld. De informatie is echter van algemene aard. Onzerzijds wordt echter geen enkele aansprakelijkheid aanvaard voor enige onvolledigheid, onjuistheid of anderszins, dan wel de gevolgen daarvan. Alle opgegeven maten en oppervlakten zijn indicatief.
Van toepassing zijn de NVM voorwaarden.
