Contact
Rijwoning 4.8, bouwnummer 116
Rijwoning 4.8, bouwnummer 116
Rijwoning 4.8, bouwnummer 116
Rijwoning 4.8, bouwnummer 116

Rijwoning 4.8, bouwnummer 116

Brielle

€ 489.000,- v.o.n.

Van Ravens Makelaardij

Interesse?

Neem contact met ons op!

Neem contact met ons op

Omschrijving

Rijwoning 4.8 meter

Het moment dat je de voordeur opent, voel je het al. Dit is niet zomaar een huis. Aan de dijk of de groene laan van Buitenplaats Brielle ontvouwt zich over drie verdiepingen jouw nieuwe leven. De sfeervolle architectuur met rijke metselwerkdetails, verschillende kleuren baksteen en hier en daar een charmante tuitgevel geeft de woningen een eigen gezicht. Waar kaplaarzen bij de deur staan en avontuur om de hoek ligt. Voel je thuis in Brielle, waar elke dag een nieuw avontuur is.

Voel je thuis
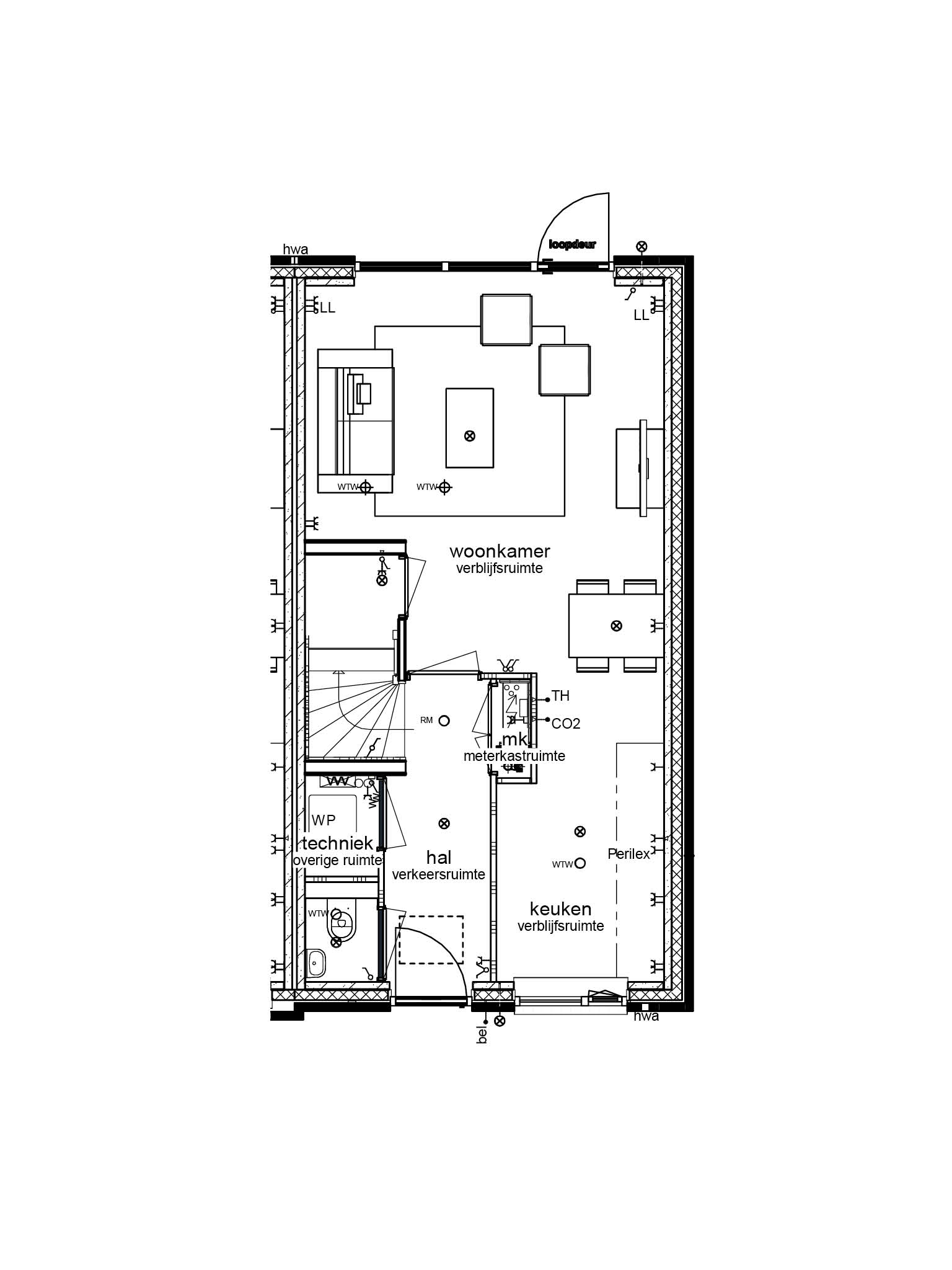
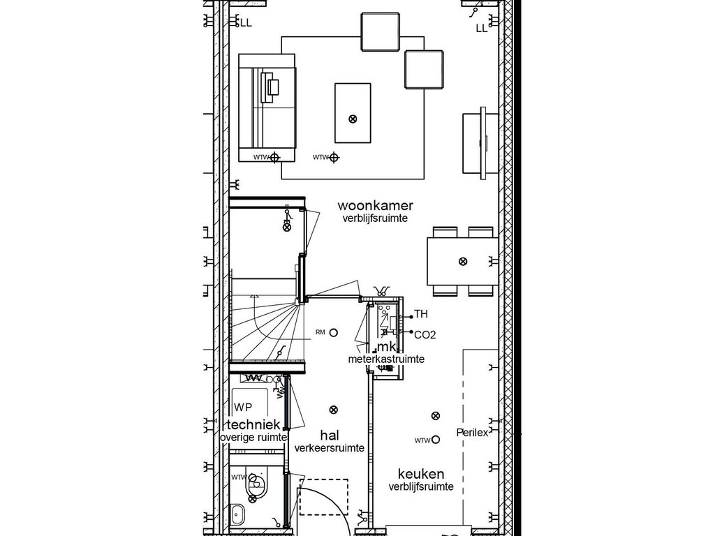
Je stapt deze rijwoning binnen in de entreehal met het toilet, de meterkast en trap naar boven. De begane grond nodigt uit tot samenzijn. Vanuit de keuken aan de voorzijde zie je de buurt ontwaken en kook je de lekkerste maaltijden voor jezelf of je gezin. In de woonkamer speelt het dagelijks leven zich af en heb je door het brede raam goed uitzicht over de tuin. Sla de achterdeur open en stap naar buiten je achtertuin in. Een persoonlijk stukje paradijs op het zuidoosten of noordwesten. Dé plek om te genieten van het leven in de groene omgeving.

De verdiepingen
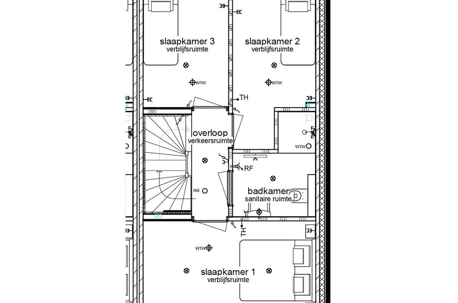
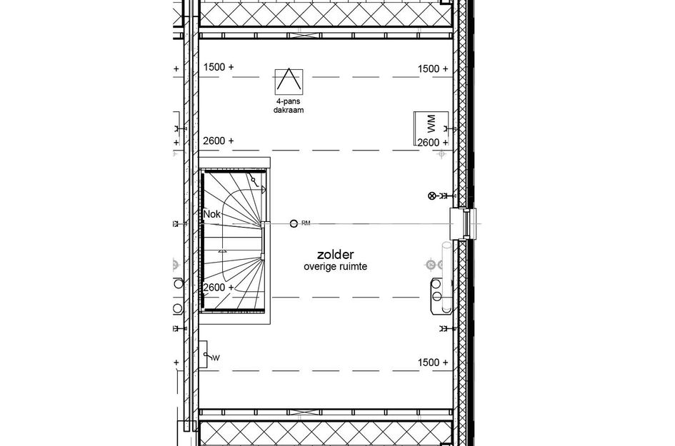
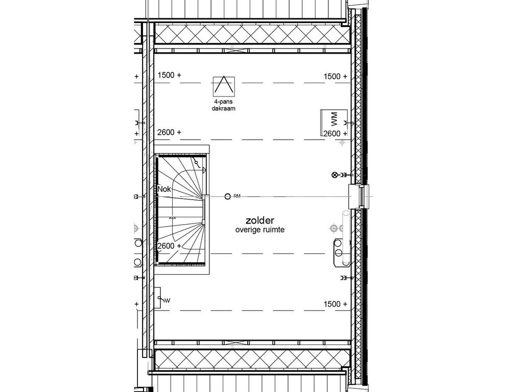
Boven wachten 3 slaapkamers. De verschillende groottes geven je de vrijheid om ze in te richten zoals jij wilt. De badkamer is voorzien van een douche, wastafel en 2e toilet. Hier start je elke dag fris en eindigt je dag ontspannen. Ga je mee naar de 2e verdieping? Hier zijn de aansluiting voor de wasmachine. Verder heb je alle vrijheid om inrichting te geven aan de ruimte. Wat dacht je van een fijne werkkamer, sportruimte of logeerkamer? En goed om te weten: deze woning is voorzien van energielabel A++++. Dat betekent energiezuinig wonen, lage maandlasten én een duurzame keuze. Helemaal klaar voor de toekomst!

Disclaimer:
Deze informatie is door Van Ravens Makelaardij met de nodige zorgvuldigheid samengesteld. De informatie is echter van algemene aard. Onzerzijds wordt echter geen enkele aansprakelijkheid aanvaard voor enige onvolledigheid, onjuistheid of anderszins, dan wel de gevolgen daarvan. Alle opgegeven maten en oppervlakten zijn indicatief.
Van toepassing zijn de NVM voorwaarden.
+ Lees meer

Kenmerken

Overdracht

Vraagprijs
€ 489.000,- v.o.n.
Status
verkocht onder voorbehoud

Bouw

Soort woning
woonhuis
Soort woonhuis
eengezinswoning
Type woonhuis
Hoekwoning
Bouwvorm
nieuwbouw
Dak
samengesteld dak

Energie

Oppervlakten en inhoud

Woonoppervlakte
102 m²
Perceeloppervlakte
160 m²
Inhoud
315 m³

Indeling

Aantal kamers
4
Aantal slaapkamers
3

Buitenruimte

Ligging
in woonwijk

Foto's

Vraag een bezichtiging aan of neem contact met ons op.