Dit goed afgewerkte appartement met 1 slaapkamer, zonnig balkon en een berging is gelegen in het sfeervolle dorp Rockanje. Vermeldenswaardig zijn de nette keuken en badkamer. Het verzorgde 2 kamer appartement is gelegen op de 1e verdieping van een kleinschalig complex met lift en is gebouwd in 2016. Woonoppervlak ca. 40 m2 en volledig geïsoleerd. Energielabel A. Verwarming middels c.v. combiketel (Intergas 2016). Kortom een instapklaar appartement op loopafstand van winkels, openbaar vervoer en strand! Parkeren kan in de straat.
Begane grond
Centrale entree met postbussen, trappenhuis en lift.
Eerste verdieping
De woning is bereikbaar de galerij.
Indeling:
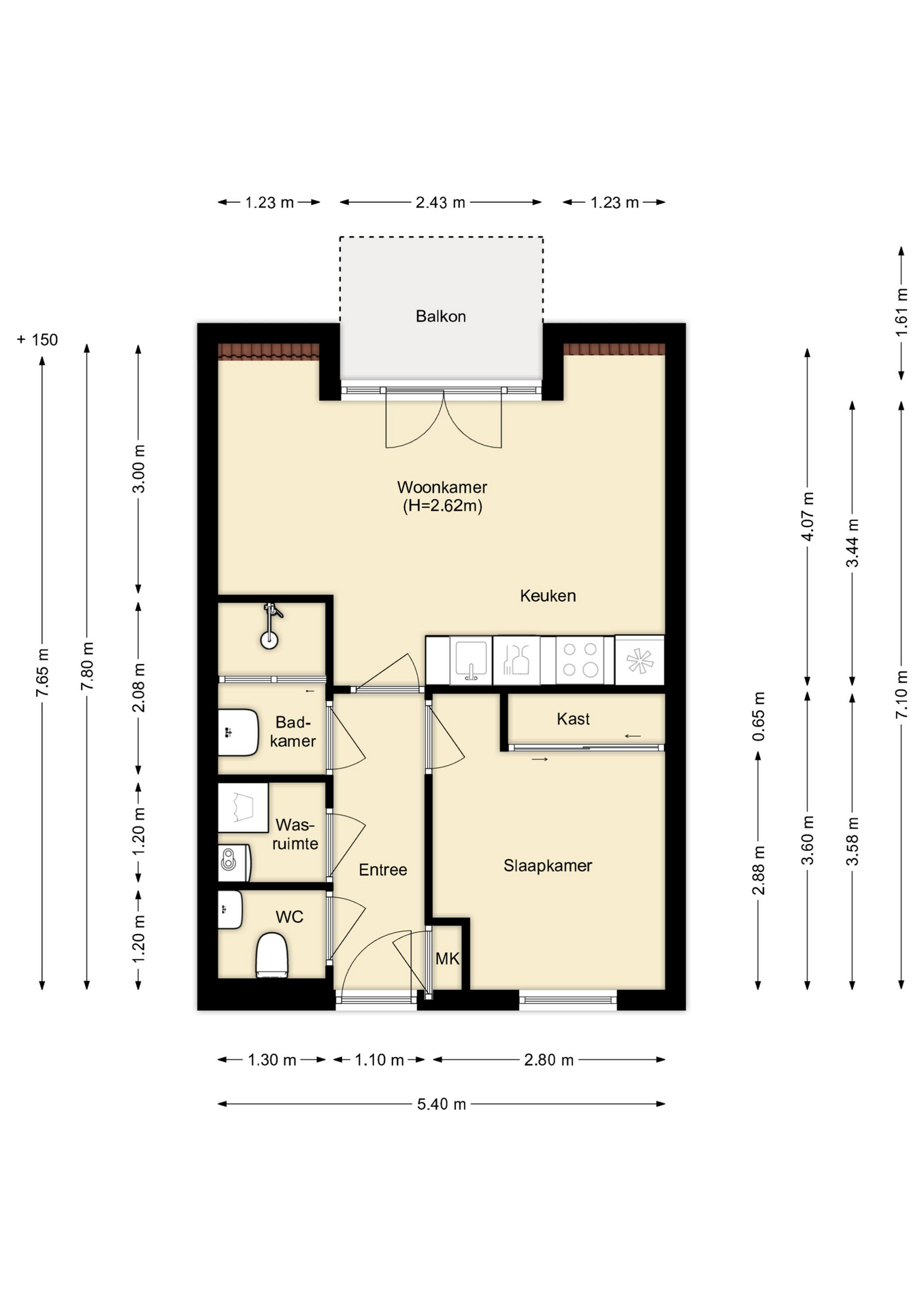
Entree/ hal met garderobe, deurtelefoon, betegeld toilet met fonteintje, meterkast met voldoende groepen en aardlekschakelaar. De gehele woning is voorzien van een PVC-vloer in houtmotief met vloerverwarming.
Wasruimte met unit mechanische ventilatie en opstelplaats van cv combiketel (Intergas 2016) en wasmachineaansluiting.
Slaapkamer I - ca. 3.60 x 2.80 m
Ruime slaapkamer gelegen aan de achterzijde. Deze kamer is v.v. een kastenwand.
Badkamer - ca. 2.08 x 1.23 m
Modern betegelde badkamer voorzien van wastafelmeubel, douche en vloerverwarming.
Woonkamer/ keuken - ca. 5.40 x 3.00/ 4.07 m
Lichte en sfeervolle woonkamer voorzien spachtelputz wanden en openslaande deuren naar het balkon. In de hoek bevindt zich de keuken. De wandopstelling is v.v. kunststof blad met spoelunit, koelkast, vriezer, 4 pits gaskookplaat, afzuigkap, combimagnetron en vaatwasser.
Balkon - ca. 2.43 x 1.61 m
Het balkon bevindt zich aan de voorzijde van de woning.
Berging - ca. 2.42 x 2.05 m
Op de begane grond bevindt zich de inpandige berging.
Bijzonderheden:
- fraai appartement met 1 slaapkamer, balkon en eigen berging;
- bouwjaar 2016;
- woonoppervlakte 40 m2, balkon ca. 4 m2;
- energielabel A;
- lichte woonkamer v.v. PVC-vloer;
- volledig vloerverwarming;
- verwarming en warmwater middels c.v.-combiketel (Intergas 2016);
- bijdrage VvE per januari 2026 ca. € 176,- per maand;
- kleinschalig complex met lift;
- in dorpskern met supermarkt, openbaar vervoer en bos.
Wij behartigen de belangen van de verkopende partij. Neem uw eigen aankoopmakelaar mee!
Disclaimer:
Deze informatie is door De Vreij Makelaardij met de nodige zorgvuldigheid samengesteld. De informatie is echter van algemene aard en niet meer dan een uitnodiging om in onderhandeling te treden. Onzerzijds en verkoper wordt echter geen enkele aansprakelijkheid aanvaard door enige onvolledigheid, onjuistheid of anderszins, dan wel de gevolgen daarvan. De meetinstructie is gebaseerd op de NEN2580. De meetinstructie is bedoeld om een meer eenduidige manier van meten toe te passen voor het geven van een indicatie van de gebruiksoppervlakte. De meetinstructie sluit verschillen in meetuitkomsten niet volledig uit, door bijvoorbeeld interpretatieverschillen, afrondingen of beperkingen bij het uitvoeren van de meting. Van toepassing zijn de Vastgoed Ned voorwaarden.
