Ben je op zoek naar een bijzonder pand in de historische vesting van Brielle? Dit rijksmonument in de gezellige Nobelstraat biedt je alle charme van wonen in het centrum. Op dit moment is hier de kledingzaak “Cartouche” gevestigd, met daarboven een sfeervolle woning. De winkel en de bovenwoning worden leeg opgeleverd, dus je kunt er alle kanten mee op – ook volledig als woonhuis gebruiken is mogelijk.
Door de centrale ligging midden in het centrum zijn alle voorzieningen zoals de supermarkt, winkels en het terras op loopafstand! Ook de natuurliefhebber zit hier goed: het Brielse Meer, de stranden van Oostvoorne en Rockanje en de haven van Hellevoetsluis zijn allemaal op fietsafstand. En of je nu richting Maasvlakte, Europoort of Rotterdam moet — Via de A15 en de nieuwe snelweg A24 (Blankenburgverbinding) sta je binnen 30 autominuten in Rotterdam centrum, maar met de N218 en N57 om de hoek ben je ook zo in Zeeland.
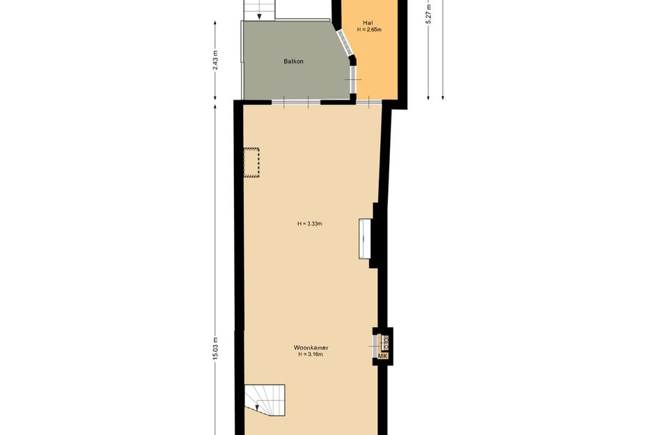
Begane grond:
Op de begane grond bevindt zich de winkelruimte (circa 85 m2) met openslaande deuren naar de stadstuin en een prachtig authentiek balkenplafond. Op dit moment is hier de kledingzaak “Cartouche” gevestigd, met daarboven een sfeervolle woning. De winkel en de bovenwoning worden leeg opgeleverd, dus je kunt er alle kanten mee op – ook volledig als woonhuis gebruiken is mogelijk. Achterin vind je nog een hal ook met een deur die toegang geeft tot de tuin. Verder zit daar nog een toilet, pantry, schuifwandkast en de trap naar de eerste verdieping.
1e verdieping:
Deze woonverdieping is zowel via de tuin met een trap naar het balkon bereikbaar als via de trap in de hal op de begane grond. Hier bevindt zich de ruime woonkamer met gashaard, open trap naar de 2e verdieping en de karakteristieke houten balken zorgen voor een warme sfeer. De moderne keuken is aan de voorzijde gesitueerd en voorzien van een eiland met inductiekookplaat, afzuigkap, oven, magnetron, koel-vriescombinatie en een vaatwasser. In de hal aan de achterzijde ligt de badkamer met douchecabine, wastafelmeubel en toilet. Vanuit de woonkamer is via openslaande deuren het balkon met trap naar de stadstuin bereikbaar.
2e verdieping:
De tweede verdieping heeft een ruime overloop en veel lichtinval dankzij de dakramen. Aan de voorzijde ligt een ruime slaapkamer voorzien van 2 ramen en aan de achterzijde vind je een 2e slaapkamer met meerdere ramen wat ervoor zorgt dat de ruimte heerlijk licht is. Deze kamer heeft een open badkamer, voorzien van hoekbad, douchecabine, wastafelmeubel en designradiator. Ook zijn hier vaste kasten te vinden voor extra bergruimte, een apart toilet en een kast met opstelling van de cv-ketels (Remeha 2019). Mooi authentiek detail van deze verdieping is de prachtige sparrenkap.
Stadstuin:
De woning heeft zowel een tuin als een balkon, waardoor je op verschillende plekken heerlijk van het buitenleven kunt genieten. Achter in de tuin is een berging te vinden met overkapping, voorzien van elektra. Via een deur achter in de tuin is er via een steegje de Turfkade te bereiken, waar voldoende parkeergelegenheid is (blauwe parkeerzone).
Bijzonderheden:
- Rijksmonument nr. 10807 "Gepleisterde lijstgevel XIX A voor huis van parterre en verdieping met schilddak, waarin dakvenster met vleugelstukken".
- Er is een niet zelfbewoningsclausule van toepassing.
- Bestemming is "centrum".
- De winkel en de bovenwoning worden leeg opgeleverd, dus je kunt er alle kanten mee op – ook volledig als woonhuis gebruiken is mogelijk.
- Ruime tuin én balkon.
- Sfeervolle authentieke details zoals houten balkenplafond en sparrenkap.
Disclaimer:
Deze informatie is door Van Ravens Makelaardij met de nodige zorgvuldigheid samengesteld. De informatie is echter van algemene aard en niet meer dan een uitnodiging om in onderhandeling te treden. Onzerzijds wordt echter geen enkele aansprakelijkheid aanvaard voor enige onvolledigheid, onjuistheid of anderszins, dan wel de gevolgen daarvan. Alle opgegeven maten en oppervlakten zijn indicatief.
Van toepassing zijn de NVM voorwaarden.
Bijzondere voorwaarden:
Bij oudere objecten wordt er een ouderdomsclausule in de koopovereenkomst opgenomen. Daarnaast kunnen er aanvullende clausules van toepassing zijn zoals bijvoorbeeld een “niet zelfbewoningsclausule”.
