Gelegen aan een brede groenstrook aan een autovrij pad staat deze ruime hoekwoning met garage en berging. De woning met bouwjaar 1967 heeft een woonoppervlakte van ca. 108m2 en ligt op een perceel eigen grond van 187 m2. De woning beschikt o.a. over een lichte doorzonwoonkamer met open keuken, 3 (voorheen 4) ruime slaapkamers en nette badkamer. Aan de garage is een gezellige tuinkamer geplaatst, welke voor diverse doeleinden gebruikt kan worden. Naast de garage is er voldoende parkeergelegenheid op het pleintje achter de woning. Voorzieningen zoals winkels, supermarkt, scholen en sportvelden zijn dichtbij. De landtong biedt een mooie groene strook voor sporten of wandelen.
Omschrijving
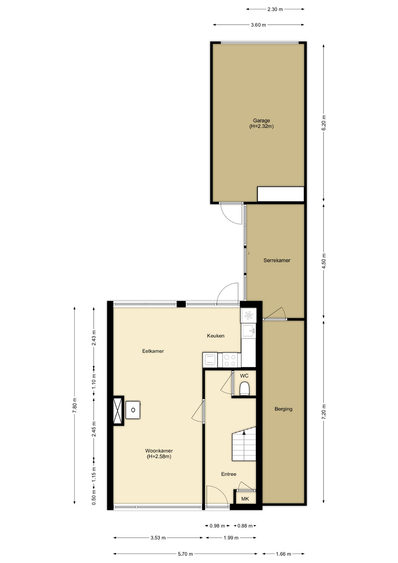
Entree/ hal met de meterkast, toilet, trapopgang naar de 1e verdieping en toegang tot de woonkamer.
Woonkamer
De ruime woonkamer is mede door de grote raampartijen aan de voor-en achterzijde een fijne lichte ruimte. De houtkachel geeft deze ruimte extra sfeer. Vanuit de woonkamer is er vrij zicht over de brede groenstrook.
Keuken
De keuken is gelegen aan de achterzijde van de woning en heeft toegang tot de tuin. De open keuken met een eenvoudige hoekopstelling is uitgerust met een spoelunit, 5-pits gaskookplaat, afzuigkap, combi-magnetron, koelkast en vaatwasmachine.
De vloer op de begane grond is afgewerkt met laminaat.
Eerste verdieping
Overloop met toegang tot de slaapkamers, badkamer en de trapopgang naar de 2e verdieping.
Slaapkamer I
Deze ruime slaapkamer (voorheen 2 slaapkamers) is voorzien van kastenwand en is afgewerkt met tapijt. Met een kleine aanpassing kunt u van deze ruimte weer eenvoudig 2 slaapkamers maken.
Slaapkamer II
Deze slaapkamer is gelegen aan de achterzijde en beschikt ook over een vaste kast. De vloer is afgewerkt met laminaat.
Badkamer
De badkamer is keurig betegeld en beschikt over een wastafelmeubel met spiegelkast, whirlpool met douche, tweede toilet en designradiator.
Tweede verdieping
Ruime voorzolder met de opstelplaats voor de CV ketel (Bosch 2013) en de aansluiting voor de wasmachine. De vloer is afgewerkt met laminaat.
Slaapkamer III
Deze slaapkamer is voorzien van een kunststof dakkapel, waardoor deze kamer extra licht en ruim is. De vloer is afgewerkt met tapijt. Tevens is er bergruimte achter de knieschotten.
Tuin
De fijne achtertuin is gelegen op het noordwesten en voorzien van sierbestrating. Aan de achtergevel is een zonnescherm geplaatst. Achter in de tuin vindt u de garage. Aan de garage is een gezellige tuinkamer geplaatst. U kunt deze ruimte voor diverse doeleinden gebruiken. Vanuit de tuinkamer is de berging te bereiken.
Tuinkamer
Hobbyruimte of overdekt terras.
Garage
De garage is voorzien van een elektrische garagedeur en een enkele loopdeur.
Berging
De berging is gelegen naast de woning en beschikt over elektra.
Bijzonderheden:
- hoekwoning met 3 slaapkamers (voorheen 4), garage en berging;
- bouwjaar 1967;
- woonopp ca. 108 m2, perceel 187 m2 eigen grond;
- nette badkamer;
- tuin op noordwesten met achterom;
- grote zolderverdieping met slaapkamer en dakkapel;
- gelegen aan groenstrook en autovrij pad;
- parkeergelegenheid achter de woning.
Wij nemen in de koopakte op:
- ouderdomsartikel, de woning is 55 jaar of ouder;
- asbestartikel, gezien bouw voor 1994;
- niet zelf bewoondclausule.
Wij behartigen de belangen van de verkopende partij. Neem uw eigen aankoopmakelaar mee!
Disclaimer:
Deze informatie is door De Vreij Makelaardij met de nodige zorgvuldigheid samengesteld. De informatie is echter van algemene aard en niet meer dan een uitnodiging om in onderhandeling te treden. Onzerzijds en verkoper wordt echter geen enkele aansprakelijkheid aanvaard door enige onvolledigheid, onjuistheid of anderszins, dan wel de gevolgen daarvan. De meetinstructie is gebaseerd op de NEN2580. De meetinstructie is bedoeld om een meer eenduidige manier van meten toe te passen voor het geven van een indicatie van de gebruiksoppervlakte. De meetinstructie sluit verschillen in meetuitkomsten niet volledig uit, door bijvoorbeeld interpretatieverschillen, afrondingen of beperkingen bij het uitvoeren van de meting. Van toepassing zijn de Vastgoed Ned voorwaarden.
