Op zoek naar een ruime hoekwoning met 4 slaapkamers in een rustige en kindvriendelijke woonomgeving? Dan is deze praktische eengezinswoning in Zwartewaal absoluut een bezichtiging waard. De woning beschikt over een lichte doorzonwoonkamer met vloerverwarming, een dakkapel én een fijne achtertuin op het westen. Dankzij de 4 slaapkamers is dit een ideale woning voor gezinnen of voor wie extra werk- of hobbyruimte zoekt.
Zwartewaal is een gezellig en rustig dorp met alle nodige voorzieningen, zoals een basisschool, dorpscentrum De Gaffelaar en diverse sport- en recreatiemogelijkheden. Het historische centrum van Brielle met haar sfeervolle horeca, winkels en terrassen ligt op slechts 10 minuten afstand. Ook de natuurliefhebber zit hier goed: het Brielse Meer, de stranden van Oostvoorne en Rockanje en de haven van Hellevoetsluis liggen allemaal op fietsafstand. En of je nu richting Maasvlakte, Europoort of Rotterdam moet — via de A15 en de A24 (Blankenburgverbinding) sta je binnen 30 autominuten in Rotterdam centrum. Met de N218 en N57 om de hoek ben je bovendien zo in Zeeland. Ideaal voor wie rust en bereikbaarheid wil combineren.
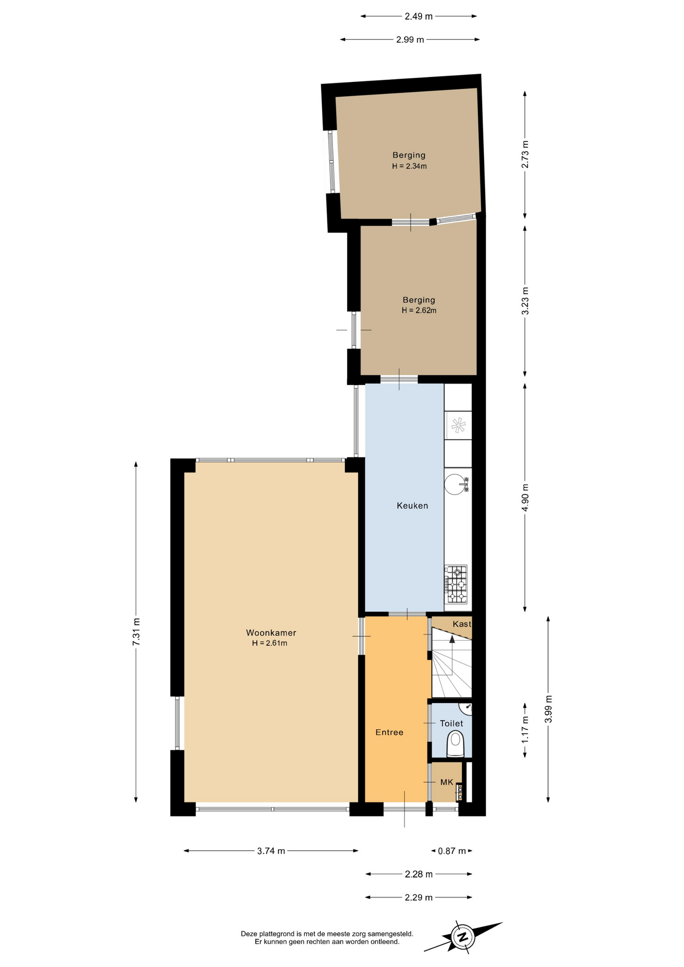
Begane grond:
Via de hal/entree met meterkast, toiletruimte met fonteintje en trapopgang naar de verdieping betreed je de woning. De hal biedt toegang tot de doorzonwoonkamer en keuken. De lichte doorzonwoonkamer is ruim en voorzien van vloerverwarming en openslaande deuren naar de achtertuin, wat zorgt voor veel lichtinval en een fijne verbinding met buiten. Aan de voor- en zijkant zijn de woonkamerramen voorzien van screens en aan de achtergevel zit een elektrische zonwering, wat zorgt voor extra comfort. De keuken is voorzien van een 5-pits gaskookplaat, afzuigkap, combi-oven, koelkast, vriezer, vaatwasser, wijnkoelkast en een boiler. De keukenvloer is afgewerkt met plavuizen. Vanuit de keuken is er toegang tot de praktische berging met uitstortgootsteen en deur naar de achtertuin. Vanuit deze ruimte is tevens een tweede berging bereikbaar — ideaal voor extra opslag.
1e verdieping:
De overloop biedt toegang tot 3 slaapkamers en de trap naar de 2e verdieping. Twee slaapkamers zijn voorzien van tapijt en één slaapkamer van laminaat. Alle kamers beschikken over vaste kasten en bovendien is de hoofdslaapkamer uitgerust met een elektrisch rolluik. De badkamer is voorzien van een sanibroyeur toilet, douche ruimte (drempelloos), wastafel en aansluiting voor de wasmachine. Het aanwezige raam zorgt voor natuurlijk licht en ventilatie in deze ruimte.
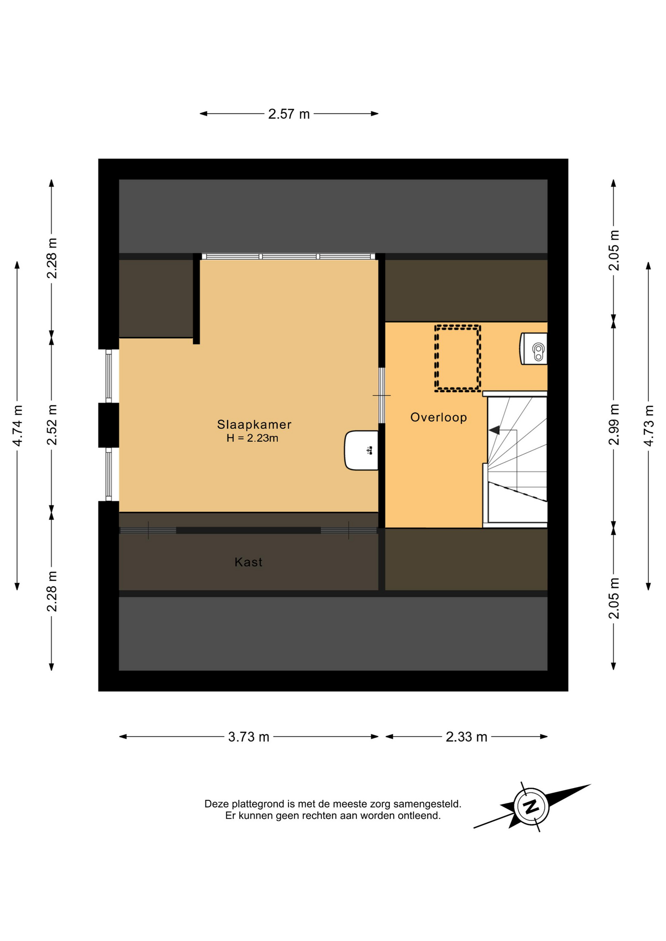
2e verdieping:
Op de 2e verdieping bevindt zich de overloop met dakraam en opstelling van de cv-combiketel (Nefit). Op deze verdieping is tevens de 4e slaapkamer gerealiseerd. Deze kamer is voorzien van een dakkapel, een wastafel, 2 kopgevelramen, tapijt en praktische knieschotbergingen, wat zorgt voor extra ruimte en licht.
Tuin:
De woning beschikt over een voor-, zij- en achtertuin. De achtertuin ligt op het westen en is grotendeels bestraat, onderhoudsvriendelijk ingericht en biedt een prettige plek om optimaal te genieten van de middag- en avondzon.
Diversen:
- De woning is voorzien van houten kozijnen met dubbel glas en deels HR++ glas (alleen raam meterkast is enkel glas).
- Vloerverwarming in de woonkamer.
- Spouwmuurisolatie.
- 2 praktische bergingen voor extra opslagruimte.
- Speeltuintje om de hoek.
Persoonlijke noot van de verkopers:
"Ons ouderlijk huis staat voor het eerst sinds 57 jaar te koop. Onze ouders waren in augustus 1969 de eerste kopers. Het huis is altijd goed onderhouden en er zit veel liefde in de afwerking. Nu is het tijd voor een nieuwe periode en dat verdient dit huis ook. We hopen dat het huis de toekomstige bewoners net zoveel geborgenheid en plezier gaat brengen als wij hebben ervaren toen we er opgroeiden."
Disclaimer:
Deze informatie is door Van Ravens Makelaardij met de nodige zorgvuldigheid samengesteld. De informatie is echter van algemene aard en niet meer dan een uitnodiging om in onderhandeling te treden. Onzerzijds wordt echter geen enkele aansprakelijkheid aanvaard voor enige onvolledigheid, onjuistheid of anderszins, dan wel de gevolgen daarvan. Alle opgegeven maten en oppervlakten zijn indicatief.
Van toepassing zijn de NVM voorwaarden.
Bijzondere voorwaarden:
Bij oudere objecten wordt er een ouderdomsclausule in de koopovereenkomst opgenomen. Daarnaast kunnen er aanvullende clausules van toepassing zijn zoals bijvoorbeeld een “niet zelfbewoningsclausule”.
