Contact
Jan de Klerkstraat 32

Jan de Klerkstraat 32

BRIELLE

vraagprijs

verkocht

Ook uw woning of bedrijfspand succesvol verkopen? Neem dan contactmet ons op

Omschrijving

Ben je op zoek naar een woning in een kindvriendelijke wijk binnen de vesting van Brielle? Dan is deze charmante tussenwoning met 4 slaapkamers écht iets voor jou! De lichte woonkamer met airconditioning en schuifpui naar de overkapping biedt veel comfort, net als de moderne keuken. De tweede verdieping heeft een nokverhoging waardoor extra ruimte is ontstaan, ideaal voor een slaapkamer of werkruimte.

Om de hoek loop je zo naar het Oranjeplein met daar Bastion V, een bunker met prachtige schilderingen welke de Franse tijd uitbeelden. Een locatie doordrenkt met geschiedenis en omgeven door groene weilanden, deze woning biedt het beste van beide werelden. Geniet van een wandeling in de historische binnenstad met al haar monumentale panden of liever een dagje naar het strand? Dan ben je natuurlijk ook zo in Rockanje of Oostvoorne. Verder kom je met de uitvalswegen A15, N218 en de N57 zo in Rotterdam, Zeeland of verder…. Kortom, een heerlijke plek om te wonen.

Begane grond:
Entree/hal voorzien van de toiletruimte met een hangend closet en fontein, de trap naar de eerste verdieping, een trapkast, een bergkast met de meterkast en de deur naar de woonkamer. Lichte woonkamer met een parketvloer welke zorgt voor een warme uitstraling. Dankzij de grote ramen en de schuifpui (in 2023 geplaatst) naar de aangebouwde overkapping met schuifdeuren wand (in 2022 geplaatst) heeft de woonkamer de hele dag natuurlijk licht. De overkapping met spotjes is een fijne ruimte waar je alle seizoenen kunt genieten. Extra fijn is dat er in de warme zomerdagen elektrische zonwering aanwezig is die het glazen dak beschermt tegen de warmte. Hiervoor vinden we aan de voorzijde van de woonkamer nog een markies en is er binnen airconditioning. Grenzend aan de woonkamer vinden we de moderne keuken, die in 2022 volledig is vernieuwd en voorzien van alle moderne gemakken: een inductiekookplaat met geïntegreerd afzuigsysteem, vaatwasser, een oven, een combimagnetron, close in boiler en een koelkast.

1e verdieping:
Overloop met toegang tot drie slaapkamers en de badkamer. Aan de achterzijde 2 slaapkamers en de 3e slaapkamer bevindt zich aan de voorzijde van de woning. De ramen van de slaapkamers zijn voorzien van horren. De badkamer is voorzien van een douche, wastafel met meubel en een designradiator. De badkamer is geheel betegeld en heeft een raam wat prettig is voor de natuurlijke ventilatie.

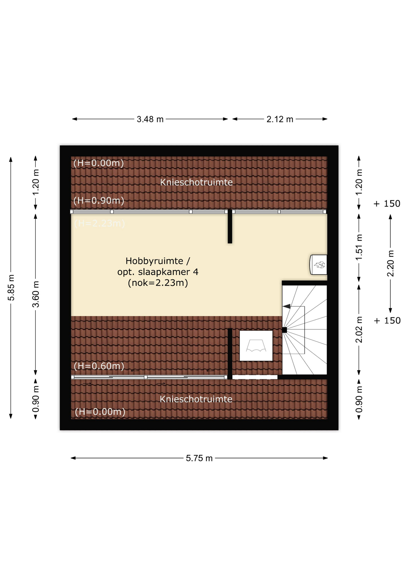
2e verdieping:
Via een vaste trap te bereiken de 2e ruime verdieping met een nokverhoging over de gehele breedte van de verdieping. Het grote raam (van de in totaal 2 ramen) is voorzien van een elektrische rolluik. De ruimte is nu open, maar kan eventueel gesplitst worden in 2 ruimtes voor een aparte slaapkamer. Verder is er nog knieschotruimte, de opstelling van de cv-ketel (Remeha 2020) en de opstelling voor een wasmachine.

Tuin:
Ruime voortuin met een buitenkraan. De achtertuin is gelegen op het zuidwesten en is grotendeels bestraat, maar ook voorzien van plantenborders, een buitenkraan en is omheind met schuttingen.

Berging:
De vrijstaande stenen berging is gelegen in de achtertuin en voorzien van elektra.

Diversen:
- Goed onderhouden tussenwoning met een schuifpui uit 2023 en overkapping uit 2022.
- Nokverhoging op de 2e verdieping.
- De keuken is uit 2022.
- Voorzien van dubbele beglazing en vloerisolatie.
- Kunststof en houten kozijnen.
- Aan de voorzijde zicht op een groen veldje.

Disclaimer:
Deze informatie is door Van Ravens Makelaardij met de nodige zorgvuldigheid samengesteld. De informatie is echter van algemene aard en niet meer dan een uitnodiging om in onderhandeling te treden. Onzerzijds wordt echter geen enkele aansprakelijkheid aanvaard voor enige onvolledigheid, onjuistheid of anderszins, dan wel de gevolgen daarvan. Alle opgegeven maten en oppervlakten zijn indicatief.
Van toepassing zijn de NVM voorwaarden.

Bijzondere voorwaarden:
Bij oudere objecten wordt er een ouderdomsclausule in de koopovereenkomst opgenomen. Daarnaast kunnen er aanvullende clausules van toepassing zijn zoals bijvoorbeeld een “niet zelfbewoningsclausule”.
+ Lees meer

Kenmerken

Overdracht

Status
verkocht
Aanvaarding
in overleg

Bouw

Soort woning
woonhuis
Soort woonhuis
eengezinswoning
Type woonhuis
tussenwoning
Aantal woonlagen
3
Bouwvorm
bestaande bouw
Bouwjaar
1965
Huidige bestemming
woonruimte
Onderhoud binnen
goed
Onderhoud buiten
goed
Voorzieningen
rolluiken, buitenzonwering, airconditioning
Isolatie
vloerisolatie, dubbel glas

Energie

Energielabel
C
Verwarming
cv ketel
Warm water
cv ketel
C.V.-ketel
gas gestookte combi-ketel uit 2020 van Remeha, eigendom

Oppervlakten en inhoud

Woonoppervlakte
84 m²
Perceeloppervlakte
120 m²
Inhoud
289 m³
Bergruimte oppervlakte
7 m²
Buitenruimte oppervlakte
10 m²

Indeling

Aantal kamers
5
Aantal slaapkamers
4

Buitenruimte

Ligging
in woonwijk
Tuin
achtertuin met een oppervlakte van 60 m² en is gelegen op het zuidwesten

Garage / Schuur / Berging

Garage
geen garage
Parkeergelegenheid
openbaar parkeren
Schuur/berging
vrijstaand steen

Foto's

Plattegronden

Locatie

Downloads

Vraag een bezichtiging aan of neem contact met ons op.