Goed verzorgde 3 laagse eengezinswoning met woonkameraanbouw, 4 slaapkamers, mooie zonnige tuin en eigen oprit. De woning is gelegen in een rustige straat in de wijk "Kleine Goote" en is gebouwd in 1980. De woning beschikt over een woonoppervlak van ca. 117 m2, 146 m2 eigen grond en heeft een mooi energielabel A! vermeldenswaardig is de lichte woonkamer v.v. openslaande deuren, de moderne badkamer en de nieuw ingedeelde zolderverdieping. Verwarming geschiedt middels een cv combiketel (Nefit HR 2012). Een prettige woning die makkelijk te betrekken is. De locatie is op korte afstand van het Spui, de vesting, winkels, scholen en sportvoorzieningen. Aan de voor- en achterzijde grenst de woning aan een plantsoen. Parkeergelegenheid op eigen oprit.
Omschrijving
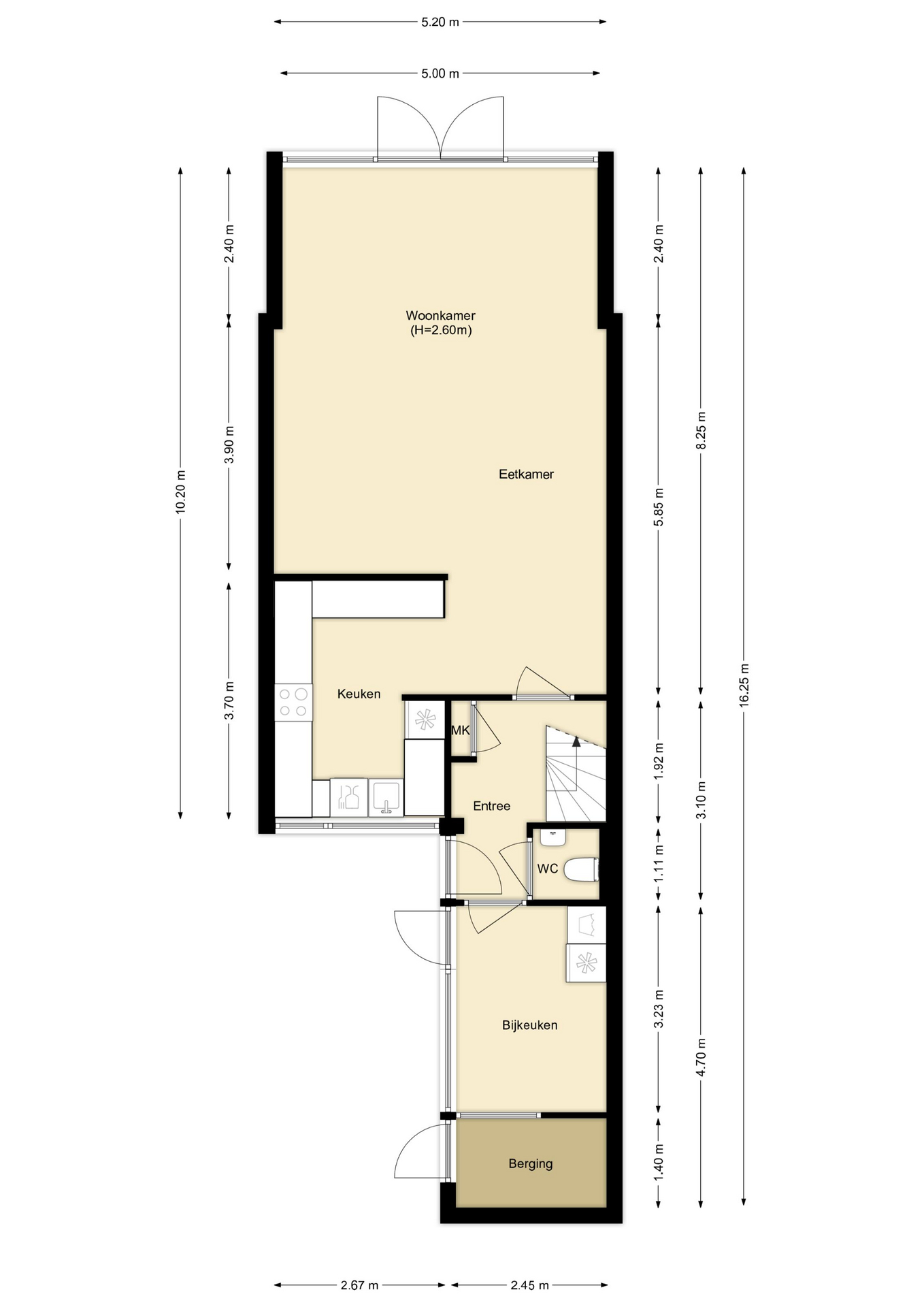
Entree/ hal met garderobe, meterkast met voldoende groepen en aardlekschakelaar, trapopgang, modern toilet met fonteintje. Tevens toegang naar de bijkeuken aan de voorzijde.
Bijkeuken/ berging
Voorzien van deur naar de oprit, plavuizen vloer, wasmachineaansluiting, radiator en daglicht.
Woonkamer
Sfeervolle, lichte woonkamer met grote aanbouw en openslaande deuren naar de achtertuin. De vloer is afgewerkt met laminaat.
Keuken
De open keuken bevindt zich aan de voorzijde. De U-opstelling is uitgevoerd met spoelunit, koelkast met vriesvak, combi oven, vaatwasmachine, 5-pits gaskookplaat, rvs afzuigkap, houten werkblad en pvc-vloer. Vanuit het keukenraam kijkt u zo de straat uit en op het plantsoen.
Eerste verdieping
Overloop met vaste trap naar de 2e verdieping, bergkast met opstelling cv ketel (Nefit HR 2012).
Slaapkamer I
Deze hoofdslaapkamer is gelegen aan de achterzijde en voorzien van 2 Velux dakramen met rolluik, knieschotten en laminaatvloer.
Slaapkamer II
Deze slaapkamer is gelegen aan de voorzijde en is v.v. laminaatvloer.
Badkamer
De moderne badkamer (ca. 2020) is uitgevoerd met ligbad met douche, wastafelmeubel, designradiator en dakraam.
Tweede verdieping
Voorzolder met dakraam.
Slaapkamer/ werkkamer III
Deze kamer is v.v. dakkapel (2022), elektrische verwarming en laminaat.
Slaapkamer IV
Deze slaapkamer is ruim en beschikt tevens over een dakkapel (2022 Velux modulaire dakkapel), radiator en laminaat.
Tuin
De zonnige diepe tuin is verzorgd en gelegen op het zuid-oosten. Deze is uitgevoerd met terrassen, buitenkraan en borders. Tevens bevindt zich achter in de tuin een houten berging en achterom*.
Bijzonderheden:
- tussenwoning met aanbouw en eigen oprit;
- bouwjaar ca. 1980;
- gelegen op 146 m2 eigen grond;
- woonoppervlakte ca. 117 m2;
- 4 slaapkamers;
- Energielabel A;
- betonvloeren;
- moderne badkamer;
- rolluiken 1e en 2e verdieping (2025);
- houten kozijnen met dubbele beglazing, schilderwerk buiten 2024;
- 10x zonnepanelen (2022);
- dakkapel type Velux modulair, geplaatst in 2022;
- parkeren op eigen terrein.
In de koopakte worden de volgende clausules opgenomen:
-Ouderdomsclausule;
-Asbestclausule.
Wij behartigen de belangen van de verkopende partij. Neem uw eigen aankoopmakelaar mee!
Disclaimer:
Deze informatie is door De Vreij Makelaardij met de nodige zorgvuldigheid samengesteld. De informatie is echter van algemene aard en niet meer dan een uitnodiging om in onderhandeling te treden. Onzerzijds en verkoper wordt echter geen enkele aansprakelijkheid aanvaard door enige onvolledigheid, onjuistheid of anderszins, dan wel de gevolgen daarvan. De meetinstructie is gebaseerd op de NEN2580. De meetinstructie is bedoeld om een meer eenduidige manier van meten toe te passen voor het geven van een indicatie van de gebruiksoppervlakte. De meetinstructie sluit verschillen in meetuitkomsten niet volledig uit, door bijvoorbeeld interpretatieverschillen, afrondingen of beperkingen bij het uitvoeren van de meting. Van toepassing zijn de Vastgoed Ned voorwaarden.
