Rustig gelegen tussenwoning met 4 slaapkamers en aangebouwde bijkeuken/ berging, gelegen in de kindvriendelijke wijk "Kleine Goote". Een goede ligging aan autovrij pad in een groene wijk. De woning uit 1980 heeft een woonoppervlak van ca. 117 m2 en 122 m2 eigen grond. Vermeldenswaardig is dat de woning beschikt over airconditioning, zonnepanelen, een mooi energielabel A en een dwarskap, wat extra ruimte biedt op de 2e verdieping. Verwarming middels een cv combiketel (Remeha 2014). De locatie is op korte afstand van de winkels, historische vesting, scholen en sportvoorzieningen. Parkeren kan direct achter de woning.
Omschrijving
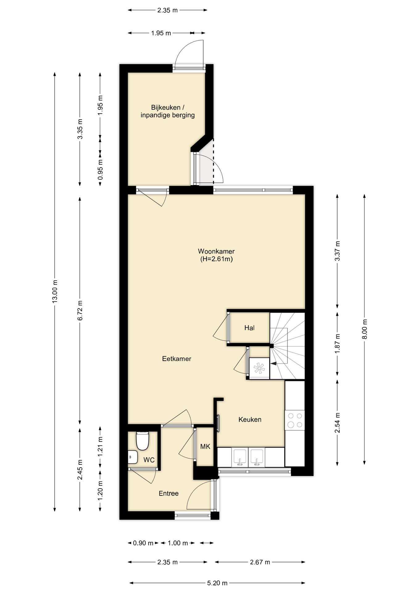
Entree/ hal met garderobe, meterkast met voldoende groepen en modern toilet met fonteintje.
Woonkamer - ca. 6.72 x 5.20/ 2.35 m
De lichte woonkamer met grote raampartij en airconditioning is gelegen aan de achterzijde van de woning. De woonkamer is voorzien van een laminaatvloer en de wanden zijn v.v. spachtelputz en behang. In de woonkamer bevindt zich de deur naar de tussenhal met trap en een trapkast. Vanuit de woonkamer is er toegang de aangebouwde bijkeuken/ berging.
Keuken - ca. 2.67 x 2.54 m
De lichtgrijze keuken in hoekopstelling bevindt zich aan de voorzijde van de woning en is v.v. een dubbele spoelunit, gaskookplaat, afzuigkap, koelkast, oven en vaatwasmachine.
Bijkeuken/ berging - ca. 3.35 x 1.95 m
Aan de achterzijde van de woning is een bijkeuken/ berging. Deze is v.v. een laminaatvloer en deur naar de tuin.
Eerste verdieping
Overloop met vaste trap naar de 2e verdieping. De gehele verdieping is voorzien van een laminaatvloer.
Slaapkamer I - ca. 5.20 x 3.39 m
Deze royale hoofdslaapkamer is gelegen aan de achterzijde van de woning en voorzien van airconditioning.
Slaapkamer II - ca. 4.51 x 3.15/ 2.75 m
Deze slaapkamer is gelegen aan de voorzijde van de woning.
Badkamer - ca. 2.52 x 2.40/ 2.00 m
De betegelde badkamer beschikt over een douchecabine, bad, wastafel, elektrische vloerverwarming, 2e toilet en raam.
Tweede verdieping
Voorzolder - ca. 3.40 x 1.90 m
Via de vaste trap komt men op de voorzolder met dakraam. Hier is ook de opstelplaats van de CV ketel en wasmachineaansluiting. De gehele verdieping is v.v. laminaatvloer.
Slaapkamer III - ca. 3.40 x 3.40 m (tot 1,50 m lijn)
Deze slaapkamer bevindt zich aan de achterzijde van de woning.
Slaapkamer IV - ca. 3.40 x 2.58 m
Deze slaapkamer is is gelegen aan de voorzijde en beschikt over een wastafel.
Tuin
De voortuin beschikt over een terras met borders en een haag.
De achtertuin op het oosten is door de sierbestrating onderhoudsvrij. Dankzij de nieuwe schutting met dubbele poort zou de achtertuin ook als oprit gebruikt kunnen worden.
Bijzonderheden:
- degelijke tussenwoning met dwarskap en 4 slaapkamers;
- bouwjaar 1980, v.v. kunststof geveldelen;
- gelegen op 122 m2 eigen grond;
- woonoppervlakte ca. 117 m2;
- energielabel A
- aangebouwde bijkeuken/ berging;
- autovrij aan de voorzijde;
- 8 zonnepanelen;
- parkeren kan direct achter de woning.
Wij nemen de volgende clausules op in de koopakte:
- asbestclausule, bouw voor 1994;
- ouderdomsclausule;
- akte oud vaderlandsrecht.
Wij behartigen de belangen van de verkopende partij. Neem uw eigen aankoopmakelaar mee!
Disclaimer:
Deze informatie is door De Vreij Makelaardij met de nodige zorgvuldigheid samengesteld. De informatie is echter van algemene aard en niet meer dan een uitnodiging om in onderhandeling te treden. Onzerzijds en verkoper wordt echter geen enkele aansprakelijkheid aanvaard door enige onvolledigheid, onjuistheid of anderszins, dan wel de gevolgen daarvan. De meetinstructie is gebaseerd op de NEN2580. De meetinstructie is bedoeld om een meer eenduidige manier van meten toe te passen voor het geven van een indicatie van de gebruiksoppervlakte. De meetinstructie sluit verschillen in meetuitkomsten niet volledig uit, door bijvoorbeeld interpretatieverschillen, afrondingen of beperkingen bij het uitvoeren van de meting. Van toepassing zijn de Vastgoed Ned voorwaarden.
