Op zoek naar een verrassend ruime woning met volop mogelijkheden, gelegen in een gezellige en kindvriendelijke wijk? Deze drive-in hoekwoning aan de rand van de woonwijk Zuurland in Brielle biedt het allemaal: een eigen oprit, inpandige garage, drie slaapkamers, een moderne keuken én badkamer én een royale voor-, zij- en achtertuin. Dankzij de hoekligging geniet je hier van extra veel buitenruimte en privacy.
De ligging is handig, met winkelcentrum Reede op loopafstand, waar je alledaagse voorzieningen zoals een supermarkt, snackbar, bloemenwinkel en Primera vindt. Bovendien ben je snel in het historische centrum van Brielle, met al zijn faciliteiten. Voor de natuur-, bos- en strandliefhebbers zijn het Brielse meer, Oostvoorne, Rockanje en ook de plezierhaven van Hellevoetsluis aan het Haringvliet op fietsafstand bereikbaar. En of je nu richting Maasvlakte, Europoort of Rotterdam moet — Via de A15 en de nieuwe snelweg A24 (Blankenburgverbinding) sta je binnen 30 autominuten in Rotterdam centrum, maar met de N218 en N57 om de hoek ben je ook zo in Zeeland.
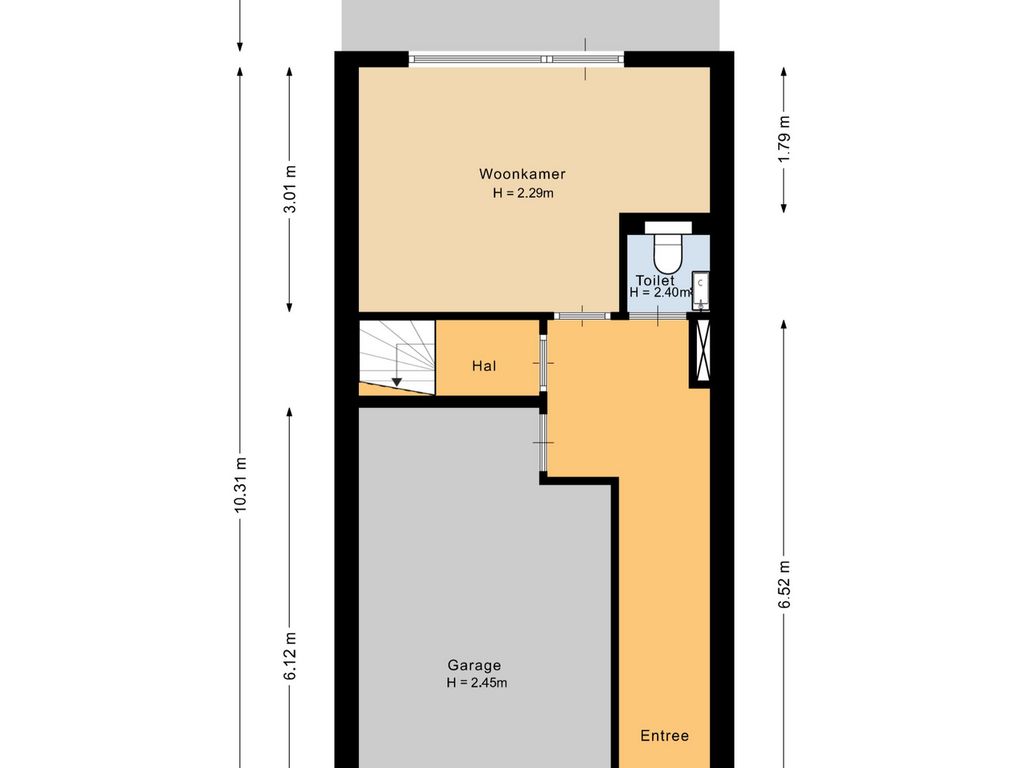
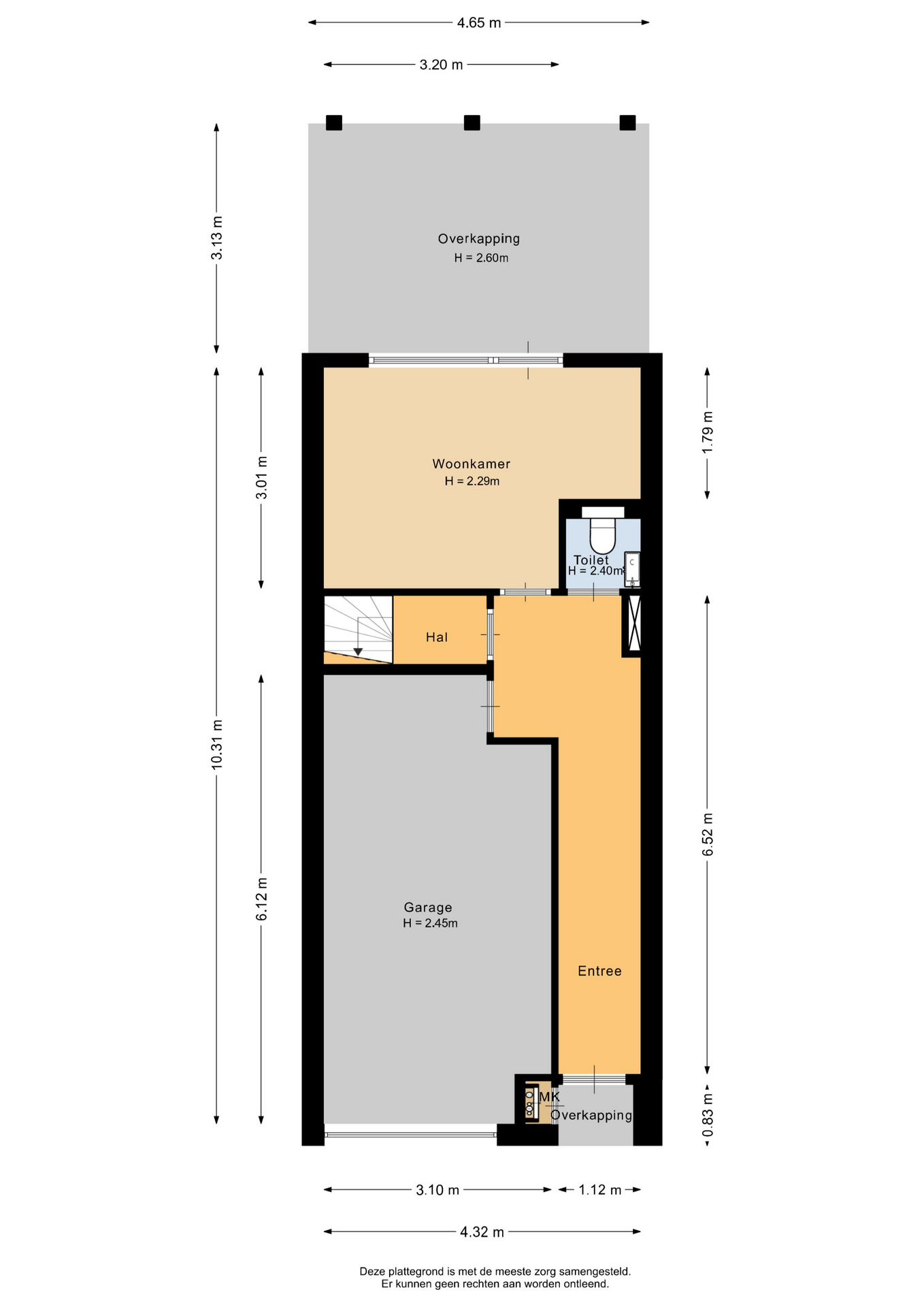
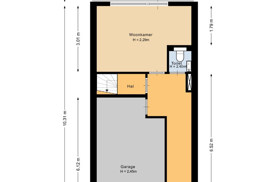
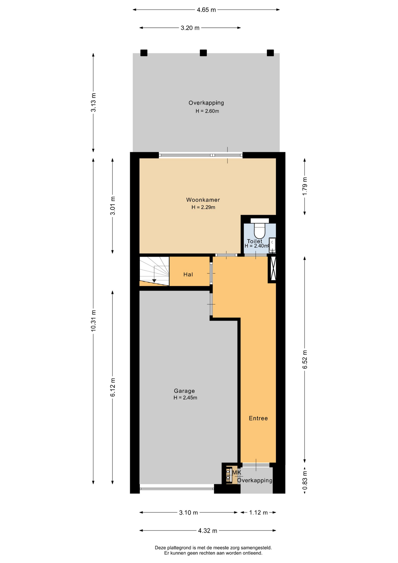
Begane grond:
Via de riante voortuin met eigen oprit bereik je de voordeur. Aan het einde van de hal vind je een modern toilet met fonteintje en nis, voorzien van automatische verlichting. Direct hiernaast zit de tuinkamer. Dit is een multifunctionele ruimte, ideaal als bijvoorbeeld werk- of speelkamer en beschikt over aansluitingen voor de wasmachine en droger. Ook heeft deze ruimte een deur met direct toegang naar de achtertuin. Verder in de hal een deur naar de de inpandige garage, deze is voorzien van elektra en een sectionaaldeur en biedt volop bergruimte of ruimte voor de auto. Naast de deur naar de garage nog een deur die uitkomt in een tussenhal met de trap naar de verdieping.
1e verdieping:
Een trap brengt je naar de woonkamer, waar het lichte en ruime karakter van de woning je meteen opvalt. De woonkamer is gesitueerd aan de voorzijde en voorzien van een mooie laminaatvloer. Aan de achterzijde vind je de moderne, halfopen keuken. Deze is ingericht met een kasten-/apparatuurwand en een los kookeiland met bargedeelte, ideaal voor het ontbijt of een borrel. De keuken is van alle gemakken voorzien, waaronder een gaskookplaat, afzuigkap, vaatwasser, koel-vriescombinatie, oven, en een kokendwaterkraan. Vanuit de keuken kijk je uit op de achtertuin.
2e verdieping:
Via de trap in de woonkamer kom je op de overloop van de 2e verdieping, waar zich drie slaapkamers en de badkamer bevinden. Aan de voorzijde zijn twee slaapkamers en aan de achterzijde ligt de ruime hoofdslaapkamer. Alle kamers en de overloop zijn netjes afgewerkt met een laminaatvloer. De badkamer is modern uitgevoerd en voorzien van een groot wastafelmeubel met dubbele kranen, een inloopdouche, hangend toilet en een designradiator.
Zolder:
Middels een vlizotrap is de bergvliering bereikbaar. Hier is de opstelling van de cv-ketel (Intergas, 2011) en volop extra bergruimte.
Tuin:
Dankzij de hoekligging profiteer je van extra veel buitenruimte: een riante voortuin (circa 60 m2!) met oprit, een zijtuin én een achtertuin. De achtertuin is gelegen op het noordoosten en is sfeervol ingericht met moderne terrastegels, een vijver, houten schuttingen en met afsluitbare entreedeur aan de zijkant. De houten terrasoverkapping maakt het compleet, een plek waar je heerlijk beschut kunt zitten. Verder staat er achterin de tuin nog een blokhut voorzien van elektra.
Diversen:
- Drive-in woning met inpandige garage en eigen oprit.
- Ruime tuinkamer/werkkamer op de begane grond.
- Royale voor-, zij- én achtertuin dankzij hoekligging.
- Moderne keuken en badkamer.
- Gelegen in een kindvriendelijke wijk, nabij scholen, winkels en sportvoorzieningen.
- Historisch centrum van Brielle en recreatiegebied op korte afstand.
Disclaimer:
Deze informatie is door Van Ravens Makelaardij met de nodige zorgvuldigheid samengesteld. De informatie is echter van algemene aard en niet meer dan een uitnodiging om in onderhandeling te treden. Onzerzijds wordt echter geen enkele aansprakelijkheid aanvaard voor enige onvolledigheid, onjuistheid of anderszins, dan wel de gevolgen daarvan. Alle opgegeven maten en oppervlakten zijn indicatief.
Van toepassing zijn de NVM voorwaarden.
Bijzondere voorwaarden:
Bij oudere objecten wordt er een ouderdomsclausule in de koopovereenkomst opgenomen. Daarnaast kunnen er aanvullende clausules van toepassing zijn zoals bijvoorbeeld een “niet zelfbewoningsclausule”.
