In een kindvriendelijke, fijne wijk ligt deze luxe nul-op-de-meter woning met tuitgevel. De woning heeft energielabel A+++, warmtepomp, top isolatie en maar liefst 20 zonnepanelen. De woning is fraai afgewerkt, beschikt over een moderne keuken en badkamer en 3 slaapkamers. De woning heeft door de tuitgevel een fraaie uitstraling is gebouwd in 2019 op 146 m2 grond. Het woonoppervlak is ca. 135 m2. De tuin is gelegen op het zuidoosten, sfeervol aangelegd en heeft een fietsenberging. Kortom een woning waar u zo in kunt! Speeltuin, dagelijkse voorzieningen, scholen, sportverenigingen en het openbaar vervoer zijn dichtbij. Parkeren kan direct voor de deur.
Bij een "nul op de meter" woonhuis is er extra leenruimte tot wel € 50.000,-. Deze woning heeft geen maandelijkse energiekosten!
Omschrijving
Entree/ hal met garderobe, toilet met fonteintje, kast met boiler en warmtepomp en meterkast.
De hardhouten trap gaat naar de 1e verdieping.
Woonkamer
Sfeervolle en uitgebouwde woonkamer met openslaande deuren, fraaie shutters, visgraat pvc-vloer en elektrische zonwering. De vloer is voorzien van vloerverwarming.
Keuken
De open keuken met dubbele wandopstelling is gelegen aan de voorzijde van de woning. Deze is ook extra ruim door de uitgebouwde gevel. De keuken beschikt over een spoelunit met Quooker, dubbele Falcon oven, grillplaat en inductie kookplaat, afzuigkap, stoomoven, magnetron en koel- en vries. Door de houtlook en de vele inbouwapparatuur geeft dat de keuken een luxe en warme uitstraling.
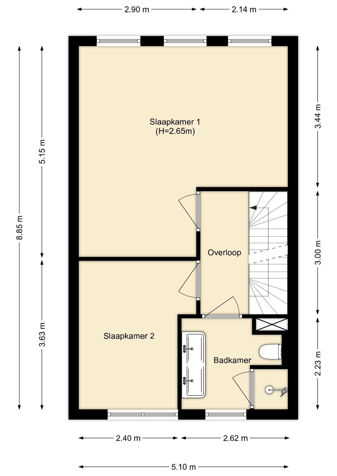
Eerste verdieping
Overloop met toegang tot 2 (eenvoudig 3) slaapkamers, badkamer en trap naar de 2e verdieping. De gehele verdieping is v.v. vloerverwarming en laminaat.
Slaapkamer I
Zeer royale ouderslaapkamer gelegen aan de achterzijde met veel lichtinval.
Slaapkamer II
Deze slaapkamer is gelegen aan de voorzijde.
Badkamer
De moderne badkamer is bij de bouw vergroot en voorzien van toilet, elektrische verwarming, regendouche en dubbel wastafelmeubel.
Tweede verdieping
Overloop met toegang tot de wasruimte en slaapkamer III.
Was-/stookruimte
Ruime wasruimte welke is voorzien van wasmachineaansluiting en de ventilatieunit.
Slaapkamer III
Ruime slaapkamer met raam aan voorzijde. Ook deze verdieping beschikt over vloerverwarming. Er is bergruimte achter de knieschotten.
Tuin
De achtertuin is mooi en sfeervol aangelegd en beschikt over gras, terras, borders en vrijstaande houten schuur.
Via de poort is er een achterom.
Bijzonderheden:
- goed afgewerkte NOM tussenwoning met karakteristieke bouw en tuitgevel;
- uitgebouwde woonkamer met openslaande deuren;
- geheel uitstekend geïsoleerd, warmtepomp, 20 zonnepanelen, label A+++;
- hardhouten kozijnen met HR+++ glas;
- schilderwerk buitenzijde 2023;
- gehele woning vloerverwarming;
- woonkamer voorzien van shutters;
- warmtepomp Itho 2019, boiler 200 liter;
- bouwjaar 2019 - woonoppervlakte ca. 135 m2;
- 146 m2 eigen grond;
- elektrische zonwering;
- instapklaar.
Wij behartigen de belangen van de verkopende partij. Neem uw eigen aankoopmakelaar mee!
Disclaimer:
Deze informatie is door De Vreij Makelaardij met de nodige zorgvuldigheid samengesteld. De informatie is echter van algemene aard en niet meer dan een uitnodiging om in onderhandeling te treden. Onzerzijds en verkoper wordt echter geen enkele aansprakelijkheid aanvaard door enige onvolledigheid, onjuistheid of anderszins, dan wel de gevolgen daarvan. De meetinstructie is gebaseerd op de NEN2580. De meetinstructie is bedoeld om een meer eenduidige manier van meten toe te passen voor het geven van een indicatie van de gebruiksoppervlakte. De meetinstructie sluit verschillen in meetuitkomsten niet volledig uit, door bijvoorbeeld interpretatieverschillen, afrondingen of beperkingen bij het uitvoeren van de meting. Van toepassing zijn de Vastgoed Ned voorwaarden.
