Op een prachtige locatie naast de historische stadswallen van de vestingstad Brielle ligt deze sfeervolle en karakteristieke eindwoning. De woning combineert een rustige, charmante woonomgeving met het levendige centrum om de hoek. Dankzij de praktische indeling, veel lichtinval en buitenruimte is dit een ideale starterswoning of compacte gezinswoning. Een unieke kans om comfortabel te wonen op een historische plek met alle voorzieningen binnen handbereik.
Het gezellige centrum van Brielle, met z’n historische straatjes, fijne horeca en uitgebreide winkelaanbod, ligt letterlijk om de hoek. Ook voorzieningen als scholen, supermarkten, sportverenigingen, openbaar vervoer en medische zorg zijn binnen handbereik. Bovendien ben je vanuit hier zó bij het Brielse Meer, Oostvoorne, Rockanje of de haven van Hellevoetsluis. En of je nu richting Maasvlakte, Europoort of Rotterdam moet, via de A15 en de nieuwe snelweg A24 (Blankenburgverbinding) sta je binnen 30 autominuten in Rotterdam centrum, maar met de N218 en N57 om de hoek ben je ook zo in Zeeland.
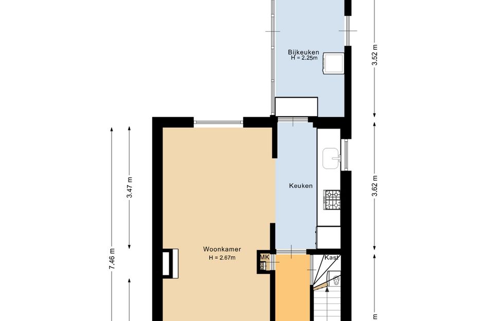
Begane grond:
Je komt binnen in de entree met trapopgang naar de 1e verdieping, waar zich onder de trap een vaste kast bevindt met de opstelling van de cv-combiketel (Intergas 2025). Ook bevindt de toiletruimte zich bij de entree. Vanuit de entree loop je door naar de halfopen keuken met gaskookplaat, afzuigkap, koelkast, combi-magnetron en een vaatwasser. De keuken staat via een toog in open verbinding met de doorzonwoonkamer. De gehele begane grond is afgewerkt met een laminaatvloer. Via de keuken bereik je de bijkeuken met wasmachine- en drogeraansluiting. Deze ruimte is voorzien van een betegelde vloer en heeft een deur naar de achtertuin, een deur met een praktische zij-uitgang (die uitkomt op de naastgelegen stoep) en een deur naar de aangebouwde berging met elektra.
1e verdieping:
De overloop is heerlijk licht dankzij de dakkapel en biedt toegang tot de vertrekken. Aan de achterzijde bevindt zich de ruime hoofdslaapkamer, voorzien van praktische vaste kastruimte. Aan de voorzijde ligt de tweede slaapkamer, die eveneens is voorzien van vaste kastruimten. De badkamer is uitgerust met een douchecabine en wastafel. De gehele verdieping is afgewerkt met een laminaatvloer.
Tuin:
De achtertuin is gelegen op het westen en is deels bestraat. Verder voorzien van houten schuttingen en groene erfafscheiding, waardoor je hier in alle rust en privacy van het buitenleven kunt genieten.
Diverse:
- Fraaie ligging nabij de historische stadswallen en op loopafstand van het centrum van Brielle.
- Geheel voorzien van dubbel glas m.u.v. het toiletraam.
- Doorzonwoonkamer met veel lichtinval.
- Bijkeuken en aangebouwde berging met elektra.
- Cv-combiketel Intergas (2025).
- Fijne achtertuin op het westen en zij-uitgang.
Disclaimer:
Deze informatie is door Van Ravens Makelaardij met de nodige zorgvuldigheid samengesteld. De informatie is echter van algemene aard en niet meer dan een uitnodiging om in onderhandeling te treden. Onzerzijds wordt echter geen enkele aansprakelijkheid aanvaard voor enige onvolledigheid, onjuistheid of anderszins, dan wel de gevolgen daarvan. Alle opgegeven maten en oppervlakten zijn indicatief.
Van toepassing zijn de NVM voorwaarden.
Bijzondere voorwaarden:
Bij oudere objecten wordt er een ouderdomsclausule in de koopovereenkomst opgenomen. Daarnaast kunnen er aanvullende clausules van toepassing zijn zoals bijvoorbeeld een “niet zelfbewoningsclausule”.
