Ontdek dit ideale 4-laagse gezinshuis met alles wat je nodig hebt voor comfort en gemak. Met maar liefst 4 ruime slaapkamers, 2 moderne badkamers en een slimme uitbouw op zowel de begane grond als de 1e verdieping, heeft deze woning volop leefruimte. Geniet van een zonnige, privé achtertuin en profiteer van 11 zonnepanelen voor een energiezuinig leven. Gelegen in de geliefde, kindvriendelijke wijk Nieuwland-Oost, is dit de kans om jouw droomwoning te bemachtigen. Mis het niet en plan snel een bezichtiging!
De wijk is perfect voor gezinnen en heeft een groot centraal speelveld en een middelbare school op loopafstand. Verderop bevinden zich een sportschool en een medisch centrum. En natuurlijk ligt het historische centrum van Brielle met haar sfeervolle horeca, winkels en terrassen op korte afstand. Ook de natuurliefhebber zit hier goed: het Brielse Meer, de stranden van Oostvoorne en Rockanje en de haven van Hellevoetsluis zijn allemaal op fietsafstand. En of je nu richting Maasvlakte, Europoort of Rotterdam moet — Via de A15 en de nieuwe snelweg A24 (Blankenburgverbinding) sta je binnen 30 autominuten in Rotterdam centrum, maar met de N218 en N57 om de hoek ben je ook zo in Zeeland.
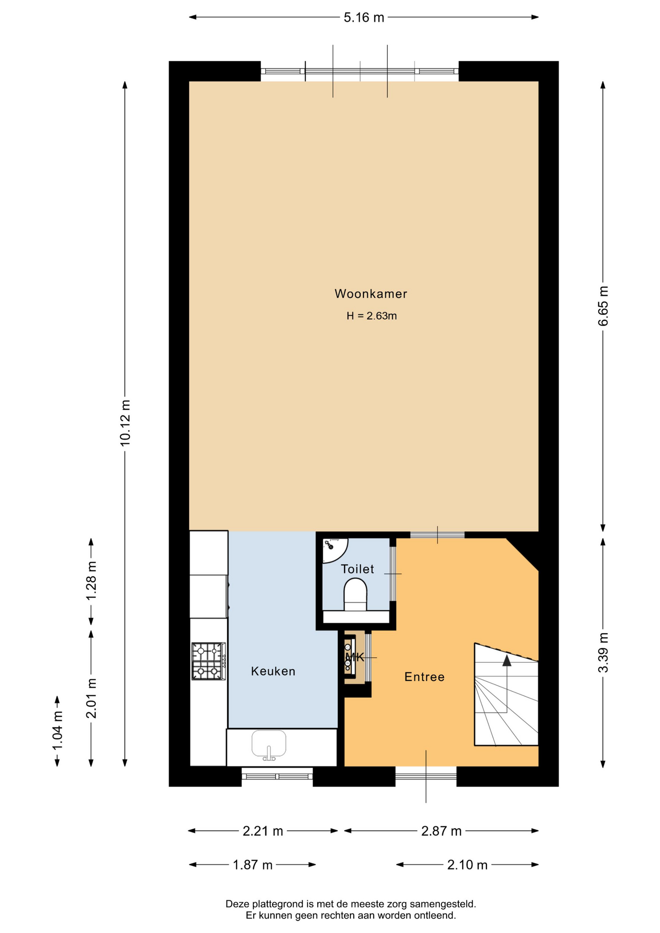
Begane grond:
Via de entree kom je binnen in de hal met toegang tot de woonkamer, trap naar de 1e verdieping en de toiletruimte voorzien van een hangend closet en een fonteintje. Dankzij de uitbouw en openslaande deuren naar de achtertuin is de woonkamer heerlijk ruim en licht. Aan de voorzijde bevindt zich de open keuken, voorzien van een 5-pits gaskookplaat, afzuigkap, koel-vriescombinatie, combi-magnetron en een vaatwasser. De begane grond is afgewerkt met een plavuizen vloer met vloerverwarming, wat zorgt voor modern comfort en een strakke uitstraling.
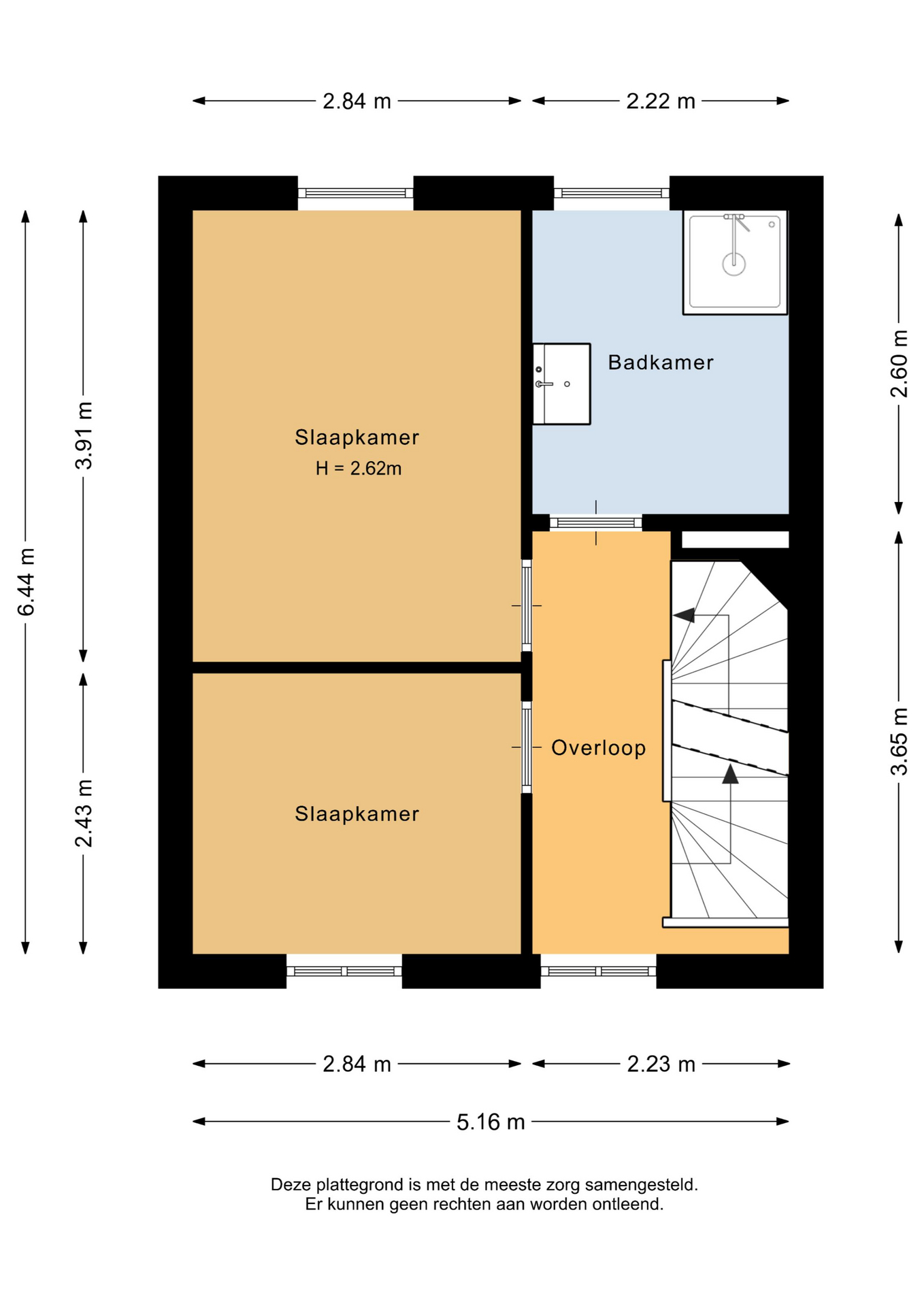
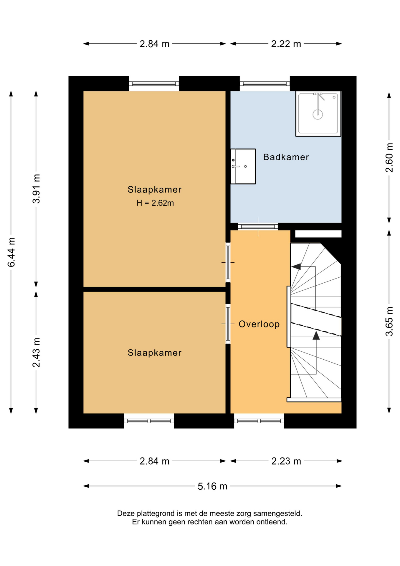
1e verdieping:
De overloop is fijn licht door het aanwezige raam en er is een handige vaste kastruimte aanwezig. Vanuit de overloop toegang tot de 2 slaapkamers en de 1e badkamer. Omdat deze verdieping ook een uitbouw heeft is de hoofdslaapkamer, gesitueerd aan de achterzijde van de woning, ruim van formaat. Aan de voorzijde van de woning is de 2e slaapkamer te vinden. De volledig betegelde badkamer is voorzien van een dubbele wastafel, een ligbad en een hangend toilet. Het aanwezige raam zorgt voor natuurlijk licht en ventilatie. Deze verdieping is afgewerkt met een nette laminaatvloer.
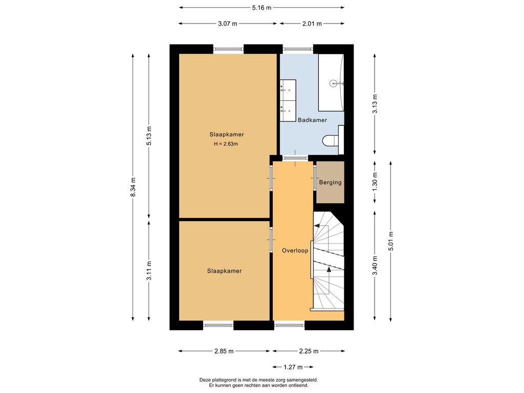
2e verdieping:
Ook hier een lekker lichte overloop vanwege het raam gestitueerd op de voorgevel. Hier zijn de 3e en 4e slaapkamer en de 2e badkamer te vinden. De 2e badkamer is geheel betegeld en voorzien van een wastafel en inloopdouche. Ook deze verdieping is afgewerkt met laminaat en dankzij de rechte geveloptrek is deze verdiepijng optimaal te benutten. Vanaf de overloop leidt een vaste trap naar de 3e verdieping.
3e verdieping:
Een grote bonus van deze woning is de 3e verdieping, ideaal te gebruiken als hobbyruimte/werkruimte of eenvoudig te verbouwen tot een extra slaapkamer. Hier bevinden zich de aansluitingen voor de wasmachine/droger, de opstelling van de cv-combiketel (Intergas 2011) en de mechanische ventilatie-unit. Verder is deze verdieping voorzien van kniebeschotbergingen en een dakraam, wat voor natuurlijk licht zorgt. Ook deze verdieping is afgewerkt met een nette laminaatvloer.
Tuin:
De voortuin is een "Briels" stoepje afgezet met betonnen paaltjes (uniforme erfafscheiding in de wijk). De achtertuin ligt op het zonnige zuidwesten, waardoor je volop kunt genieten van de middag- en avondzon. De tuin is grotendeels betegeld en is voorzien van verhoogde plantenbakken, houten schuttingen, een buitenkraan, elektrische zonwering en een praktische achterom. Achterin de tuin vind je een stenen vrijstaande berging, voorzien van elektra.
Diversen:
- 11 zonnepanelen.
- Houten kozijnen met HR++ glas.
- Begane grond voorzien van vloerverwarming.
- Vier slaapkamer en twee badkamers + ruime extra zolderruimte.
- Achtertuin voorzien van elektrische zonwering en vrijstaande berging.
- Gelegen in een jonge, kindvriendelijke en geliefde wijk.
Disclaimer:
Deze informatie is door Van Ravens Makelaardij met de nodige zorgvuldigheid samengesteld. De informatie is echter van algemene aard en niet meer dan een uitnodiging om in onderhandeling te treden. Onzerzijds wordt echter geen enkele aansprakelijkheid aanvaard voor enige onvolledigheid, onjuistheid of anderszins, dan wel de gevolgen daarvan. Alle opgegeven maten en oppervlakten zijn indicatief.
Van toepassing zijn de NVM voorwaarden.
Bijzondere voorwaarden:
Bij oudere objecten wordt er een ouderdomsclausule in de koopovereenkomst opgenomen. Daarnaast kunnen er aanvullende clausules van toepassing zijn zoals bijvoorbeeld een “niet zelfbewoningsclausule”.
