Aan de rand van het gezellige dorp Oostvoorne gelegen karakteristieke vrijstaande jaren twintig woning met oprit en aanbouw aan de achterzijde. De woning is gebouwd in 1928 en dient te worden gemoderniseerd. De charmante woning is gelegen op een perceel van 505 m2 en grenst aan de achterzijde aan een groenstrook met het naastgelegen Zwanenmeer. De woning beschikt over 4 slaapkamers en heeft een woonoppervlak van ca. 112 m2. Verwarming middels CV ketel (Vaillant). Deze sfeervolle woning met erker en zonnepanelen biedt tal van mogelijkheden, ideaal om je eigen woonwens te realiseren! Parkeren kan op eigen terrein. Bos, strand en dorpskern zijn op loopafstand. Rotterdam is bereikbaar in 30 minuten.
Begane grond
Hal/ gang met trapopgang, meterkast en toegang tot de woonkamer en keuken.
Woonkamer
De sfeervolle woonkamer met airconditioning heeft een kenmerkende erker met glas-in-loodramen en zijramen welke zorgen voor een heerlijk lichte ruimte. Via de schuifpui in de terrasoverkapping bereikbaar. De vloer is v.v. laminaat.
Keuken
De dichte keuken is gelegen aan de achterzijde van de woning en beschikt over een eenvoudige wandopstelling. Deze basic opstelling beschikt over een spoelbak, kookplaat, afzuigkap, oven, koelkast en kelderkast.
Badkamer
De aanbouw aan de achterzijde biedt plaats aan de badkamer. Deze is uitgevoerd met een douchecabine, wastafelmeubel en het toilet. In de badkamer is ook een deur naar de tuin. Kast met opstelplaats cv ketel.
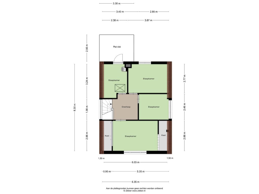
Eerste verdieping
Royale overloop met toegang tot de vier slaapkamers. De gehele verdieping is v.v. een laminaatvloer.
Slaapkamer I
Deze hoofdslaapkamer is gelegen aan de voorzijde van de woning en is v.v. vaste kasten en een rolluik.
Slaapkamer II
Deze slaapkamer met dakkapel is gelegen aan de zijkant van de woning.
Slaapkamer III
Deze slaapkamer is gelegen aan de tuinzijde van de woning en beschikt over wastafel, wasmachineaansluiting en een deur naar het platte dak van de uitbouw. Via het luik is de zolder bereikbaar.
Slaapkamer IV
Deze slaapkamer is ook gelegen aan achterzijde van de woning en heeft zicht op de tuin.
Zolder
Bergzolder bereikbaar via luik.
Tuin
De royale tuin is rondom het huis gelegen en beschikt overeen afsluitbare overkapping, gras, volwassen struiken en bomen, borders en terrassen. Achter de tuin is thans een groenstrook.
Terrasoverkapping van ca. 6m2 met afsluitbare glaswand en vlonder.
Bijzonderheden:
- charmante vrijstaande jaren 20 woning met erker en aanbouw;
- geheel nog te moderniseren;
- 4 slaapkamers;
- ruim perceel met parkeren op eigen terrein;
- woonopp ca. 112 m2, perceelopp 505 m2;
- grotendeels houten vloeren;
- houten- en kunststof kozijnen, deels HR++ glas;
- cv combiketel (Vaillant HR ca. 2015);
- dakisolatie;
- binnen 5 min. in het gezellige dorpscentrum van Oostvoorne.
In de koopakte worden de volgende clausules opgenomen:
- Ouderdomsclausule;
- Asbestclausule, gezien het bouwjaar van de woning;
- Niet zelf bewoondclausule;
- Overdracht wordt verzorgd door Notaris Moerland te Brielle.
Wij behartigen de belangen van de verkopende partij. Neem uw eigen aankoopmakelaar mee!
Disclaimer:
Deze informatie is door De Vreij Makelaardij met de nodige zorgvuldigheid samengesteld. De informatie is echter van algemene aard en niet meer dan een uitnodiging om in onderhandeling te treden. Onzerzijds en verkoper wordt echter geen enkele aansprakelijkheid aanvaard door enige onvolledigheid, onjuistheid of anderszins, dan wel de gevolgen daarvan. De meetinstructie is gebaseerd op de NEN2580. De meetinstructie is bedoeld om een meer eenduidige manier van meten toe te passen voor het geven van een indicatie van de gebruiksoppervlakte. De meetinstructie sluit verschillen in meetuitkomsten niet volledig uit, door bijvoorbeeld interpretatieverschillen, afrondingen of beperkingen bij het uitvoeren van de meting. Van toepassing zijn de Vastgoed Ned voorwaarden.
