Midden in de historische vesting van Brielle gelegen appartement (bovenwoning op de 1e en 2e verdieping) met 1 slaapkamer, werkkamer en dakterras. Het appartement, oorspronkelijke bouw ca. 1870, heeft ca. 61 m2 woonopp en is voorzien van kunststof kozijnen met dubbel glas. De sfeervolle woonkamer is ruim en heeft een hoog plafond met de spant in het zicht. Op de woonverdieping is een werkkamer en op de 2e verdieping bevindt zich de slaapkamer. Verwarming geschiedt middels CV combiketel (Remeha). Parkeren kan in de omliggende straten. Bushalte, winkels en horeca op loopafstand.
Omschrijving
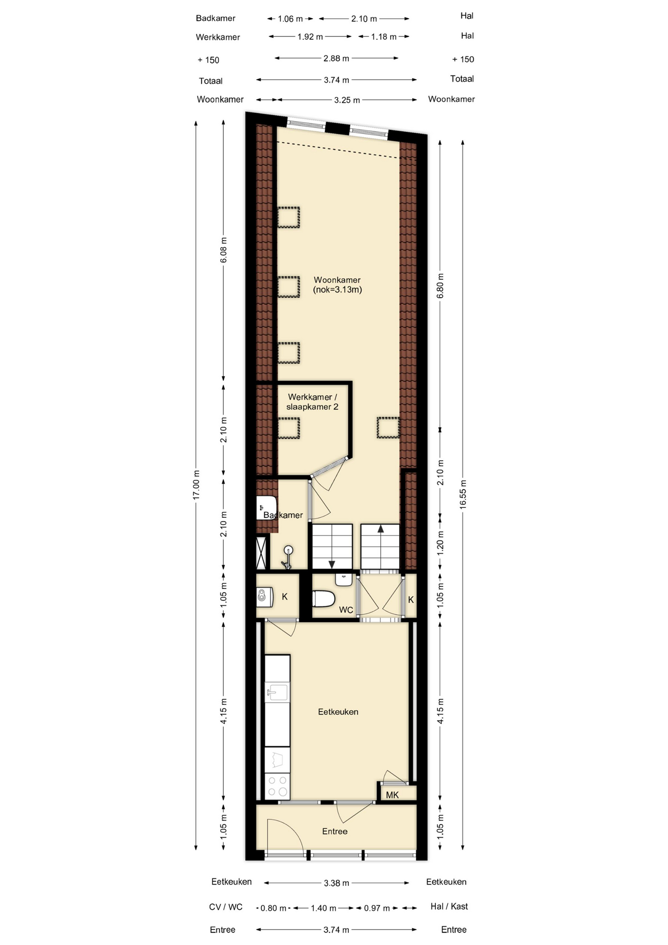
Gezamenlijke entree met trapopgang, meterkast en wat bergruimte.
Eerste verdieping
Op de eerste verdieping kom je op de galerij/ gedeeld dakterras om het appartement te bereiken.
Entree/ hal met garderobe.
Woonkeuken - ca. 4.15 x 3.38 m
De gezellige woonkeuken is gelegen aan de terraszijde van het appartement. De wandopstelling beschikt over een spoelunit, kookplaat, afzuigkap, vaatwasmachine en wasmachineaansluiting. In de keuken bevinden zich een bergkast met opstelplaats voor de CV ketel. De vloer is v.v. laminaat.
Doorloop met trapje, kast en toilet.
Gang met toegang tot woonkamer en werkkamer.
Werkkamer - ca. 2.10 x 1.92 m
Kamer voorzien van laminaatvloer en dakraam.
Badkamer - ca. 2.10 x 1.06 m
De betegelde badkamer is uitgevoerd met een douchecabine, wastafel en radiator.
Woonkamer - ca. 6.08 x 3.25 m
De ruime woonkamer v.v. airconditioning is gelegen aan de Voorstraatzijde. Door het hoge plafond, de grote raampartij en de dakramen is het hier heerlijk licht. Ook hier is de vloer v.v laminaat.
Dakterras - ca. 3 m2
Terras te benutten voor de entree. Dit is tevens de gedeelde opgang met 2 andere appartementen.
Tweede verdieping
Slaapkamer - ca. 5.05 x 3.07 m
De ruime slaapkamer is gelegen aan de terraszijde van het appartement en beschikt over een plafond met spanten, kopgevelraam, dakraam, airconditioning en laminaatvloer. Tevens is er bergruimte achter de knieschotten.
Bijzonderheden:
- goede locatie in de historische vesting;
- beschermd stadsgezicht;
- appartement/ bovenwoning gelegen op de 1e en 2e verdieping (geen lift);
- woonoppervlakte: ca. 61 m2;
- verwarming en warmwater via CV combiketel (Remeha);
- kunststof kozijnen met dubbel glas;
- dak gedekt met pannen + plat dak bitumen;
- dakterras grenzend aan de keuken is tevens gedeelde opgang/ galerij;
- tv thans middels kanaal digitaal;
- geen separate (fietsen) berging, in de centrale entree is wat bergruimte;
- VvE bijdrage ca. € 71,- per maand.
In de koopakte worden de volgende clausules opgenomen:
- ouderdomsclausule, gezien het bouwjaar van de woning;
- asbestclausule, gezien het bouwjaar van de woning;
- niet zelf bewoond clausule;
- beschermd stadsgezicht, ivm ligging in de vesting.
Wij behartigen de belangen van de verkopend partij, neem uw eigen aankoopmakelaar mee.
Disclaimer:
Deze informatie is door De Vreij Makelaardij met de nodige zorgvuldigheid samengesteld. De informatie is echter van algemene aard en niet meer dan een uitnodiging om in onderhandeling te treden. Onzerzijds en verkoper wordt echter geen enkele aansprakelijkheid aanvaard door enige onvolledigheid, onjuistheid of anderszins, dan wel de gevolgen daarvan. De meetinstructie is gebaseerd op de NEN2580. De meetinstructie is bedoeld om een meer eenduidige manier van meten toe te passen voor het geven van een indicatie van de gebruiksoppervlakte. De meetinstructie sluit verschillen in meetuitkomsten niet volledig uit, door bijvoorbeeld interpretatieverschillen, afrondingen of beperkingen bij het uitvoeren van de meting. Van toepassing zijn de Vastgoed Ned voorwaarden.
