Welkom thuis! Hier in Brielle staat jouw drive-in woning te wachten met héél veel bergruimte en een eigen oprit! Daarnaast is deze speels ingedeelde woning voorzien van onderhoudsarme kunststof kozijnen, 3 slaapkamers en een diepe achtertuin gelegen op het zonnige zuiden.
Deze woning ligt in de prettige woonwijk "Zuurland" nabij scholen, winkels en een zwembad. Bovendien ben je snel in het historische centrum van Brielle, met al zijn faciliteiten. Verder vormt Brielle een prima uitvalsbasis voor de haven, industrie, Europoort, Maasvlakte, Botlek en ook Rotterdam is uitstekend te bereiken. Voor de natuur-, bos- en strandliefhebbers zijn het Brielse meer, Oostvoorne, Rockanje en ook de plezierhaven van Hellevoetsluis aan het Haringvliet op fietsafstand bereikbaar.
Begane grond:
Hal/entree met de meterkast, trap naar de 1e verdieping en toegang tot de garage/berging en de tuinkamer.
Royale garage/berging met elektrisch bedienbare lamellendeur en loopdeur naar de tuin. Hier vindt je ook de aansluitingen voor de wasmachine/droger. Ruime tuinkamer met directe toegang tot de zonnige achtertuin, ideaal om te gebruiken als slaap-, werk- of speelkamer. De vloer van de hal en tuinkamer is voorzien van een laminaatvloer.
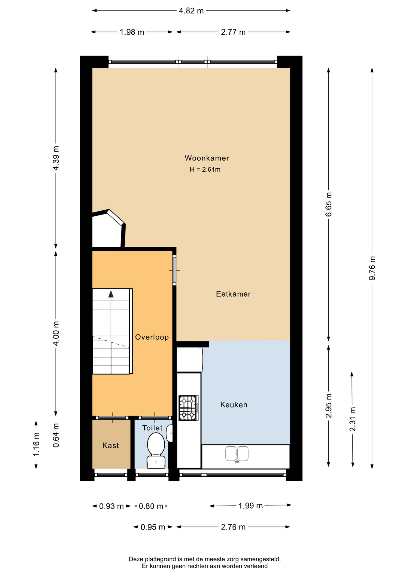
1e verdieping:
Overloop met de trap naar de 2e verdieping, toiletruimte voorzien van een toilet met een fonteintje. Daarnaast is er nog een ruime bergkast. Ruime woonkamer met grote raampartij en een sfeervolle open haard. Verder is het woonkamerraam voorzien van een woningbreed elektrisch zonnescherm. Vanuit de living heb je uitzicht op de zonnige tuin op de begane grond. De open keuken in een hoekopstelling heeft diverse inbouwapparatuur zoals: een gaskookplaat met afzuigschouw, een oven, vaatwasser, anderhalve spoelbak en een koel- en vriescombinatie. Deze verdiepingsvloer is voorzien van een houtlook vinyl vloer.
2e verdieping:
Overloop voorzien van een kast met de opstelling van de Cv-ketel (Remeha Calenta 2014). Ruime hoofdslaapkamer aan de voorzijde van de woning en twee slaapkamers aan de achterzijde met zicht op de tuin. De geheel betegelde badkamer is voorzien van een ligbad met douche gelegenheid, wastafelmeubel, hangend closet en een designradiator. Door het raam is natuurlijke ventilatie mogelijk, maar is het ook een lichte ruimte. Deze verdiepingsvloer is voorzien van een laminaatvloer.
Tuin:
De betegelde oprit aan de voorzijde biedt parkeergelegenheid voor 1 auto. De achtertuin is sfeervol aangelegd met een terras, groen gazon, vijver, houten schuttingen en een zonnige ligging op het zuiden.
Diversen:
- Drive in woning met een eigen oprit en ruimte inpandige berging/garage.
- Tuinkamer/werkkamer op de begane grond.
- De achtergevel is in 2022 vernieuwd met nieuwe keralit sponning delen.
- De woning is geheel voorzien van kunststof kozijnen en dubbele beglazing.
- Elektrisch bedienbaar zonnescherm aan de achterzijde op de 1e verdieping.
Disclaimer:
Deze informatie is door Van Ravens Makelaardij met de nodige zorgvuldigheid samengesteld. De informatie is echter van algemene aard en niet meer dan een uitnodiging om in onderhandeling te treden. Onzerzijds wordt echter geen enkele aansprakelijkheid aanvaard voor enige onvolledigheid, onjuistheid of anderszins, dan wel de gevolgen daarvan. Alle opgegeven maten en oppervlakten zijn indicatief.
Van toepassing zijn de NVM voorwaarden.
Bijzondere voorwaarden:
Bij oudere objecten wordt er een ouderdomsclausule in de koopovereenkomst opgenomen. Daarnaast kunnen er aanvullende clausules van toepassing zijn zoals bijvoorbeeld een “niet zelfbewoningsclausule”.
