Gelegen aan de rand van de wijk ‘Rugge’ bieden wij deze keurig verzorgde tussenwoning aan. De woning uit 1969 heeft een woonoppervlak van ca. 103 m2 en 134 m2 eigen grond. De woning beschikt over een nette, functionele keuken, een moderne badkamer, 4 slaapkamers en een ruime, zonnige tuin met berging en achterom. Vanuit de woonkamer kijk je aan de voorzijde uit over de polder. Ook achter zit je vrij, mede door het aangrenzende plantsoen. Een cv-combiketel (AWB 2008) zorgt voor comfort. De locatie is op korte afstand van de winkels, historische vesting, scholen en sportvoorzieningen. Parkeren kan voor de woning. Kortom, een fijne gezinswoning op een mooie locatie die je graag wilt bekijken!
Omschrijving
Entree/ hal met garderobe, betegeld toilet met fonteintje, meterkast met 4 groepen, trapkast, trapopgang naar 1e verdieping en toegang tot de woonkamer.
Woonkamer - ca. 7.53 x 3.55 m
De doorzonwoonkamer is door de grote raampartijen heerlijk licht en heeft openslaande deuren naar de tuin. De vloer is v.v. eiken vloerdelen, spachtelputz wanden en heeft een sfeervolle Barbas houthaard.
Keuken - ca. 3.48 x 2.19 m
De open keuken in hoekopstelling bevindt zich aan de achterzijde van de woning en is v.v. spoelunit, vaatwasmachine, oven, 4 -pits gaskookplaat, afzuigkap, en koel-vriescombinatie. Via de achterdeur is er toegang tot de tuin.
Eerste verdieping
Overloop met vaste trap naar de 2e verdieping. De gehele verdieping is voorzien van tapijt.
Slaapkamer I - ca. 3.76 x 3.57 m
Deze hoofdslaapkamer is gelegen aan de achterzijde van de woning en is voorzien van een kastenwand.
Slaapkamer II - ca. 2.92 x 2.17 m
Deze slaapkamer is gelegen aan de achterzijde en is voorzien van een vaste kast.
Slaapkamer III - ca. 3.57 x 3.08 m
Deze slaapkamer is gelegen aan de voorzijde en is voorzien van een kastenwand en een wastafel.
Badkamer - ca. 2.17 x 2.07 m
De moderne badkamer (ca. 2019) is gelegen aan de voorzijde van de woning en beschikt over een inloopdouche, wastafelmeubel, 2e toilet en daglicht.
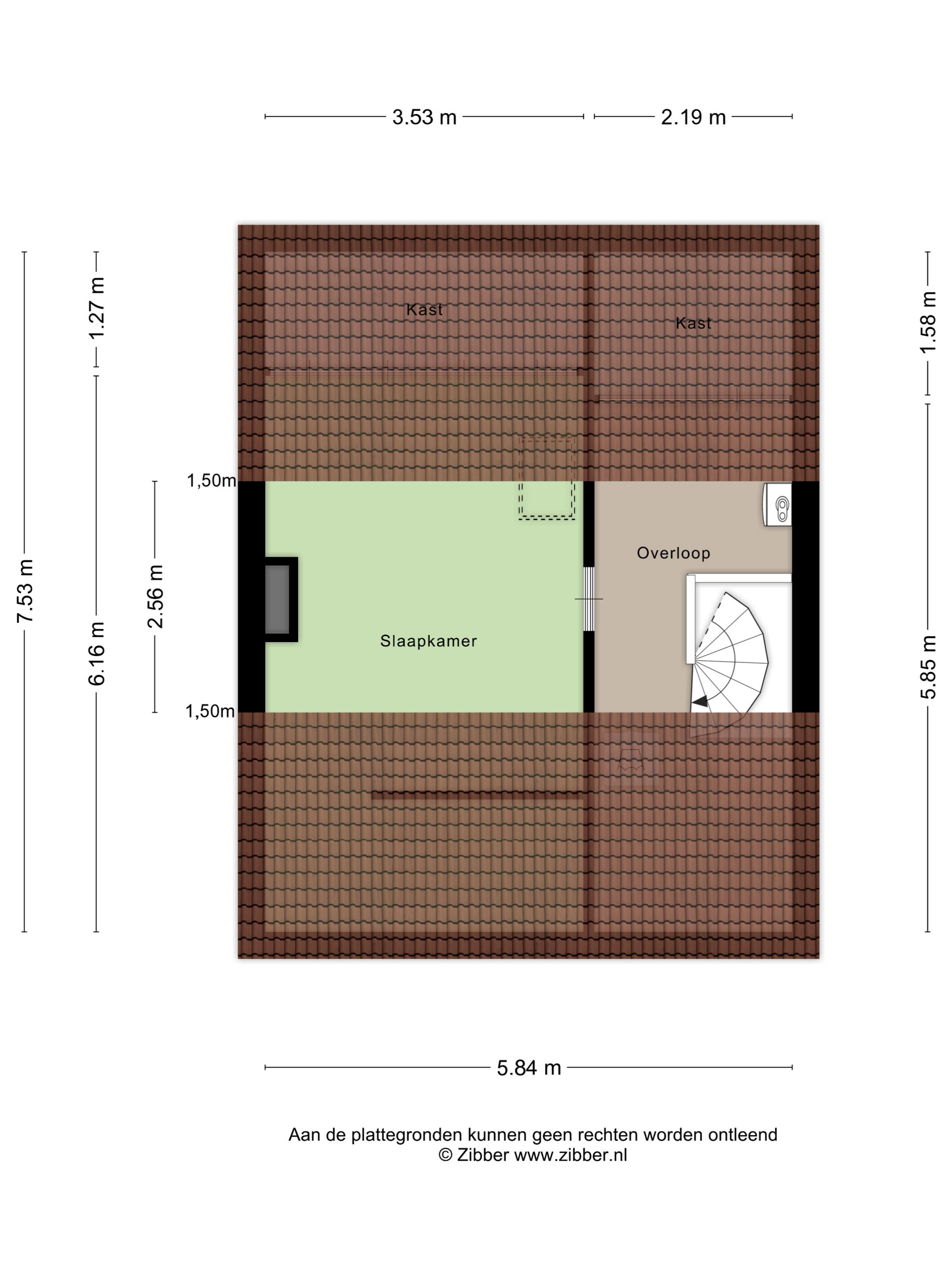
Tweede verdieping
Overloop met opstelplaats van de cv-combiketel, wasmachineaansluiting en opbergruimte achter de knieschotten. De gehele verdieping is v.v. tapijt.
Slaapkamer IV - ca. 3.53 x 2.56 m
Slaapkamer met dakraam en opbergruimte achter het knieschot.
Tuin
De zonnige achtertuin op het zuid-oosten beschikt over een terras, groene erfafscheiding, zonwering, stenen schuur en achterom. Direct achter de tuin bevindt zich een plantsoen, waardoor de tuin vrij ligt en een gevoel van ruimte geeft.
Bijzonderheden:
- keurig onderhouden woning met zicht op de polder;
- houten kozijnen met dubbel glas en kunststof kozijnen;
- nette keuken (renovatie 2018) en moderne badkamer (2019);
- 4 goede slaapkamers;
- bouw 1969, perceel 134 m2 eigen grond;
- woonopp ca. 103 m2;
- cv ketel AWB HR 2008;
- parkeren voor de deur.
Wij behartigen de belangen van de verkopende partij. Neem uw eigen aankoopmakelaar mee!
In de koopakte worden de volgende clausules opgenomen:
- asbestclausule, dit gezien het bouwjaar van de woning;
- ouderdomsclausule, dit gezien het bouwjaar van de woning;
- niet recent zelf bewoond-clausule;
Disclaimer:
Deze informatie is door De Vreij Makelaardij met de nodige zorgvuldigheid samengesteld. De informatie is echter van algemene aard en niet meer dan een uitnodiging om in onderhandeling te treden. Onzerzijds en verkoper wordt echter geen enkele aansprakelijkheid aanvaard door enige onvolledigheid, onjuistheid of anderszins, dan wel de gevolgen daarvan. De meetinstructie is gebaseerd op de NEN2580. De meetinstructie is bedoeld om een meer eenduidige manier van meten toe te passen voor het geven van een indicatie van de gebruiksoppervlakte. De meetinstructie sluit verschillen in meetuitkomsten niet volledig uit, door bijvoorbeeld interpretatieverschillen, afrondingen of beperkingen bij het uitvoeren van de meting. Van toepassing zijn de Vastgoed Ned voorwaarden.
