Ruim wonen met comfort aan de Anna Hoevestraat 41 in Brielle!
In de woonwijk Rugge staat deze ruime drive-in woning, perfect voor wie houdt van praktische leefruimte, veel bergruimte en een comfortabele afwerking. Met een praktisch ingedeelde tuinkamer op de begane grond, een ruime garage, drie slaapkamers, meerdere balkons, moderne voorzieningen én maar liefst 15 zonnepanelen, is dit een woning die direct klaarstaat voor nieuwe bewoners. Dankzij de elektrische rolluiken, zonwering, airconditioning en de nette afwerking ervaar je hier dagelijks optimaal wooncomfort.
De ligging is perfect: op loopafstand van het Ruggeplein, waar je een supermarkt, bloemist en drogist vindt. Vlakbij is het historische centrum van de vestingstad Brielle met gezellige terrassen, winkels en horecagelegenheden. Ook scholen, sportfaciliteiten, openbaar vervoer en uitvalswegen zijn in de directe omgeving te vinden. Voor de natuurliefhebber zijn het Brielse Meer, de stranden van Oostvoorne en Rockanje en de plezierhaven van Hellevoetsluis makkelijk per fiets bereikbaar. En of je nu richting Maasvlakte, Europoort of Rotterdam moet — Via de A15 en de nieuwe snelweg A24 (Blankenburgverbinding) sta je binnen 30 autominuten in Rotterdam centrum, maar met de N218 en N57 om de hoek ben je ook zo in Zeeland.
Begane grond:
Je betreedt de woning via de entree, waar je de meterkast en de trap naar de eerste verdieping vindt. Vanuit de hal loop je door naar zowel de tuinkamer als de ruime garage. De tuinkamer is praktisch ingedeeld en beschikt over een deur naar de achtertuin, deze ruimte is multifunctioneel te gebruiken. De aangrenzende garage is strak en netjes afgewerkt en biedt voldoende ruimte om een auto binnen te parkeren. Hier vind je ook de aansluiting voor de wasmachine en is verder voorzien van elektra, verwarming en een elektrische sectionaaldeur. Ook de garage biedt net als de tuinkamer toegang tot de achtertuin. De deuren naar de achtertuin zijn voorzien van elektrische rolluiken die bovendien voor extra comfort en veiligheid zorgen.
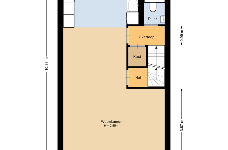
1e verdieping:
Je komt via de trap op de 1e verdieping, waar de overloop je meteen toegang geeft tot de modern afgewerkte toiletruimte. Deze is volledig betegeld en voorzien van een hangend closet, een fontein en vloerverwarming voor extra comfort. Ook is er op de overloop nog een ruime voorraadkast te vinden. De woonkamer voelt comfortabel en licht aan door de grote raampartijen en is voorzien van airconditioning. Hier zit ook een deur die toegang biedt tot een balkon op het noordwesten, dit balkon is voorzien van elektrische zonwering. Aangrenzend aan de woonkamer, aan de achterzijde van de woning, vind je de luxe open keuken, uitgevoerd in een dubbele rechte opstelling. De keuken is voorzien van een inductiekookplaat, afzuigkap, koel-vriescombinatie, magnetron, oven, vaatwasser en is afgewerkt in een warme houtlook. Ook de keuken biedt toegang tot een balkon, gelegen op het zuidoosten, deze is eveneens voorzien van elektrische zonwering en kijkt uit over de achtertuin. Op dit balkon zit een kast met de opstelling van de cv-combiketel (Vaillant 2015). Vanuit de woonkamer is er een 2e hal met de trap naar de 2e verdieping. De gehele verdieping is afgewerkt met een nette laminaatvloer.
2e verdieping:
De overloop geeft toegang tot 2 slaapkamers aan de voorzijde, beide uitgerust met airconditioning voor optimaal comfort. De 3e slaapkamer aan de achterzijde van de woning is voorzien van de aansluitingen voor wasmachine en droger, de omvormer van de zonnepanelen en geeft toegang tot een 3e balkon op het zuidoosten. Ook bereik je via de overloop de luxe badkamer met een inloopdouche, wastafelmeubel, hangend closet en elektrische vloerverwarming, waardoor deze ruimte zowel stijlvol als comfortabel is. Voor extra gemak en privacy zijn zowel de voor- als achterzijde van deze verdieping voorzien van elektrische rolluiken. De gehele verdieping is afgewerkt met een nette laminaatvloer.
Tuin:
De voortuin heeft een eigen oprit met ruimte om de auto op eigen terrein te parkeren. De achtertuin is verzorgd aangelegd en combineert functionaliteit met sfeer. Je hebt hier een praktische achterom en een vrijstaande houten berging, voorzien van elektra en gecombineerd met een overkapping, waar je heerlijk buiten kunt zitten. De tuin is volledig bestraat en omheind met houten schuttingen, wat zorgt voor privacy en een verzorgde uitstraling.
Diversen:
- Keuken uit 2020 en badkamer uit 2023.
- Kunststof kozijnen met kanteldeur achterzijde 2e verdieping uit 2025 en kunststof voordeur uit 2023.
- Houten kozijnen in 2025 geschilderd.
- 15 zonnepanelen.
- De woonkamer en 2 slaapkamers zijn voorzien van airconditioning.
- Grotendeels voorzien van elektrische rolluiken (voor én achter).
- Ruime garage met elektrische sectionaaldeur.
- Verzorgd aangelegde tuin met overkapping en berging.
Disclaimer:
Deze informatie is door Van Ravens Makelaardij met de nodige zorgvuldigheid samengesteld. De informatie is echter van algemene aard en niet meer dan een uitnodiging om in onderhandeling te treden. Onzerzijds wordt echter geen enkele aansprakelijkheid aanvaard voor enige onvolledigheid, onjuistheid of anderszins, dan wel de gevolgen daarvan. Alle opgegeven maten en oppervlakten zijn indicatief.
Van toepassing zijn de NVM voorwaarden.
Bijzondere voorwaarden:
Bij oudere objecten wordt er een ouderdomsclausule in de koopovereenkomst opgenomen. Daarnaast kunnen er aanvullende clausules van toepassing zijn zoals bijvoorbeeld een “niet zelfbewoningsclausule”.
