In de geliefde woonwijk Nieuwland ligt deze goed onderhouden, gasloze geschakelde 2-onder-1-kapwoning met energielabel A. De woning beschikt over een riante woonkamer met open keuken en twee ruime slaapkamers. Parkeren kan op de eigen oprit en in de parkeervakken voor de deur.
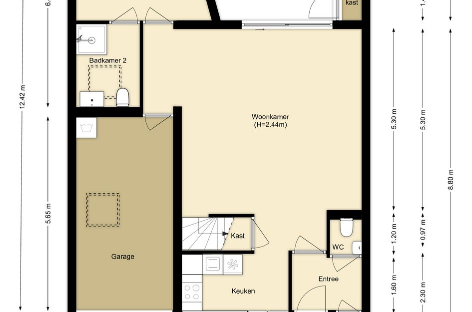
Een groot pluspunt is dat de woning levensloopbestendig kan worden gemaakt: in het deel van de eetkamer is het mogelijk om een slaapkamer en badkamer te realiseren (zie optie tekening), waarbij de voorbereidingen al aanwezig zijn.
Vlakbij is het centrum van de historische vestingstad Brielle met al haar voorzieningen zoals horeca, terrassen en winkels. In de wijk zelf zijn er sportscholen en een medisch centrum aanwezig. Verder liggen het openbaar vervoer, scholen, supermarkten, sportaccommodaties, zwembad en uitvalswegen erg gunstig. Brielle vormt een prima uitvalsbasis voor de haven, industrie, Europoort, Maasvlakte, Botlek en ook Rotterdam is uitstekend te bereiken. Voor de natuur-, bos- en strandliefhebbers zijn het Brielse meer, Oostvoorne, Rockanje en ook de plezierhaven van Hellevoetsluis aan het Haringvliet op fietsafstand bereikbaar.
Begane grond:
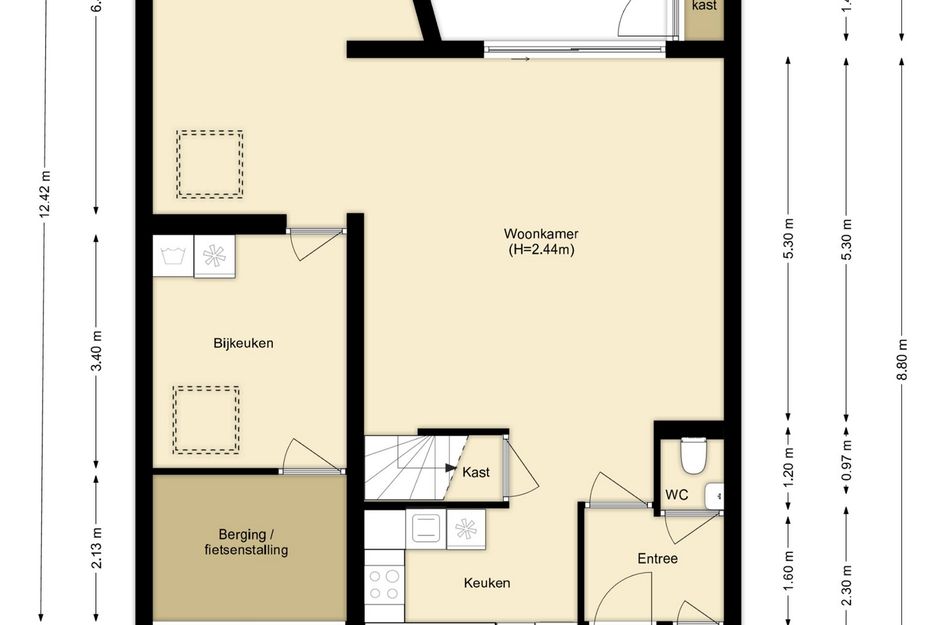
Je betreedt de woning via de entree/hal met meterkast en toiletruimte met hangend closet en fonteintje. De hal biedt toegang tot de royale woonkamer met open keuken, speels ingedeeld met een woon- en eetgedeelte. De keuken is voorzien van een inductiekookplaat, afzuigkap, combi-magnetron, koelkast, vriezer en vaatwasser. Het eetgedeelte is voorzien van een lichtkoepel voor extra daglicht. De ruimte biedt tevens de mogelijkheid om te worden getransformeerd tot een slaapkamer en badkamer, waardoor er een levensloopbestendige woning kan worden gerealiseerd (zie optie tekening). Aansluitend bereik je de bijkeuken met lichtkoepel, wasmachineaansluiting en geeft toegang tot de berging met uitstortgootsteen en openslaande deuren naar de voorzijde. Vanuit de woonkamer is er tevens toegang tot de achtertuin d.m.v. een schuifpui en de trapopgang naar de eerste verdieping. De gehele begane grond is afgewerkt met keramische tegels en voorzien van vloerverwarming.
1e verdieping:
De overloop biedt toegang tot twee slaapkamers, de badkamer en de technische ruimte. De hoofdslaapkamer is gelegen aan de achterzijde van de woning en beschikt over een vaste schuifdeurkast. Vanuit deze slaapkamer is de bergvliering in de nok bereikbaar, waar de mechanische ventilatie-unit is opgesteld. De tweede slaapkamer ligt aan de voorzijde van de woning en is voorzien van knieschotbergruimte. De badkamer is voorzien van een ligbad met douche voorziening, toilet en wastafel. In de technische ruimte bevinden zich de warmtepomp met boiler (6 kW, 250 liter Daikin, 2024). De verdieping is afgewerkt met een laminaat vloer.
Tuin:
De verzorgde voortuin beschikt over een oprit voor één auto. De sfeervolle achtertuin is ingericht met borders, bestrating en een gezellige terrassen. Achterin de tuin bevindt zich een houten berging met aangebouwde overkapping met daar in een praktische achterom.
Diversen:
- Zo goed als voorzien van dubbel glas m.u.v. de lichtkoepels.
- Gasloze woning met energielabel A met 15 zonnepanelen.
- Warmtepomp met boiler (6 kW, 250 liter Daikin, 2024).
- Volledig voorzien van vloerverwarming op de begane grond.
- Voorbereidingen aanwezig voor het realiseren van een slaapkamer en badkamer op de begane grond (levensloopbestendig wonen).
- Eigen oprit voor één auto.
- Verzorgde achtertuin met berging, veranda en praktische achterom.
- Gelegen in de geliefde woonwijk Nieuwland, nabij voorzieningen, natuur en uitvalswegen.
- Optionele plattegrond voor begane grond (levensloopbestendige woning).
Disclaimer:
Deze informatie is door Van Ravens Makelaardij met de nodige zorgvuldigheid samengesteld. De informatie is echter van algemene aard en niet meer dan een uitnodiging om in onderhandeling te treden. Onzerzijds wordt echter geen enkele aansprakelijkheid aanvaard voor enige onvolledigheid, onjuistheid of anderszins, dan wel de gevolgen daarvan. Alle opgegeven maten en oppervlakten zijn indicatief.
Van toepassing zijn de NVM voorwaarden.
Bijzondere voorwaarden:
Bij oudere objecten wordt er een ouderdomsclausule in de koopovereenkomst opgenomen. Daarnaast kunnen er aanvullende clausules van toepassing zijn zoals bijvoorbeeld een “niet zelfbewoningsclausule”.
