2 onder 1 kapwoning
Welkom in deze charmante 2 onder 1 kapwoning met zijentree, gelegen aan de groene laan van Buitenplaats Brielle. Van dit woningtype komen er slechts zes beschikbaar in fase 1. De lichte gevelsteen en speelse tuitgevels geven deze woningen een vriendelijke en karaktervolle uitstraling. Hier woon je in een kindvriendelijke wijk met volop plek om te spelen, natuur om de hoek en twee parkeerplaatsen op eigen terrein, ideaal voor drukke gezinsdagen.
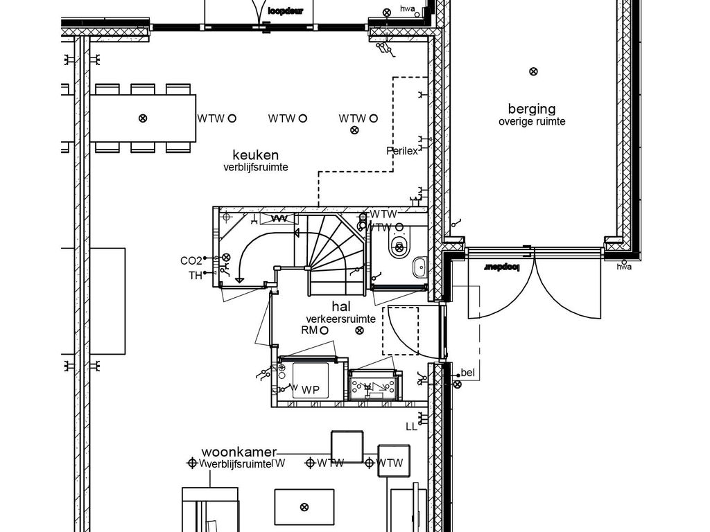
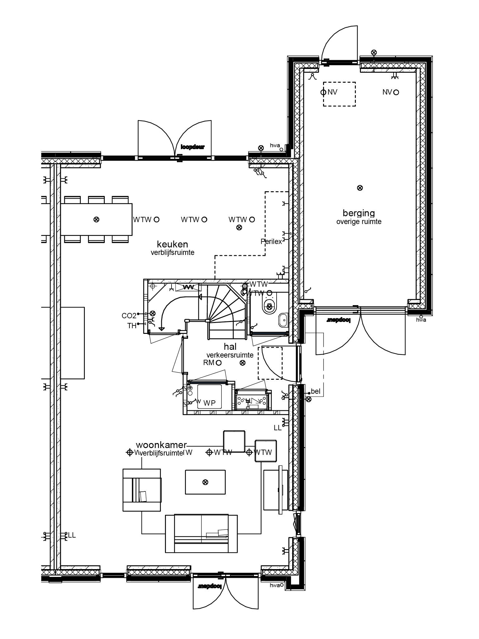
Samen leven in licht en comfort
Via de zijentree stap je binnen in een ruime hal met toilet, meterkast en de trap naar boven. De U-vormige indeling zorgt voor een lichte woonkamer aan de voorzijde, grenzend aan de voortuin. Aan de achterzijde vind je de open keuken met directe toegang tot de zonnige tuin op het zuidoosten. Hier kook je samen, lach je samen en geniet je van het uitzicht terwijl de kinderen buiten spelen. Onder de trap is een handige berging voor speelgoed, voorraad of sportspullen – alles binnen handbereik.
Ruimte voor iedereen
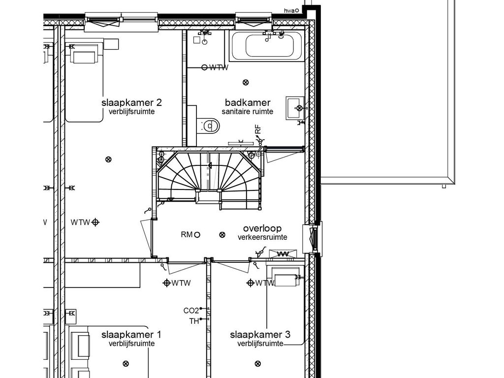
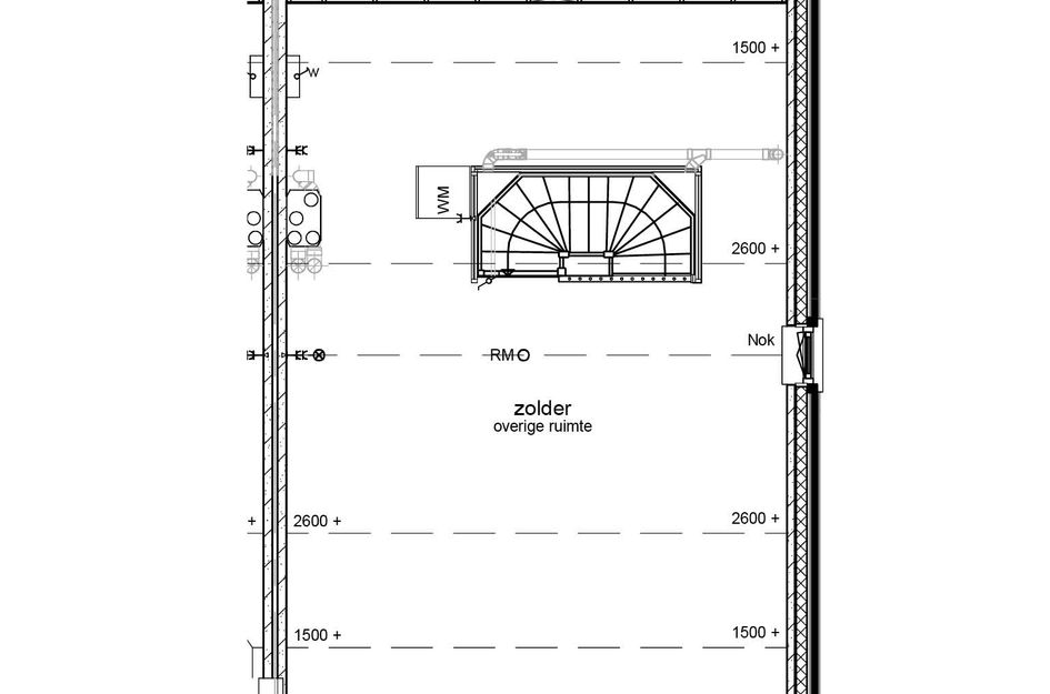
Op de eerste verdieping zijn drie ruime slaapkamers. De badkamer is een fijne plek om te ontspannen, met ruimte voor een douche, wastafel, toilet én een ligbad. De zolder biedt eindeloze mogelijkheden: een eigen verdieping voor een fijne thuiswerkplek of gameruimte voor de kinderen. Met aansluiting voor de wasmachine is het ook een praktische wasruimte. Net als de andere woningen in Buitenplaats Brielle is ook dit huis volledig geïsoleerd en voorzien van zonnepanelen. Met energielabel A++++ woon je extreem energiezuinig, comfortabel en met lage maandlasten.
Disclaimer:
Deze informatie is door Van Ravens Makelaardij met de nodige zorgvuldigheid samengesteld. De informatie is echter van algemene aard. Onzerzijds wordt echter geen enkele aansprakelijkheid aanvaard voor enige onvolledigheid, onjuistheid of anderszins, dan wel de gevolgen daarvan. Alle opgegeven maten en oppervlakten zijn indicatief.
Van toepassing zijn de NVM voorwaarden.
